---
title: "Boligselskabet BSB Erritsø, afd. 1"
description: "9-1"
date: "2026-03-02"
created: "2024-11-22"
---

-
-
-
-
-
-
-
-

https://maps.google.dk/?q=55.548365,9.711869

# Boligselskabet BSB Erritsø, afd. 1

Afdeling 1

## Velkommen til Boligselskabet BSB Erritsø, afd. 1

Møllebo Allé 32 - 54. Opførelsesår 1972.
Afdelingens boliger er omkranset af skøn natur og gode fælles arealer.

Der kan søges indskudslån.

Afdelingen administreres af Boligkontoret Fredericia.

## Fakta for afdelingen

Vaskeri

Ja

Elevator

Nej

Hårde hvidevarer

Læs mere

Se i afdelingens vedligeholdelsesreglement, hvilke hårde hvidevarer der er i boligerne. Det fremgår under punktet "Boligernes standard ved indflytning "

TV

Læs mere

Beboere i denne afdeling får særlige priser på deres fiberbredbånd hos EWII. Læs mere på https://www.ewii.dk/privat/internet/boligforening/ eller kontakt EWII kundeservice på 7055 5555. Oplys at du er lejer hos Boligkontoret Fredericia. (Der kan være enkelte adresser der ikke kan leveres til / samt leveringstid)

Festlokale

Ja

Afdelingen har eget festlokale

Have

Nej

Altan

Ja

Der er lukkede altaner til alle boliger

Husdyr

Ja

Det er tilladt at have 2 hunde eller 2 indekatte eller 1 hund og 1 indekat.Læs altid afdelingens gældende regler for husdyr, i afdelingens husorden.

Forbrug

Læs mere

El afregnes direkte til forsyningsselskab.

Bi-lejemål

Ja

Der er kælderrum med til boligerne.Der kan lejes ekstra kælderrum. For opskrivning kontakt varmemesteren.

Ladestander

Ja

Afdelingen har ladestandere til el-biler

                        Se flere

## Boligtyper i afdelingen

Almindelig bolig

1 værelses

boliger

Almindelig bolig

2 værelses

boliger

Almindelig bolig

3 værelses

boliger

Almindelig bolig

4 værelses

boliger

Almindelig bolig

5 værelses

boliger

Boligtype

Værelser

Størrelse

Husleje

Indskud/dp

Plantegning

Almindelig bolig

1

50.7 m²

3076 kr.

9887 kr.

![](https://www.boligfa.dk/i/MOLIRIMEDIA/77468872-483e-46ee-d22f-08dcfd846118?width=800)

Almindelig bolig

2

80 m²

6994 kr.

22000 kr.

![](https://www.boligfa.dk/i/MOLIRIMEDIA/2d12dad2-e670-4412-d5f4-08dcfd846118?width=800)

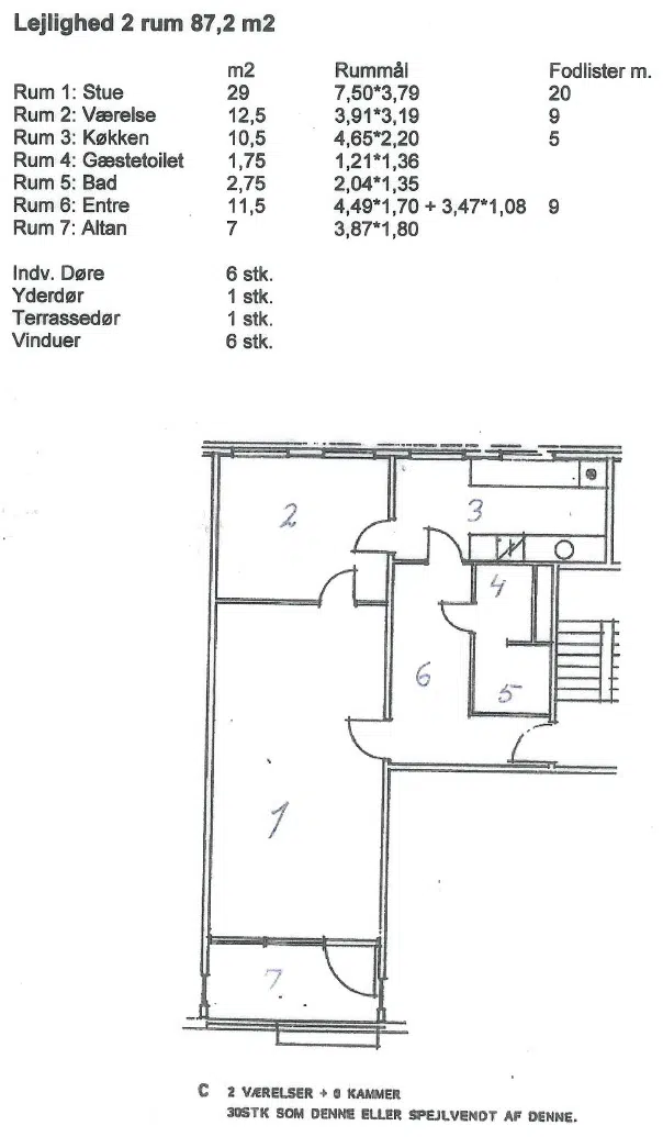
Almindelig bolig

2

52 m²

5100 kr.

17000 kr.

![](https://www.boligfa.dk/i/MOLIRIMEDIA/e36dce8a-16eb-4b89-d864-08dcfd846118?width=800)

Almindelig bolig

2

64.5 m²

3987 kr.

12578 kr.

![](https://www.boligfa.dk/i/MOLIRIMEDIA/f109aedd-3088-4a5f-d749-08dcfd846118?width=800)

Almindelig bolig

3

105.4 m²

6030 kr.

18129 kr.

![](https://www.boligfa.dk/i/MOLIRIMEDIA/9d65b641-5736-415b-d5c7-08dcfd846118?width=800)

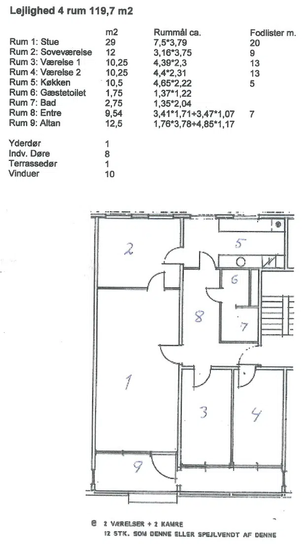
Almindelig bolig

4

119.7 m²

6893 kr.

18554 kr.

![](https://www.boligfa.dk/i/MOLIRIMEDIA/91b7d70e-ca9c-4988-d57c-08dcfd846118?width=800)

Almindelig bolig

5

116 m²

7762 kr.

19593 kr.

![](https://www.boligfa.dk/i/MOLIRIMEDIA/4831aa2a-0deb-493e-d7be-08dcfd846118?width=800)

## Afdelingsdokumenter

Her finder du nyttig information om din afdeling, såsom husorden, vedligeholdelse af dit lejemål, eller referater fra hovedbestyrelsen.

###

                                                Brugervejledninger

[Brugervejledning-03-02-2026---afd.-1-BSB-Erritsø.pdf](https://www.boligfa.dk/p/Files/Boligdata/Dokumenter/Afd%2009%20001/Brugervejledninger/Brugervejledning-03-02-2026---afd.-1-BSB-Errits&#xF8;.pdf)

###

                                                Mødeindkaldelser

[2025-09-09 Indkaldelse til afdelingsmøde i afd. 1 BSB Erritsø.pdf](https://www.boligfa.dk/p/Files/Boligdata/Dokumenter/Afd%2009%20001/M&#xF8;deindkaldelser/2025-09-09-Indkaldelse-til-afdelingsm&#xF8;de-i-afd.-1-BSB-Errits&#xF8;.pdf)
                                            [2025-02-18 Orienterinde opstartsmøde afd. BSB-Erritsø, Helhedsplan.pdf](https://www.boligfa.dk/p/Files/Boligdata/Dokumenter/Afd%2009%20001/M&#xF8;deindkaldelser/2025-02-18-Orienterinde-opstartsm&#xF8;de-afd.-BSB-Errits&#xF8;--Helhedsplan.pdf)
                                            [2025-02-18 Opstartsmøde afd. BSB-Erritsø, Helhedsplan.pdf](https://www.boligfa.dk/p/Files/Boligdata/Dokumenter/Afd%2009%20001/M&#xF8;deindkaldelser/2025-02-18-Opstartsm&#xF8;de-afd.-BSB-Errits&#xF8;--Helhedsplan.pdf)
                                            [2024-09-12 Indkaldelse til afdelingsmøde afd. 1 BSB Erritsø.pdf](https://www.boligfa.dk/p/Files/Boligdata/Dokumenter/Afd%2009%20001/M&#xF8;deindkaldelser/2024-09-12-Indkaldelse-til-afdelingsm&#xF8;de-afd.-1-BSB-Errits&#xF8;.pdf)
                                            [2024-02-08 Indkaldelse ekstraordinært afdelingsmøde afd. 1 BSB.pdf](https://www.boligfa.dk/p/Files/Boligdata/Dokumenter/Afd%2009%20001/M&#xF8;deindkaldelser/2024-02-08-Indkaldelse-ekstraordin&#xE6;rt-afdelingsm&#xF8;de-afd.-1-BSB.pdf)
                                            [2023-09-14 Indkaldelse til afdelingsmøde afd. 1 BSB.pdf](https://www.boligfa.dk/p/Files/Boligdata/Dokumenter/Afd%2009%20001/M&#xF8;deindkaldelser/2023-09-14-Indkaldelse-til-afdelingsm&#xF8;de-afd.-1-BSB.pdf)
                                            [2023-08-08 Indkaldelse ekstraordinært afdelingsmøde afd. 1 BSB.pdf](https://www.boligfa.dk/p/Files/Boligdata/Dokumenter/Afd%2009%20001/M&#xF8;deindkaldelser/2023-08-08-Indkaldelse-ekstraordin&#xE6;rt-afdelingsm&#xF8;de-afd.-1-BSB.pdf)
                                            [2023-06-22 Indkaldelse til ekstraordinært afdelingsmøde i BSB afd. 1.pdf](https://www.boligfa.dk/p/Files/Boligdata/Dokumenter/Afd%2009%20001/M&#xF8;deindkaldelser/2023-06-22-Indkaldelse-til-ekstraordin&#xE6;rt-afdelingsm&#xF8;de-i-BSB-afd.-1.pdf)
                                            [2022-09-15 Indkaldelse til afdelingsmøde afd. 1 BSB.pdf](https://www.boligfa.dk/p/Files/Boligdata/Dokumenter/Afd%2009%20001/M&#xF8;deindkaldelser/2022-09-15-Indkaldelse-til-afdelingsm&#xF8;de-afd.-1-BSB.pdf)
                                            [2021-11-18 Indkaldelse til ekstraordinært afdelingsmøde i BSB afd. 1.pdf](https://www.boligfa.dk/p/Files/Boligdata/Dokumenter/Afd%2009%20001/M&#xF8;deindkaldelser/2021-11-18-Indkaldelse-til-ekstraordin&#xE6;rt-afdelingsm&#xF8;de-i-BSB-afd.-1.pdf)
                                            [2021-08-30 Indkaldelse til afdelingsmøde afd. 1 BSB.pdf](https://www.boligfa.dk/p/Files/Boligdata/Dokumenter/Afd%2009%20001/M&#xF8;deindkaldelser/2021-08-30-Indkaldelse-til-afdelingsm&#xF8;de-afd.-1-BSB.pdf)

###

                                                Reglementer

[Vedligeholdelsesreglement 09-09-2025 BSB afd. 1.pdf](https://www.boligfa.dk/p/Files/Boligdata/Dokumenter/Afd%2009%20001/Reglementer/Vedligeholdelsesreglement-09-09-2025-BSB-afd.-1.pdf)
                                            [Husorden 09-09-2025 BSB afd. 1.pdf](https://www.boligfa.dk/p/Files/Boligdata/Dokumenter/Afd%2009%20001/Reglementer/Husorden-09-09-2025-BSB-afd.-1.pdf)

###

                                                Mødereferater

[2025-09-09 Referat af afdelingsmøde afd. 1 BSB Erritsø.pdf](https://www.boligfa.dk/p/Files/Boligdata/Dokumenter/Afd%2009%20001/M&#xF8;dereferater/2025-09-09-Referat-af-afdelingsm&#xF8;de-afd.-1-BSB-Errits&#xF8;.pdf)
                                            [2025-02-18-Referat-opstartsmøde-BSB-Helhedsplan.pdf](https://www.boligfa.dk/p/Files/Boligdata/Dokumenter/Afd%2009%20001/M&#xF8;dereferater/2025-02-18-Referat-opstartsm&#xF8;de-BSB-Helhedsplan.pdf)
                                            [2024-09-12 Referat af afdelingsmøde afd. 1 BSB.pdf](https://www.boligfa.dk/p/Files/Boligdata/Dokumenter/Afd%2009%20001/M&#xF8;dereferater/2024-09-12-Referat-af-afdelingsm&#xF8;de-afd.-1-BSB.pdf)
                                            [2024-02-08 Referat af ekstraordinært afdelingsmøde afd. 1 BSB.pdf](https://www.boligfa.dk/p/Files/Boligdata/Dokumenter/Afd%2009%20001/M&#xF8;dereferater/2024-02-08-Referat-af-ekstraordin&#xE6;rt-afdelingsm&#xF8;de-afd.-1-BSB.pdf)
                                            [2023-09-14 Referat af afdelingsmøde afd. 1 BSB.pdf](https://www.boligfa.dk/p/Files/Boligdata/Dokumenter/Afd%2009%20001/M&#xF8;dereferater/2023-09-14-Referat-af-afdelingsm&#xF8;de-afd.-1-BSB.pdf)
                                            [2023-06-22 Referat af ekstraordinært afdelingsmøde afd. 1 BSB - helhedsplan.pdf](https://www.boligfa.dk/p/Files/Boligdata/Dokumenter/Afd%2009%20001/M&#xF8;dereferater/2023-06-22-Referat-af-ekstraordin&#xE6;rt-afdelingsm&#xF8;de-afd.-1-BSB---helhedsplan.pdf)
                                            [2023-06-22 Materiale til ekstraordinært afdelingsmøde BSB.pdf](https://www.boligfa.dk/p/Files/Boligdata/Dokumenter/Afd%2009%20001/M&#xF8;dereferater/2023-06-22-Materiale-til-ekstraordin&#xE6;rt-afdelingsm&#xF8;de-BSB.pdf)
                                            [2022-09-15 Referat af afdelingsmøde afd. 1 BSB.pdf](https://www.boligfa.dk/p/Files/Boligdata/Dokumenter/Afd%2009%20001/M&#xF8;dereferater/2022-09-15-Referat-af-afdelingsm&#xF8;de-afd.-1-BSB.pdf)
                                            [2021-11-18 Referat af besluttende beboermøde BSB.pdf](https://www.boligfa.dk/p/Files/Boligdata/Dokumenter/Afd%2009%20001/M&#xF8;dereferater/2021-11-18-Referat-af-besluttende-beboerm&#xF8;de-BSB.pdf)
                                            [2021-08-30 Referat af afdelingsmøde afd. 1 BSB.pdf](https://www.boligfa.dk/p/Files/Boligdata/Dokumenter/Afd%2009%20001/M&#xF8;dereferater/2021-08-30-Referat-af-afdelingsm&#xF8;de-afd.-1-BSB.pdf)

###

                                                Regnskaber

[2025 Regnskab BSB afd. 1.pdf](https://www.boligfa.dk/p/Files/Boligdata/Dokumenter/Afd%2009%20001/Regnskaber/2025-Regnskab-BSB-afd.-1.pdf)
                                            [2024 Udkast regnskab afd. 1 BSB Erritsø.pdf](https://www.boligfa.dk/p/Files/Boligdata/Dokumenter/Afd%2009%20001/Regnskaber/2024-Udkast-regnskab-afd.-1-BSB-Errits&#xF8;.pdf)
                                            [2023 Regnskab afd. 1 - BSB.pdf](https://www.boligfa.dk/p/Files/Boligdata/Dokumenter/Afd%2009%20001/Regnskaber/2023-Regnskab-afd.-1---BSB.pdf)
                                            [2022 Regnskab afd. 1 - BSB.pdf](https://www.boligfa.dk/p/Files/Boligdata/Dokumenter/Afd%2009%20001/Regnskaber/2022-Regnskab-afd.-1---BSB.pdf)
                                            [2021 Regnskab afd. 1 - BSB.pdf](https://www.boligfa.dk/p/Files/Boligdata/Dokumenter/Afd%2009%20001/Regnskaber/2021-Regnskab-afd.-1---BSB.pdf)
                                            [2020 Regnskab afd. 1 - BSB.pdf](https://www.boligfa.dk/p/Files/Boligdata/Dokumenter/Afd%2009%20001/Regnskaber/2020-Regnskab-afd.-1---BSB.pdf)
                                            [2019 Regnskab afd. 1 - BSB.pdf](https://www.boligfa.dk/p/Files/Boligdata/Dokumenter/Afd%2009%20001/Regnskaber/2019-Regnskab-afd.-1---BSB.pdf)

###

                                                Byggesag

[2026-05-13 Nyhedsbrev fra projektafdelingen afd. BSB-Erritsø.pdf](https://www.boligfa.dk/p/Files/Boligdata/Dokumenter/Afd%2009%20001/Byggesag/2026-05-13-Nyhedsbrev-fra-projektafdelingen-afd.-BSB-Errits&#xF8;.pdf)
                                            [2026-01-09 Status fra projektafdelingen til BSB Helhedsplan.pdf](https://www.boligfa.dk/p/Files/Boligdata/Dokumenter/Afd%2009%20001/Byggesag/2026-01-09-Status-fra-projektafdelingen-til-BSB-Helhedsplan.pdf)
                                            [2025-12-15-Nyhedsstatus-BSB-Helhedsplan.pdf](https://www.boligfa.dk/p/Files/Boligdata/Dokumenter/Afd%2009%20001/Byggesag/2025-12-15-Nyhedsstatus-BSB-Helhedsplan.pdf)
                                            [2025-11-11 Nyhedsbrev BSB Helhedsplan.pdf](https://www.boligfa.dk/p/Files/Boligdata/Dokumenter/Afd%2009%20001/Byggesag/2025-11-11-Nyhedsbrev-BSB-Helhedsplan.pdf)
                                            [2025-09-29 Nyhedsbrev BSB Helhedsplan.pdf](https://www.boligfa.dk/p/Files/Boligdata/Dokumenter/Afd%2009%20001/Byggesag/2025-09-29-Nyhedsbrev-BSB-Helhedsplan.pdf)
                                            [2025-02-18-Orienterinde-opstartsmøde-afd.-BSB-Erritsø--Helhedsplan.pdf](https://www.boligfa.dk/p/Files/Boligdata/Dokumenter/Afd%2009%20001/Byggesag/2025-02-18-Orienterinde-opstartsm&#xF8;de-afd.-BSB-Errits&#xF8;--Helhedsplan.pdf)
                                            [2025-02-18-Opstartsmøde-afd.-BSB-Erritsø--Helhedsplan.pdf](https://www.boligfa.dk/p/Files/Boligdata/Dokumenter/Afd%2009%20001/Byggesag/2025-02-18-Opstartsm&#xF8;de-afd.-BSB-Errits&#xF8;--Helhedsplan.pdf)
                                            [2024-18-12 Nyhedsbrev BSB Helhedsplan.pdf](https://www.boligfa.dk/p/Files/Boligdata/Dokumenter/Afd%2009%20001/Byggesag/2024-18-12-Nyhedsbrev-BSB-Helhedsplan.pdf)
                                            [2024-11-08 Nyhedsbrev BSB Helhedsplan.pdf](https://www.boligfa.dk/p/Files/Boligdata/Dokumenter/Afd%2009%20001/Byggesag/2024-11-08-Nyhedsbrev-BSB-Helhedsplan.pdf)
                                            [2024-06-21 Nyhedsbrev BSB Helhedsplan.pdf](https://www.boligfa.dk/p/Files/Boligdata/Dokumenter/Afd%2009%20001/Byggesag/2024-06-21-Nyhedsbrev-BSB-Helhedsplan.pdf)
                                            [2024-02-27 Status på helhedsplanen BSB afd. 1.pdf](https://www.boligfa.dk/p/Files/Boligdata/Dokumenter/Afd%2009%20001/Byggesag/2024-02-27-Status-p&#xE5;-helhedsplanen-BSB-afd.-1.pdf)

## Ejendomsadresse

### Varmemesterkontor

Adresse:

Møllebo Allé 34 st tv

7000 Fredericia

### Åbningstider

Personlig henvendelse mandag - fredag kl. 9 - 9.30

og mandag - torsdag kl. 12 - 12.30

## Inspektør

### Frederik Bentsen

76221229

frb@boligfa.dk

## Organisationsdokumenter

Her finder du referater og dagsordner fra hovedbestyrelsen.

###

                                                Referat af organisationsbestyrelsesmøder

[2025-07-01 Referat af bestyrelsesmøde BSB.pdf](https://www.boligfa.dk/p/Files/Boligdata/Dokumenter/Selskabsdokumenter/Sel.%209/Referat%20af%20organisationsbestyrelsesm&#xF8;der/2025-07-01-Referat-af-bestyrelsesm&#xF8;de-BSB.pdf)
                                            [2024-09-11 Referat af bestyrelsesmøde BSB.pdf](https://www.boligfa.dk/p/Files/Boligdata/Dokumenter/Selskabsdokumenter/Sel.%209/Referat%20af%20organisationsbestyrelsesm&#xF8;der/2024-09-11-Referat-af-bestyrelsesm&#xF8;de-BSB.pdf)
                                            [2024-06-17 Referat af bestyrelsesmøde BSB.pdf](https://www.boligfa.dk/p/Files/Boligdata/Dokumenter/Selskabsdokumenter/Sel.%209/Referat%20af%20organisationsbestyrelsesm&#xF8;der/2024-06-17-Referat-af-bestyrelsesm&#xF8;de-BSB.pdf)
                                            [2023-07-12 Referat af bestyrelsesmøde BSB.pdf](https://www.boligfa.dk/p/Files/Boligdata/Dokumenter/Selskabsdokumenter/Sel.%209/Referat%20af%20organisationsbestyrelsesm&#xF8;der/2023-07-12-Referat-af-bestyrelsesm&#xF8;de-BSB.pdf)
                                            [2023-06-19 Referat af bestyrelsesmøde BSB.pdf](https://www.boligfa.dk/p/Files/Boligdata/Dokumenter/Selskabsdokumenter/Sel.%209/Referat%20af%20organisationsbestyrelsesm&#xF8;der/2023-06-19-Referat-af-bestyrelsesm&#xF8;de-BSB.pdf)
                                            [2022-04-06 Referat af bestyrelsesmøde BSB.pdf](https://www.boligfa.dk/p/Files/Boligdata/Dokumenter/Selskabsdokumenter/Sel.%209/Referat%20af%20organisationsbestyrelsesm&#xF8;der/2022-04-06-Referat-af-bestyrelsesm&#xF8;de-BSB.pdf)
                                            [2021-12-09 Referat af bestyrelsesmøde BSB.pdf](https://www.boligfa.dk/p/Files/Boligdata/Dokumenter/Selskabsdokumenter/Sel.%209/Referat%20af%20organisationsbestyrelsesm&#xF8;der/2021-12-09-Referat-af-bestyrelsesm&#xF8;de-BSB.pdf)
                                            [2021-04-20 Referat af bestyrelsesmøde BSB.pdf](https://www.boligfa.dk/p/Files/Boligdata/Dokumenter/Selskabsdokumenter/Sel.%209/Referat%20af%20organisationsbestyrelsesm&#xF8;der/2021-04-20-Referat-af-bestyrelsesm&#xF8;de-BSB.pdf)

###

                                                Referat af repræsentantskabsmøder

[2025-07-01 Referat af repræsentantskabsmøde BSB.pdf](https://www.boligfa.dk/p/Files/Boligdata/Dokumenter/Selskabsdokumenter/Sel.%209/Referat%20af%20repr&#xE6;sentantskabsm&#xF8;der/2025-07-01-Referat-af-repr&#xE6;sentantskabsm&#xF8;de-BSB.pdf)
                                            [2024-06-17 Referat af repræsentantskabsmøde BSB.pdf](https://www.boligfa.dk/p/Files/Boligdata/Dokumenter/Selskabsdokumenter/Sel.%209/Referat%20af%20repr&#xE6;sentantskabsm&#xF8;der/2024-06-17-Referat-af-repr&#xE6;sentantskabsm&#xF8;de-BSB.pdf)
                                            [2023-07-12 Referat af ekstraordinært repræsentantskabsmøde BSB.pdf](https://www.boligfa.dk/p/Files/Boligdata/Dokumenter/Selskabsdokumenter/Sel.%209/Referat%20af%20repr&#xE6;sentantskabsm&#xF8;der/2023-07-12-Referat-af-ekstraordin&#xE6;rt-repr&#xE6;sentantskabsm&#xF8;de-BSB.pdf)
                                            [2023-06-19 Referat af repræsentantskabsmøde BSB.pdf](https://www.boligfa.dk/p/Files/Boligdata/Dokumenter/Selskabsdokumenter/Sel.%209/Referat%20af%20repr&#xE6;sentantskabsm&#xF8;der/2023-06-19-Referat-af-repr&#xE6;sentantskabsm&#xF8;de-BSB.pdf)
                                            [2022-06-07 Referat af repræsentantskabsmøde BSB.pdf](https://www.boligfa.dk/p/Files/Boligdata/Dokumenter/Selskabsdokumenter/Sel.%209/Referat%20af%20repr&#xE6;sentantskabsm&#xF8;der/2022-06-07-Referat-af-repr&#xE6;sentantskabsm&#xF8;de-BSB.pdf)
                                            [2021-04-20 Referat af repræsentantskabsmøde BSB.pdf](https://www.boligfa.dk/p/Files/Boligdata/Dokumenter/Selskabsdokumenter/Sel.%209/Referat%20af%20repr&#xE6;sentantskabsm&#xF8;der/2021-04-20-Referat-af-repr&#xE6;sentantskabsm&#xF8;de-BSB.pdf)

###

                                                Mødeindkaldelser repræsentantskabsmøder

[2025-06-02 Dagsorden til repræsentantskabsmøde  BSB Erritsø.pdf](https://www.boligfa.dk/p/Files/Boligdata/Dokumenter/Selskabsdokumenter/Sel.%209/M&#xF8;deindkaldelser%20repr&#xE6;sentantskabsm&#xF8;der/2025-06-02-Dagsorden-til-repr&#xE6;sentantskabsm&#xF8;de--BSB-Errits&#xF8;.pdf)
                                            [2024-06-17 Dagsorden til repræsentantskabsmødet BSB.pdf](https://www.boligfa.dk/p/Files/Boligdata/Dokumenter/Selskabsdokumenter/Sel.%209/M&#xF8;deindkaldelser%20repr&#xE6;sentantskabsm&#xF8;der/2024-06-17-Dagsorden-til-repr&#xE6;sentantskabsm&#xF8;det-BSB.pdf)
                                            [2023-07-12 Dagsorden til ekstraordinært repræsentantskabsmøde BSB Erritsø.pdf](https://www.boligfa.dk/p/Files/Boligdata/Dokumenter/Selskabsdokumenter/Sel.%209/M&#xF8;deindkaldelser%20repr&#xE6;sentantskabsm&#xF8;der/2023-07-12-Dagsorden-til-ekstraordin&#xE6;rt-repr&#xE6;sentantskabsm&#xF8;de-BSB-Errits&#xF8;.pdf)
                                            [2023-06-19 Dagsorden til repræsentantskabsmøde BSB.pdf](https://www.boligfa.dk/p/Files/Boligdata/Dokumenter/Selskabsdokumenter/Sel.%209/M&#xF8;deindkaldelser%20repr&#xE6;sentantskabsm&#xF8;der/2023-06-19-Dagsorden-til-repr&#xE6;sentantskabsm&#xF8;de-BSB.pdf)
                                            [2022-06-07 Dagsorden til repræsentantskabsmøde BSB.pdf](https://www.boligfa.dk/p/Files/Boligdata/Dokumenter/Selskabsdokumenter/Sel.%209/M&#xF8;deindkaldelser%20repr&#xE6;sentantskabsm&#xF8;der/2022-06-07-Dagsorden-til-repr&#xE6;sentantskabsm&#xF8;de-BSB.pdf)
                                            [2021-04-20 Dagsorden til repræsentantskabsmøde BSB.pdf](https://www.boligfa.dk/p/Files/Boligdata/Dokumenter/Selskabsdokumenter/Sel.%209/M&#xF8;deindkaldelser%20repr&#xE6;sentantskabsm&#xF8;der/2021-04-20-Dagsorden-til-repr&#xE6;sentantskabsm&#xF8;de-BSB.pdf)

###

                                                Regnskaber

[2025 BSB hovedregnskab.pdf](https://www.boligfa.dk/p/Files/Boligdata/Dokumenter/Selskabsdokumenter/Sel.%209/Regnskaber/2025-BSB-hovedregnskab.pdf)
                                            [2024 Udkast regnskab BSB Erritsø.pdf](https://www.boligfa.dk/p/Files/Boligdata/Dokumenter/Selskabsdokumenter/Sel.%209/Regnskaber/2024-Udkast-regnskab-BSB-Errits&#xF8;.pdf)
                                            [2023 BSB Hovedregnskab.pdf](https://www.boligfa.dk/p/Files/Boligdata/Dokumenter/Selskabsdokumenter/Sel.%209/Regnskaber/2023-BSB-Hovedregnskab.pdf)
                                            [2022 BSB Hovedregnskab.pdf](https://www.boligfa.dk/p/Files/Boligdata/Dokumenter/Selskabsdokumenter/Sel.%209/Regnskaber/2022-BSB-Hovedregnskab.pdf)
                                            [2021 BSB hovedregnskab.pdf](https://www.boligfa.dk/p/Files/Boligdata/Dokumenter/Selskabsdokumenter/Sel.%209/Regnskaber/2021-BSB-hovedregnskab.pdf)
                                            [2020 BSB hovedregnskab.pdf](https://www.boligfa.dk/p/Files/Boligdata/Dokumenter/Selskabsdokumenter/Sel.%209/Regnskaber/2020-BSB-hovedregnskab.pdf)
                                            [2019 BSB hovedregnskab.pdf](https://www.boligfa.dk/p/Files/Boligdata/Dokumenter/Selskabsdokumenter/Sel.%209/Regnskaber/2019-BSB-hovedregnskab.pdf)

###

                                                Vedtægter

[Vedtægter for BSB Erritsø.pdf](https://www.boligfa.dk/p/Files/Boligdata/Dokumenter/Selskabsdokumenter/Sel.%209/Vedt&#xE6;gter/Vedt&#xE6;gter-for-BSB-Errits&#xF8;.pdf)
