---
title: "Christiansberg"
description: "1-404"
date: "2026-04-30"
created: "2025-09-17"
---

-
-
-
-
-

https://maps.google.dk/?q=55.5709894,9.75097

# Christiansberg

Afdeling 404

## Velkommen til Christiansberg

Christiansberg 7 - 31. Opførelsesår 1963/1967. Lejligheder i lukket og roligt vænge tæt på banegården, indkøb og centrum.

Christiansberg 13 - 21, der kan ikke søges indskudslån.
Christiansberg 7 - 11, 23 - 31, der kan søges indskudslån.

## Fakta for afdelingen

Vaskeri

Ja

Elevator

Ja

Der er elevator i opgangene ved nummer 7, 11, 23, 27 og 31 med mulighed for niveaufri adgang til boligerne

Hårde hvidevarer

Læs mere

Se i afdelingens vedligeholdelsesreglement, hvilke hårde hvidevarer der er i boligerne. Det fremgår under punktet "Boligernes standard ved indflytning "

TV

Læs mere

Beboere i denne afdeling får særlige priser på deres fiberbredbånd hos EWII. Læs mere på https://www.ewii.dk/privat/internet/boligforening/ eller kontakt EWII kundeservice på 7055 5555. Oplys at du er lejer hos Boligkontoret Fredericia. (Der kan være enkelte adresser der ikke kan leveres til / samt leveringstid)

Energimærkning

Læs mere

E

Have

Nej

Altan

Ja

Alle boliger har altan

Husdyr

Ja

Det er tilladt at have 1 indekat pr. lejemål. Læs altid afdelingens gældende regler for husdyr, i afdelingens husorden.

Forbrug

Læs mere

Forbrug afregnes direkte med forsyningsselskaberne.

Bi-lejemål

Ja

Der er et kælderrum til lejligheden. Der er mulighed for at leje et ekstra kælderrum eller en garage.Opskrivning på ventelisten kontakt varmemesteren.

Ladestander

Ja

Afdelingen har ladestandere til el-biler

                        Se flere

## Boligtyper i afdelingen

Almindelig bolig

2 værelses

boliger

Almindelig bolig

3 værelses

boliger

Almindelig bolig

4 værelses

boliger

Boligtype

Værelser

Størrelse

Husleje

Indskud/dp

Plantegning

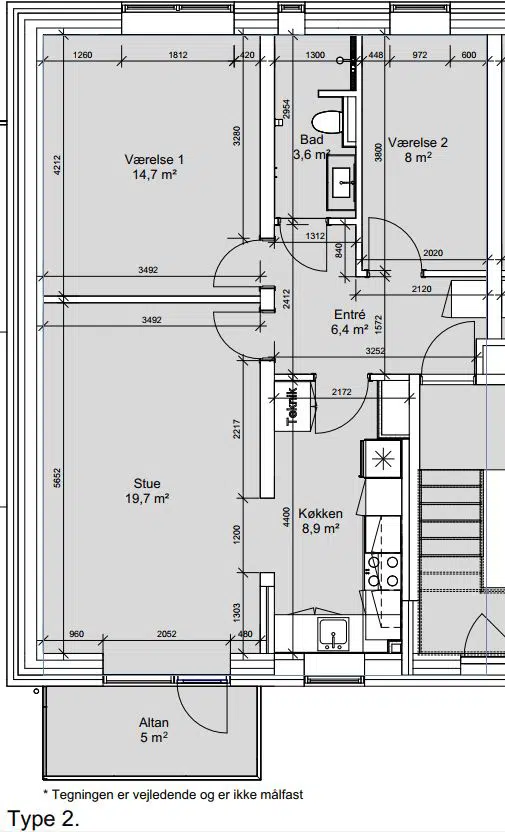
Almindelig bolig

2

86 m²

7278 kr.

15600 kr.

![](https://www.boligfa.dk/i/MOLIRIMEDIA/0b5e021a-1333-422d-d210-08dcfd846118?width=800)

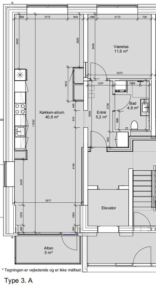
Almindelig bolig

3

79 m²

6004 kr.

14200 kr.

![](https://www.boligfa.dk/i/MOLIRIMEDIA/a3921b00-6de7-46ee-d363-08dcfd846118?width=800)

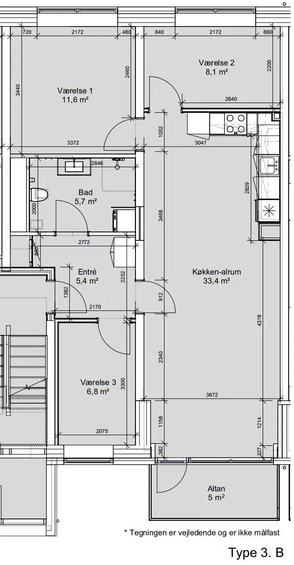
Almindelig bolig

3

97 m²

8094 kr.

17400 kr.

![](https://www.boligfa.dk/i/MOLIRIMEDIA/386cba5e-eb3b-42d7-d362-08dcfd846118?width=800)

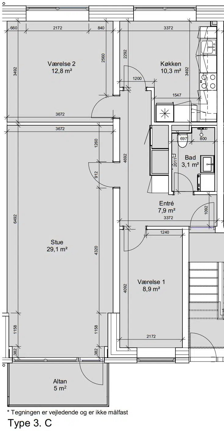
Almindelig bolig

3

90 m²

6767 kr.

16200 kr.

![](https://www.boligfa.dk/i/MOLIRIMEDIA/0be604f6-98bc-41b2-d6bd-08dcfd846118?width=800)

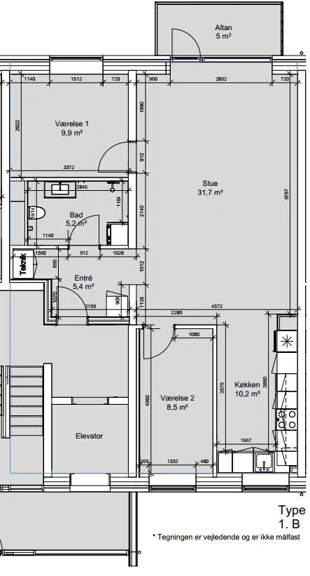
Almindelig bolig

4

101 m²

7523 kr.

18200 kr.

![](https://www.boligfa.dk/i/MOLIRIMEDIA/fdedd830-d9ab-4504-d789-08dcfd846118?width=800)

Almindelig bolig

4

108 m²

8877 kr.

19400 kr.

![](https://www.boligfa.dk/i/MOLIRIMEDIA/caf560a7-10e5-42bd-d30a-08dcfd846118?width=800)

Almindelig bolig

4

97 m²

8004 kr.

17400 kr.

![](https://www.boligfa.dk/i/MOLIRIMEDIA/d32278f1-959e-4863-d46a-08dcfd846118?width=800)

## Afdelingsdokumenter

Her finder du nyttig information om din afdeling, såsom husorden, vedligeholdelse af dit lejemål, eller referater fra hovedbestyrelsen.

###

                                                Brugervejledninger

[Brugervejledning-30-04-2026-afd.-404.pdf](https://www.boligfa.dk/p/Files/Boligdata/Dokumenter/Afd%2001%20404/Brugervejledninger/Brugervejledning-30-04-2026-afd.-404.pdf)

###

                                                Mødeindkaldelser

[2026-04-23-Indkaldelse-til-ekstraordinært-afdelingsmøde-afd.-404-Christiansberg.pdf](https://www.boligfa.dk/p/Files/Boligdata/Dokumenter/Afd%2001%20404/M&#xF8;deindkaldelser/2026-04-23-Indkaldelse-til-ekstraordin&#xE6;rt-afdelingsm&#xF8;de-afd.-404-Christiansberg.pdf)
                                            [2025-09-15 Indkaldelse til afdelingsmøde i afd. 404 Christiansberg.pdf](https://www.boligfa.dk/p/Files/Boligdata/Dokumenter/Afd%2001%20404/M&#xF8;deindkaldelser/2025-09-15-Indkaldelse-til-afdelingsm&#xF8;de-i-afd.-404-Christiansberg.pdf)
                                            [2024-09-16 Indkaldelse til afdelingsmøde afd. 404.pdf](https://www.boligfa.dk/p/Files/Boligdata/Dokumenter/Afd%2001%20404/M&#xF8;deindkaldelser/2024-09-16-Indkaldelse-til-afdelingsm&#xF8;de-afd.-404.pdf)
                                            [2023-09-04 Indkaldelse til afdelingsmøde afd. 404.pdf](https://www.boligfa.dk/p/Files/Boligdata/Dokumenter/Afd%2001%20404/M&#xF8;deindkaldelser/2023-09-04-Indkaldelse-til-afdelingsm&#xF8;de-afd.-404.pdf)
                                            [2022-09-05 Indkaldelse til afdelingsmøde afd. 404.pdf](https://www.boligfa.dk/p/Files/Boligdata/Dokumenter/Afd%2001%20404/M&#xF8;deindkaldelser/2022-09-05-Indkaldelse-til-afdelingsm&#xF8;de-afd.-404.pdf)
                                            [2021-09-16 Indkaldelse til besluttende afdelingsmøde i afd. 404.pdf](https://www.boligfa.dk/p/Files/Boligdata/Dokumenter/Afd%2001%20404/M&#xF8;deindkaldelser/2021-09-16-Indkaldelse-til-besluttende-afdelingsm&#xF8;de-i-afd.-404.pdf)
                                            [2021-09-14 Indkaldelse til afdelingsmøde afd. 404.pdf](https://www.boligfa.dk/p/Files/Boligdata/Dokumenter/Afd%2001%20404/M&#xF8;deindkaldelser/2021-09-14-Indkaldelse-til-afdelingsm&#xF8;de-afd.-404.pdf)

###

                                                Reglementer

[Vedligeholdelsesreglement 16-09-2024 afd. 404.pdf](https://www.boligfa.dk/p/Files/Boligdata/Dokumenter/Afd%2001%20404/Reglementer/Vedligeholdelsesreglement-16-09-2024-afd.-404.pdf)
                                            [Råderetskatalog 04-09-2023 afd. 404.pdf](https://www.boligfa.dk/p/Files/Boligdata/Dokumenter/Afd%2001%20404/Reglementer/R&#xE5;deretskatalog-04-09-2023-afd.-404.pdf)
                                            [Husorden 15-09-2025 afd. 404.pdf](https://www.boligfa.dk/p/Files/Boligdata/Dokumenter/Afd%2001%20404/Reglementer/Husorden-15-09-2025-afd.-404.pdf)

###

                                                Mødereferater

[2026-04-23-Referat-af-ekstraordinært-afdelingsmøde-afd.-404-Christiansberg.pdf](https://www.boligfa.dk/p/Files/Boligdata/Dokumenter/Afd%2001%20404/M&#xF8;dereferater/2026-04-23-Referat-af-ekstraordin&#xE6;rt-afdelingsm&#xF8;de-afd.-404-Christiansberg.pdf)
                                            [2025-09-15 Referat af afdelingsmøde afd. 404 Christiansberg.pdf](https://www.boligfa.dk/p/Files/Boligdata/Dokumenter/Afd%2001%20404/M&#xF8;dereferater/2025-09-15-Referat-af-afdelingsm&#xF8;de-afd.-404-Christiansberg.pdf)
                                            [2024-09-16 Referat af afdelingsmøde afd. 404.pdf](https://www.boligfa.dk/p/Files/Boligdata/Dokumenter/Afd%2001%20404/M&#xF8;dereferater/2024-09-16-Referat-af-afdelingsm&#xF8;de-afd.-404.pdf)
                                            [2023-09-04 Referat af afdelingsmøde afd. 404.pdf](https://www.boligfa.dk/p/Files/Boligdata/Dokumenter/Afd%2001%20404/M&#xF8;dereferater/2023-09-04-Referat-af-afdelingsm&#xF8;de-afd.-404.pdf)
                                            [2022-09-05 Referat af afdelingsmøde afd. 404.pdf](https://www.boligfa.dk/p/Files/Boligdata/Dokumenter/Afd%2001%20404/M&#xF8;dereferater/2022-09-05-Referat-af-afdelingsm&#xF8;de-afd.-404.pdf)
                                            [2021-09-16 Referat af ekstraordinært afdelingsmøde afd. 404.pdf](https://www.boligfa.dk/p/Files/Boligdata/Dokumenter/Afd%2001%20404/M&#xF8;dereferater/2021-09-16-Referat-af-ekstraordin&#xE6;rt-afdelingsm&#xF8;de-afd.-404.pdf)
                                            [2021-09-14 Referat af afdelingsmøde afd. 404.pdf](https://www.boligfa.dk/p/Files/Boligdata/Dokumenter/Afd%2001%20404/M&#xF8;dereferater/2021-09-14-Referat-af-afdelingsm&#xF8;de-afd.-404.pdf)

###

                                                Regnskaber

[2025 Regnskab afd. 404.pdf](https://www.boligfa.dk/p/Files/Boligdata/Dokumenter/Afd%2001%20404/Regnskaber/2025-Regnskab-afd.-404.pdf)
                                            [2024 Regnskab afd. 404.pdf](https://www.boligfa.dk/p/Files/Boligdata/Dokumenter/Afd%2001%20404/Regnskaber/2024-Regnskab-afd.-404.pdf)
                                            [2023 Regnskab afd. 404.pdf](https://www.boligfa.dk/p/Files/Boligdata/Dokumenter/Afd%2001%20404/Regnskaber/2023-Regnskab-afd.-404.pdf)
                                            [2022 Regnskab afd. 404.pdf](https://www.boligfa.dk/p/Files/Boligdata/Dokumenter/Afd%2001%20404/Regnskaber/2022-Regnskab-afd.-404.pdf)
                                            [2021 Regnskab afd. 404.pdf](https://www.boligfa.dk/p/Files/Boligdata/Dokumenter/Afd%2001%20404/Regnskaber/2021-Regnskab-afd.-404.pdf)
                                            [2020 Regnskab afd. 404.pdf](https://www.boligfa.dk/p/Files/Boligdata/Dokumenter/Afd%2001%20404/Regnskaber/2020-Regnskab-afd.-404.pdf)
                                            [2019 Regnskab afd. 404.pdf](https://www.boligfa.dk/p/Files/Boligdata/Dokumenter/Afd%2001%20404/Regnskaber/2019-Regnskab-afd.-404.pdf)

###

                                                Byggesag

[2025-09 Beboerguide til fejl og mangler efter helhedsplan afd. 404 Christiansberg.pdf](https://www.boligfa.dk/p/Files/Boligdata/Dokumenter/Afd%2001%20404/Byggesag/2025-09-Beboerguide-til-fejl-og-mangler-efter-helhedsplan-afd.-404-Christiansberg.pdf)
                                            [2025-09-17 Nyhedsbrev nr. 4 september afd. 404 Christiansberg.pdf](https://www.boligfa.dk/p/Files/Boligdata/Dokumenter/Afd%2001%20404/Byggesag/2025-09-17-Nyhedsbrev-nr.-4-september-afd.-404-Christiansberg.pdf)
                                            [2025-05-15 - orientering vedr. tidsplan afd. 404 Christiansberg.pdf](https://www.boligfa.dk/p/Files/Boligdata/Dokumenter/Afd%2001%20404/Byggesag/2025-05-15---orientering-vedr.-tidsplan-afd.-404-Christiansberg.pdf)
                                            [2025-02 Nyhedsbrev februar afd. 404.pdf](https://www.boligfa.dk/p/Files/Boligdata/Dokumenter/Afd%2001%20404/Byggesag/2025-02-Nyhedsbrev-februar-afd.-404.pdf)
                                            [2025-02-06 betjeningsvejledning ventilation afd. 404 Christiansberg.pdf](https://www.boligfa.dk/p/Files/Boligdata/Dokumenter/Afd%2001%20404/Byggesag/2025-02-06-betjeningsvejledning-ventilation-afd.-404-Christiansberg.pdf)
                                            [2025-02---nyhedsbrev-februar-2025-afd.pdf](https://www.boligfa.dk/p/Files/Boligdata/Dokumenter/Afd%2001%20404/Byggesag/2025-02---nyhedsbrev-februar-2025-afd.pdf)
                                            [2025-01-30 Orientering vedr. tidsplan - afd. 404 Christiansberg.pdf](https://www.boligfa.dk/p/Files/Boligdata/Dokumenter/Afd%2001%20404/Byggesag/2025-01-30-Orientering-vedr.-tidsplan---afd.-404-Christiansberg.pdf)
                                            [2024-10 Nyhedsbrev oktober afd. 404.pdf](https://www.boligfa.dk/p/Files/Boligdata/Dokumenter/Afd%2001%20404/Byggesag/2024-10-Nyhedsbrev-oktober-afd.-404.pdf)
                                            [2024-03 Nyhedsbrev marts afd. 404.pdf](https://www.boligfa.dk/p/Files/Boligdata/Dokumenter/Afd%2001%20404/Byggesag/2024-03-Nyhedsbrev-marts-afd.-404.pdf)

## Afdelingsbestyrelse

Rikke Linnet

Formand

(23.04.2026 - 01.10.2027)

Trine Vindeløv

Bestyrelsesmedlem

(23.04.2026 - 01.10.2026)

Trine Zimmermann

Bestyrelsesmedlem

(23.04.2026 - 01.10.2027)

Sasha Kattrup

1. Suppleant

(23.04.2024 - 01.10.2026)

## Kontor

### Servicecenter

76221200

servicecenter@boligfa.dk

### Åbningstider

Mandag - torsdag fra kl. 7.00 - 15.00

Fredag fra kl. 7.00 - 13.00

## Ejendomsadresse

### Varmemesterkontor

Adresse:

Vesterbrogade 20 St

7000 Fredericia

### Åbningstider

Personlig henvendelse mandag - fredag kl. 9.00 - 9.30

og mandag til torsdag kl. 12.00 - 12.30

## Inspektør

### Tommy Richterhausen

76221214

tor@boligfa.dk

## Organisationsdokumenter

Her finder du referater og dagsordner fra hovedbestyrelsen.

###

                                                Referat af organisationsbestyrelsesmøder

[2026-04-29 Referat af bestyrelsesmøde.pdf](https://www.boligfa.dk/p/Files/Boligdata/Dokumenter/Selskabsdokumenter/Sel.%201/Referat%20af%20organisationsbestyrelsesm&#xF8;der/2026-04-29-Referat-af-bestyrelsesm&#xF8;de.pdf)
                                            [2026-04-09  Referat af ekstraordinært bestyrelsesmøde.pdf](https://www.boligfa.dk/p/Files/Boligdata/Dokumenter/Selskabsdokumenter/Sel.%201/Referat%20af%20organisationsbestyrelsesm&#xF8;der/2026-04-09--Referat-af-ekstraordin&#xE6;rt-bestyrelsesm&#xF8;de.pdf)
                                            [2026-01-28 Referat af bestyrelsesmøde.pdf](https://www.boligfa.dk/p/Files/Boligdata/Dokumenter/Selskabsdokumenter/Sel.%201/Referat%20af%20organisationsbestyrelsesm&#xF8;der/2026-01-28-referat-af-bestyrelsesm&#xF8;de.pdf)
                                            [2025-12-03-Referat-af-bestyrelsesmøde.pdf](https://www.boligfa.dk/p/Files/Boligdata/Dokumenter/Selskabsdokumenter/Sel.%201/Referat%20af%20organisationsbestyrelsesm&#xF8;der/2025-12-03-Referat-af-bestyrelsesm&#xF8;de.pdf)
                                            [2025-10-22 Referat af bestyrelsesmøde.pdf](https://www.boligfa.dk/p/Files/Boligdata/Dokumenter/Selskabsdokumenter/Sel.%201/Referat%20af%20organisationsbestyrelsesm&#xF8;der/2025-10-22-Referat-af-bestyrelsesm&#xF8;de.pdf)
                                            [2025-08-27 Referat af bestyrelsesmøde.pdf](https://www.boligfa.dk/p/Files/Boligdata/Dokumenter/Selskabsdokumenter/Sel.%201/Referat%20af%20organisationsbestyrelsesm&#xF8;der/2025-08-27-Referat-af-bestyrelsesm&#xF8;de.pdf)
                                            [2025-06-11 Referat af bestyrelsesmøde.pdf](https://www.boligfa.dk/p/Files/Boligdata/Dokumenter/Selskabsdokumenter/Sel.%201/Referat%20af%20organisationsbestyrelsesm&#xF8;der/2025-06-11-Referat-af-bestyrelsesm&#xF8;de.pdf)
                                            [2025-04-23 Referat af bestyrelsesmøde.pdf](https://www.boligfa.dk/p/Files/Boligdata/Dokumenter/Selskabsdokumenter/Sel.%201/Referat%20af%20organisationsbestyrelsesm&#xF8;der/2025-04-23-Referat-af-bestyrelsesm&#xF8;de.pdf)
                                            [2025-01-29 Referat af bestyrelsesmøde.pdf](https://www.boligfa.dk/p/Files/Boligdata/Dokumenter/Selskabsdokumenter/Sel.%201/Referat%20af%20organisationsbestyrelsesm&#xF8;der/2025-01-29-Referat-af-bestyrelsesm&#xF8;de.pdf)
                                            [2024-12-04 Referat af bestyrelsesmøde.pdf](https://www.boligfa.dk/p/Files/Boligdata/Dokumenter/Selskabsdokumenter/Sel.%201/Referat%20af%20organisationsbestyrelsesm&#xF8;der/2024-12-04-Referat-af-bestyrelsesm&#xF8;de.pdf)
                                            [2024-10-22 Referat af bestyrelsesmøde.pdf](https://www.boligfa.dk/p/Files/Boligdata/Dokumenter/Selskabsdokumenter/Sel.%201/Referat%20af%20organisationsbestyrelsesm&#xF8;der/2024-10-22-Referat-af-bestyrelsesm&#xF8;de.pdf)
                                            [2024-08-28 Referat af bestyrelsesmøde.pdf](https://www.boligfa.dk/p/Files/Boligdata/Dokumenter/Selskabsdokumenter/Sel.%201/Referat%20af%20organisationsbestyrelsesm&#xF8;der/2024-08-28-Referat-af-bestyrelsesm&#xF8;de.pdf)
                                            [2024-06-19 Referat af bestyrelsesmøde.pdf](https://www.boligfa.dk/p/Files/Boligdata/Dokumenter/Selskabsdokumenter/Sel.%201/Referat%20af%20organisationsbestyrelsesm&#xF8;der/2024-06-19-Referat-af-bestyrelsesm&#xF8;de.pdf)
                                            [2024-04-24 Referat af bestyrelsesmøde.pdf](https://www.boligfa.dk/p/Files/Boligdata/Dokumenter/Selskabsdokumenter/Sel.%201/Referat%20af%20organisationsbestyrelsesm&#xF8;der/2024-04-24-Referat-af-bestyrelsesm&#xF8;de.pdf)
                                            [2024-02-07 Referat af bestyrelsesmøde.pdf](https://www.boligfa.dk/p/Files/Boligdata/Dokumenter/Selskabsdokumenter/Sel.%201/Referat%20af%20organisationsbestyrelsesm&#xF8;der/2024-02-07-Referat-af-bestyrelsesm&#xF8;de.pdf)
                                            [2023-12-06 Referat af bestyrelsesmøde.pdf](https://www.boligfa.dk/p/Files/Boligdata/Dokumenter/Selskabsdokumenter/Sel.%201/Referat%20af%20organisationsbestyrelsesm&#xF8;der/2023-12-06-Referat-af-bestyrelsesm&#xF8;de.pdf)
                                            [2023-10-11 Referat af bestyrelsesmøde.pdf](https://www.boligfa.dk/p/Files/Boligdata/Dokumenter/Selskabsdokumenter/Sel.%201/Referat%20af%20organisationsbestyrelsesm&#xF8;der/2023-10-11-Referat-af-bestyrelsesm&#xF8;de.pdf)
                                            [2023-08-23 Referat af bestyrelsesmøde.pdf](https://www.boligfa.dk/p/Files/Boligdata/Dokumenter/Selskabsdokumenter/Sel.%201/Referat%20af%20organisationsbestyrelsesm&#xF8;der/2023-08-23-Referat-af-bestyrelsesm&#xF8;de.pdf)
                                            [2023-06-14 Referat af bestyrelsesmøde.pdf](https://www.boligfa.dk/p/Files/Boligdata/Dokumenter/Selskabsdokumenter/Sel.%201/Referat%20af%20organisationsbestyrelsesm&#xF8;der/2023-06-14-Referat-af-bestyrelsesm&#xF8;de.pdf)
                                            [2023-04-26 Referat af bestyrelsesmøde.pdf](https://www.boligfa.dk/p/Files/Boligdata/Dokumenter/Selskabsdokumenter/Sel.%201/Referat%20af%20organisationsbestyrelsesm&#xF8;der/2023-04-26-Referat-af-bestyrelsesm&#xF8;de.pdf)
                                            [2023-02-01 Referat af bestyrelsesmøde.pdf](https://www.boligfa.dk/p/Files/Boligdata/Dokumenter/Selskabsdokumenter/Sel.%201/Referat%20af%20organisationsbestyrelsesm&#xF8;der/2023-02-01-Referat-af-bestyrelsesm&#xF8;de.pdf)
                                            [2022-12-07 Referat af bestyrelsesmøde.pdf](https://www.boligfa.dk/p/Files/Boligdata/Dokumenter/Selskabsdokumenter/Sel.%201/Referat%20af%20organisationsbestyrelsesm&#xF8;der/2022-12-07-Referat-af-bestyrelsesm&#xF8;de.pdf)
                                            [2022-10-12 Referat af bestyrelsesmøde.pdf](https://www.boligfa.dk/p/Files/Boligdata/Dokumenter/Selskabsdokumenter/Sel.%201/Referat%20af%20organisationsbestyrelsesm&#xF8;der/2022-10-12-Referat-af-bestyrelsesm&#xF8;de.pdf)
                                            [2022-08-31 Referat af bestyrelsesmøde.pdf](https://www.boligfa.dk/p/Files/Boligdata/Dokumenter/Selskabsdokumenter/Sel.%201/Referat%20af%20organisationsbestyrelsesm&#xF8;der/2022-08-31-Referat-af-bestyrelsesm&#xF8;de.pdf)
                                            [2022-06-22 Referat af bestyrelsesmøde.pdf](https://www.boligfa.dk/p/Files/Boligdata/Dokumenter/Selskabsdokumenter/Sel.%201/Referat%20af%20organisationsbestyrelsesm&#xF8;der/2022-06-22-Referat-af-bestyrelsesm&#xF8;de.pdf)
                                            [2022-04-26 Referat af bestyrelsesmøde.pdf](https://www.boligfa.dk/p/Files/Boligdata/Dokumenter/Selskabsdokumenter/Sel.%201/Referat%20af%20organisationsbestyrelsesm&#xF8;der/2022-04-26-Referat-af-bestyrelsesm&#xF8;de.pdf)
                                            [2022-02-02 Referat af bestyrelsesmøde.pdf](https://www.boligfa.dk/p/Files/Boligdata/Dokumenter/Selskabsdokumenter/Sel.%201/Referat%20af%20organisationsbestyrelsesm&#xF8;der/2022-02-02-Referat-af-bestyrelsesm&#xF8;de.pdf)
                                            [2021-12-08 Referat af bestyrelsesmøde.pdf](https://www.boligfa.dk/p/Files/Boligdata/Dokumenter/Selskabsdokumenter/Sel.%201/Referat%20af%20organisationsbestyrelsesm&#xF8;der/2021-12-08-Referat-af-bestyrelsesm&#xF8;de.pdf)
                                            [2021-10-13 Referat af bestyrelsesmøde.pdf](https://www.boligfa.dk/p/Files/Boligdata/Dokumenter/Selskabsdokumenter/Sel.%201/Referat%20af%20organisationsbestyrelsesm&#xF8;der/2021-10-13-Referat-af-bestyrelsesm&#xF8;de.pdf)
                                            [2021-09-01 Referat af bestyrelsesmøde.pdf](https://www.boligfa.dk/p/Files/Boligdata/Dokumenter/Selskabsdokumenter/Sel.%201/Referat%20af%20organisationsbestyrelsesm&#xF8;der/2021-09-01-Referat-af-bestyrelsesm&#xF8;de.pdf)
                                            [2021-06-24 Referat af bestyrelsesmøde.pdf](https://www.boligfa.dk/p/Files/Boligdata/Dokumenter/Selskabsdokumenter/Sel.%201/Referat%20af%20organisationsbestyrelsesm&#xF8;der/2021-06-24-Referat-af-bestyrelsesm&#xF8;de.pdf)
                                            [2021-04-28 Referat af bestyrelsesmøde.pdf](https://www.boligfa.dk/p/Files/Boligdata/Dokumenter/Selskabsdokumenter/Sel.%201/Referat%20af%20organisationsbestyrelsesm&#xF8;der/2021-04-28-Referat-af-bestyrelsesm&#xF8;de.pdf)
                                            [2021-02-24 Referat af bestyrelsesmøde.pdf](https://www.boligfa.dk/p/Files/Boligdata/Dokumenter/Selskabsdokumenter/Sel.%201/Referat%20af%20organisationsbestyrelsesm&#xF8;der/2021-02-24-Referat-af-bestyrelsesm&#xF8;de.pdf)

###

                                                Referat af repræsentantskabsmøder

[2025-05-28 Referat af repræsentantskabsmøde.pdf](https://www.boligfa.dk/p/Files/Boligdata/Dokumenter/Selskabsdokumenter/Sel.%201/Referat%20af%20repr&#xE6;sentantskabsm&#xF8;der/2025-05-28-Referat-af-repr&#xE6;sentantskabsm&#xF8;de.pdf)
                                            [2024-11-27 Referat af ekstraordinært repræsentantskabsmøde.pdf](https://www.boligfa.dk/p/Files/Boligdata/Dokumenter/Selskabsdokumenter/Sel.%201/Referat%20af%20repr&#xE6;sentantskabsm&#xF8;der/2024-11-27-Referat-af-ekstraordin&#xE6;rt-repr&#xE6;sentantskabsm&#xF8;de.pdf)
                                            [2024-05-22 Referat af repræsentantskabsmøde.pdf](https://www.boligfa.dk/p/Files/Boligdata/Dokumenter/Selskabsdokumenter/Sel.%201/Referat%20af%20repr&#xE6;sentantskabsm&#xF8;der/2024-05-22-Referat-af-repr&#xE6;sentantskabsm&#xF8;de.pdf)
                                            [2023-12-12 Referat af ekstraordinært repræsentantskabsmøde.pdf](https://www.boligfa.dk/p/Files/Boligdata/Dokumenter/Selskabsdokumenter/Sel.%201/Referat%20af%20repr&#xE6;sentantskabsm&#xF8;der/2023-12-12-Referat-af-ekstraordin&#xE6;rt-repr&#xE6;sentantskabsm&#xF8;de.pdf)
                                            [2023-06-13 Referat af ekstraordinært repræsentantskabsmøde.pdf](https://www.boligfa.dk/p/Files/Boligdata/Dokumenter/Selskabsdokumenter/Sel.%201/Referat%20af%20repr&#xE6;sentantskabsm&#xF8;der/2023-06-13-Referat-af-ekstraordin&#xE6;rt-repr&#xE6;sentantskabsm&#xF8;de.pdf)
                                            [2023-05-24 Referat af repræsentantskabsmøde.pdf](https://www.boligfa.dk/p/Files/Boligdata/Dokumenter/Selskabsdokumenter/Sel.%201/Referat%20af%20repr&#xE6;sentantskabsm&#xF8;der/2023-05-24-Referat-af-repr&#xE6;sentantskabsm&#xF8;de.pdf)
                                            [2022-06-09 Referat af ekstraordinært repræsentantskabsmøde.pdf](https://www.boligfa.dk/p/Files/Boligdata/Dokumenter/Selskabsdokumenter/Sel.%201/Referat%20af%20repr&#xE6;sentantskabsm&#xF8;der/2022-06-09-Referat-af-ekstraordin&#xE6;rt-repr&#xE6;sentantskabsm&#xF8;de.pdf)
                                            [2022-05-18 Referat af repræsentantskabsmøde.pdf](https://www.boligfa.dk/p/Files/Boligdata/Dokumenter/Selskabsdokumenter/Sel.%201/Referat%20af%20repr&#xE6;sentantskabsm&#xF8;der/2022-05-18-Referat-af-repr&#xE6;sentantskabsm&#xF8;de.pdf)
                                            [2022-05-18 Forslag til vedtægsændringer.pdf](https://www.boligfa.dk/p/Files/Boligdata/Dokumenter/Selskabsdokumenter/Sel.%201/Referat%20af%20repr&#xE6;sentantskabsm&#xF8;der/2022-05-18-Forslag-til-vedt&#xE6;gs&#xE6;ndringer.pdf)
                                            [2021-10-27 Referat af ekstraordinært repræsentantskabsmøde.pdf](https://www.boligfa.dk/p/Files/Boligdata/Dokumenter/Selskabsdokumenter/Sel.%201/Referat%20af%20repr&#xE6;sentantskabsm&#xF8;der/2021-10-27-Referat-af-ekstraordin&#xE6;rt-repr&#xE6;sentantskabsm&#xF8;de.pdf)
                                            [2021-06-21 Referat af repræsentantskabsmøde.pdf](https://www.boligfa.dk/p/Files/Boligdata/Dokumenter/Selskabsdokumenter/Sel.%201/Referat%20af%20repr&#xE6;sentantskabsm&#xF8;der/2021-06-21-Referat-af-repr&#xE6;sentantskabsm&#xF8;de.pdf)

###

                                                Mødeindkaldelser organisationsbestyrelse

[2026-04-29 Dagsorden til bestyrelsesmøde.pdf](https://www.boligfa.dk/p/Files/Boligdata/Dokumenter/Selskabsdokumenter/Sel.%201/M&#xF8;deindkaldelser%20organisationsbestyrelse/2026-04-29-Dagsorden-til-bestyrelsesm&#xF8;de.pdf)
                                            [2026-01-28 Dagsorden til bestyrelsesmøde.pdf](https://www.boligfa.dk/p/Files/Boligdata/Dokumenter/Selskabsdokumenter/Sel.%201/M&#xF8;deindkaldelser%20organisationsbestyrelse/2026-01-28-Dagsorden-til-bestyrelsesm&#xF8;de.pdf)
                                            [2025-12-03-Dagsorden-til-bestyrelsesmøde.pdf](https://www.boligfa.dk/p/Files/Boligdata/Dokumenter/Selskabsdokumenter/Sel.%201/M&#xF8;deindkaldelser%20organisationsbestyrelse/2025-12-03-Dagsorden-til-bestyrelsesm&#xF8;de.pdf)
                                            [2025-10-22 Dagsorden til bestyrelsesmøde.pdf](https://www.boligfa.dk/p/Files/Boligdata/Dokumenter/Selskabsdokumenter/Sel.%201/M&#xF8;deindkaldelser%20organisationsbestyrelse/2025-10-22-Dagsorden-til-bestyrelsesm&#xF8;de.pdf)
                                            [2025-08-27 Dagsorden til bestyrelsesmøde.pdf](https://www.boligfa.dk/p/Files/Boligdata/Dokumenter/Selskabsdokumenter/Sel.%201/M&#xF8;deindkaldelser%20organisationsbestyrelse/2025-08-27-Dagsorden-til-bestyrelsesm&#xF8;de.pdf)
                                            [2025-06-11-Dagsorden-til-bestyrelsesmøde.pdf](https://www.boligfa.dk/p/Files/Boligdata/Dokumenter/Selskabsdokumenter/Sel.%201/M&#xF8;deindkaldelser%20organisationsbestyrelse/2025-06-11-Dagsorden-til-bestyrelsesm&#xF8;de.pdf)
                                            [2025-04-23 Dagsorden til bestyrelsesmøde.pdf](https://www.boligfa.dk/p/Files/Boligdata/Dokumenter/Selskabsdokumenter/Sel.%201/M&#xF8;deindkaldelser%20organisationsbestyrelse/2025-04-23-Dagsorden-til-bestyrelsesm&#xF8;de.pdf)
                                            [2025-01-29 Dagsorden til bestyrelsesmøde.pdf](https://www.boligfa.dk/p/Files/Boligdata/Dokumenter/Selskabsdokumenter/Sel.%201/M&#xF8;deindkaldelser%20organisationsbestyrelse/2025-01-29-Dagsorden-til-bestyrelsesm&#xF8;de.pdf)
                                            [2024-12-04 Dagsorden til bestyrelsesmøde.pdf](https://www.boligfa.dk/p/Files/Boligdata/Dokumenter/Selskabsdokumenter/Sel.%201/M&#xF8;deindkaldelser%20organisationsbestyrelse/2024-12-04-Dagsorden-til-bestyrelsesm&#xF8;de.pdf)
                                            [2024-10-22 Dagsorden til bestyrelsesmøde.pdf](https://www.boligfa.dk/p/Files/Boligdata/Dokumenter/Selskabsdokumenter/Sel.%201/M&#xF8;deindkaldelser%20organisationsbestyrelse/2024-10-22-Dagsorden-til-bestyrelsesm&#xF8;de.pdf)
                                            [2024-06-19 Dagsorden til bestyrelsesmøde.pdf](https://www.boligfa.dk/p/Files/Boligdata/Dokumenter/Selskabsdokumenter/Sel.%201/M&#xF8;deindkaldelser%20organisationsbestyrelse/2024-06-19-Dagsorden-til-bestyrelsesm&#xF8;de.pdf)
                                            [2024-04-24 Dagsorden til bestyrelsesmøde.pdf](https://www.boligfa.dk/p/Files/Boligdata/Dokumenter/Selskabsdokumenter/Sel.%201/M&#xF8;deindkaldelser%20organisationsbestyrelse/2024-04-24-Dagsorden-til-bestyrelsesm&#xF8;de.pdf)
                                            [2024-02-07 Dagsorden til bestyrelsesmøde.pdf](https://www.boligfa.dk/p/Files/Boligdata/Dokumenter/Selskabsdokumenter/Sel.%201/M&#xF8;deindkaldelser%20organisationsbestyrelse/2024-02-07-Dagsorden-til-bestyrelsesm&#xF8;de.pdf)
                                            [2023-10-11 Dagsorden til bestyrelsesmøde.pdf](https://www.boligfa.dk/p/Files/Boligdata/Dokumenter/Selskabsdokumenter/Sel.%201/M&#xF8;deindkaldelser%20organisationsbestyrelse/2023-10-11-Dagsorden-til-bestyrelsesm&#xF8;de.pdf)
                                            [2023-08-23 Dagsorden til bestyrelsesmøde.pdf](https://www.boligfa.dk/p/Files/Boligdata/Dokumenter/Selskabsdokumenter/Sel.%201/M&#xF8;deindkaldelser%20organisationsbestyrelse/2023-08-23-Dagsorden-til-bestyrelsesm&#xF8;de.pdf)
                                            [2023-06-14 Dagsorden til bestyrelsesmøde.pdf](https://www.boligfa.dk/p/Files/Boligdata/Dokumenter/Selskabsdokumenter/Sel.%201/M&#xF8;deindkaldelser%20organisationsbestyrelse/2023-06-14-Dagsorden-til-bestyrelsesm&#xF8;de.pdf)
                                            [2023-04-26 Dagsorden til bestyrelsesmøde.pdf](https://www.boligfa.dk/p/Files/Boligdata/Dokumenter/Selskabsdokumenter/Sel.%201/M&#xF8;deindkaldelser%20organisationsbestyrelse/2023-04-26-Dagsorden-til-bestyrelsesm&#xF8;de.pdf)
                                            [2023-02-01 Dagsorden til bestyrelsesmøde.pdf](https://www.boligfa.dk/p/Files/Boligdata/Dokumenter/Selskabsdokumenter/Sel.%201/M&#xF8;deindkaldelser%20organisationsbestyrelse/2023-02-01-Dagsorden-til-bestyrelsesm&#xF8;de.pdf)
                                            [2022-12-07 Dagsorden til bestyrelsesmøde.pdf](https://www.boligfa.dk/p/Files/Boligdata/Dokumenter/Selskabsdokumenter/Sel.%201/M&#xF8;deindkaldelser%20organisationsbestyrelse/2022-12-07-Dagsorden-til-bestyrelsesm&#xF8;de.pdf)
                                            [2022-10-12 Dagsorden til bestyrelsesmøde.pdf](https://www.boligfa.dk/p/Files/Boligdata/Dokumenter/Selskabsdokumenter/Sel.%201/M&#xF8;deindkaldelser%20organisationsbestyrelse/2022-10-12-Dagsorden-til-bestyrelsesm&#xF8;de.pdf)
                                            [2022-08-31 Dagsorden til bestyrelsesmøde.pdf](https://www.boligfa.dk/p/Files/Boligdata/Dokumenter/Selskabsdokumenter/Sel.%201/M&#xF8;deindkaldelser%20organisationsbestyrelse/2022-08-31-Dagsorden-til-bestyrelsesm&#xF8;de.pdf)
                                            [2022-06-22 Dagsorden til bestyrelsesmøde.pdf](https://www.boligfa.dk/p/Files/Boligdata/Dokumenter/Selskabsdokumenter/Sel.%201/M&#xF8;deindkaldelser%20organisationsbestyrelse/2022-06-22-Dagsorden-til-bestyrelsesm&#xF8;de.pdf)
                                            [2022-04-26 Dagsorden til bestyrelsesmøde.pdf](https://www.boligfa.dk/p/Files/Boligdata/Dokumenter/Selskabsdokumenter/Sel.%201/M&#xF8;deindkaldelser%20organisationsbestyrelse/2022-04-26-Dagsorden-til-bestyrelsesm&#xF8;de.pdf)
                                            [2022-02-02 Dagsorden til bestyrelsesmøde.pdf](https://www.boligfa.dk/p/Files/Boligdata/Dokumenter/Selskabsdokumenter/Sel.%201/M&#xF8;deindkaldelser%20organisationsbestyrelse/2022-02-02-Dagsorden-til-bestyrelsesm&#xF8;de.pdf)
                                            [2021-12-08 Dagsorden til bestyrelsesmøde.pdf](https://www.boligfa.dk/p/Files/Boligdata/Dokumenter/Selskabsdokumenter/Sel.%201/M&#xF8;deindkaldelser%20organisationsbestyrelse/2021-12-08-Dagsorden-til-bestyrelsesm&#xF8;de.pdf)
                                            [2021-10-13 Dagsorden til bestyrelsesmøde.pdf](https://www.boligfa.dk/p/Files/Boligdata/Dokumenter/Selskabsdokumenter/Sel.%201/M&#xF8;deindkaldelser%20organisationsbestyrelse/2021-10-13-Dagsorden-til-bestyrelsesm&#xF8;de.pdf)
                                            [2021-09-01 Dagsorden til bestyrelsesmøde.pdf](https://www.boligfa.dk/p/Files/Boligdata/Dokumenter/Selskabsdokumenter/Sel.%201/M&#xF8;deindkaldelser%20organisationsbestyrelse/2021-09-01-Dagsorden-til-bestyrelsesm&#xF8;de.pdf)
                                            [2021-02-24 Dagsorden til bestyrelsesmøde.pdf](https://www.boligfa.dk/p/Files/Boligdata/Dokumenter/Selskabsdokumenter/Sel.%201/M&#xF8;deindkaldelser%20organisationsbestyrelse/2021-02-24-Dagsorden-til-bestyrelsesm&#xF8;de.pdf)

###

                                                Mødeindkaldelser repræsentantskabsmøder

[2026-05-27 Indkaldelse til repræsentantskabsmøde.pdf](https://www.boligfa.dk/p/Files/Boligdata/Dokumenter/Selskabsdokumenter/Sel.%201/M&#xF8;deindkaldelser%20repr&#xE6;sentantskabsm&#xF8;der/2026-05-27-Indkaldelse-til-repr&#xE6;sentantskabsm&#xF8;de.pdf)
                                            [2025-05-28-Indkaldelse-til-repræsentantskabsmøde.pdf](https://www.boligfa.dk/p/Files/Boligdata/Dokumenter/Selskabsdokumenter/Sel.%201/M&#xF8;deindkaldelser%20repr&#xE6;sentantskabsm&#xF8;der/2025-05-28-Indkaldelse-til-repr&#xE6;sentantskabsm&#xF8;de.pdf)
                                            [2025-05-28 Indkaldelse (ny adresse) til repræsentantskabsmøde.pdf](https://www.boligfa.dk/p/Files/Boligdata/Dokumenter/Selskabsdokumenter/Sel.%201/M&#xF8;deindkaldelser%20repr&#xE6;sentantskabsm&#xF8;der/2025-05-28-Indkaldelse--ny-adresse--til-repr&#xE6;sentantskabsm&#xF8;de.pdf)
                                            [2025-05-28 Dagsorden til repræsentantskabsmødet.pdf](https://www.boligfa.dk/p/Files/Boligdata/Dokumenter/Selskabsdokumenter/Sel.%201/M&#xF8;deindkaldelser%20repr&#xE6;sentantskabsm&#xF8;der/2025-05-28-Dagsorden-til-repr&#xE6;sentantskabsm&#xF8;det.pdf)
                                            [2024-11-27 Indkaldelse til ekstraordinært repræsentantskabsmøde.pdf](https://www.boligfa.dk/p/Files/Boligdata/Dokumenter/Selskabsdokumenter/Sel.%201/M&#xF8;deindkaldelser%20repr&#xE6;sentantskabsm&#xF8;der/2024-11-27-Indkaldelse-til-ekstraordin&#xE6;rt-repr&#xE6;sentantskabsm&#xF8;de.pdf)
                                            [2024-11-27 Dagsorden til ekstraordinært repræsentantskabsmøde.pdf](https://www.boligfa.dk/p/Files/Boligdata/Dokumenter/Selskabsdokumenter/Sel.%201/M&#xF8;deindkaldelser%20repr&#xE6;sentantskabsm&#xF8;der/2024-11-27-Dagsorden-til-ekstraordin&#xE6;rt-repr&#xE6;sentantskabsm&#xF8;de.pdf)
                                            [2024-05-22 Indkaldelse til repræsentantskabsmøde.pdf](https://www.boligfa.dk/p/Files/Boligdata/Dokumenter/Selskabsdokumenter/Sel.%201/M&#xF8;deindkaldelser%20repr&#xE6;sentantskabsm&#xF8;der/2024-05-22-Indkaldelse-til-repr&#xE6;sentantskabsm&#xF8;de.pdf)
                                            [2023-06-13 Indkaldelse til ekstraordinært repræsentantskabsmøde.pdf](https://www.boligfa.dk/p/Files/Boligdata/Dokumenter/Selskabsdokumenter/Sel.%201/M&#xF8;deindkaldelser%20repr&#xE6;sentantskabsm&#xF8;der/2023-06-13-Indkaldelse-til-ekstraordin&#xE6;rt-repr&#xE6;sentantskabsm&#xF8;de.pdf)
                                            [2023-05-24 Indkaldelse til repræsentantskabsmøde.pdf](https://www.boligfa.dk/p/Files/Boligdata/Dokumenter/Selskabsdokumenter/Sel.%201/M&#xF8;deindkaldelser%20repr&#xE6;sentantskabsm&#xF8;der/2023-05-24-Indkaldelse-til-repr&#xE6;sentantskabsm&#xF8;de.pdf)
                                            [2022-06-09 Ny dagsorden til ekstraordinært repræsentantskabsmøde.pdf](https://www.boligfa.dk/p/Files/Boligdata/Dokumenter/Selskabsdokumenter/Sel.%201/M&#xF8;deindkaldelser%20repr&#xE6;sentantskabsm&#xF8;der/2022-06-09-Ny-dagsorden-til-ekstraordin&#xE6;rt-repr&#xE6;sentantskabsm&#xF8;de.pdf)
                                            [2022-06-09 Indkaldelse til ekstraordinært repræsentantskabsmøde.pdf](https://www.boligfa.dk/p/Files/Boligdata/Dokumenter/Selskabsdokumenter/Sel.%201/M&#xF8;deindkaldelser%20repr&#xE6;sentantskabsm&#xF8;der/2022-06-09-Indkaldelse-til-ekstraordin&#xE6;rt-repr&#xE6;sentantskabsm&#xF8;de.pdf)
                                            [2022-05-18 Indkaldelse til repræsentantskabsmøde.pdf.pdf](https://www.boligfa.dk/p/Files/Boligdata/Dokumenter/Selskabsdokumenter/Sel.%201/M&#xF8;deindkaldelser%20repr&#xE6;sentantskabsm&#xF8;der/2022-05-18-Indkaldelse-til-repr&#xE6;sentantskabsm&#xF8;de.pdf.pdf)
                                            [2022-05-18 Indkaldelse til repræsentantskabsmøde.pdf](https://www.boligfa.dk/p/Files/Boligdata/Dokumenter/Selskabsdokumenter/Sel.%201/M&#xF8;deindkaldelser%20repr&#xE6;sentantskabsm&#xF8;der/2022-05-18-Indkaldelse-til-repr&#xE6;sentantskabsm&#xF8;de.pdf)
                                            [2021-10-27 Indkaldelse til ekstraordinært repræsentantskabsmøde.pdf](https://www.boligfa.dk/p/Files/Boligdata/Dokumenter/Selskabsdokumenter/Sel.%201/M&#xF8;deindkaldelser%20repr&#xE6;sentantskabsm&#xF8;der/2021-10-27-Indkaldelse-til-ekstraordin&#xE6;rt-repr&#xE6;sentantskabsm&#xF8;de.pdf)
                                            [2021-06-21 Indkaldelse til repræsentantskabsmøde.pdf](https://www.boligfa.dk/p/Files/Boligdata/Dokumenter/Selskabsdokumenter/Sel.%201/M&#xF8;deindkaldelser%20repr&#xE6;sentantskabsm&#xF8;der/2021-06-21-Indkaldelse-til-repr&#xE6;sentantskabsm&#xF8;de.pdf)

###

                                                Regnskaber

[2025 Regnskab Boligkontoret Fredericia.pdf](https://www.boligfa.dk/p/Files/Boligdata/Dokumenter/Selskabsdokumenter/Sel.%201/Regnskaber/2025-Regnskab-Boligkontoret-Fredericia.pdf)
                                            [2024 Regnskab Boligkontoret Fredericia.pdf](https://www.boligfa.dk/p/Files/Boligdata/Dokumenter/Selskabsdokumenter/Sel.%201/Regnskaber/2024-Regnskab-Boligkontoret-Fredericia.pdf)
                                            [2023 Regnskab Boligkontoret Fredericia.pdf](https://www.boligfa.dk/p/Files/Boligdata/Dokumenter/Selskabsdokumenter/Sel.%201/Regnskaber/2023-Regnskab-Boligkontoret-Fredericia.pdf)
                                            [2022 Regnskab Boligkontoret Fredericia.pdf](https://www.boligfa.dk/p/Files/Boligdata/Dokumenter/Selskabsdokumenter/Sel.%201/Regnskaber/2022-Regnskab-Boligkontoret-Fredericia.pdf)
                                            [2021 Regnskab Boligkontoret Fredercia.pdf](https://www.boligfa.dk/p/Files/Boligdata/Dokumenter/Selskabsdokumenter/Sel.%201/Regnskaber/2021-Regnskab-Boligkontoret-Fredercia.pdf)
                                            [2020 Regnskab Boligkontoret Fredericia.pdf](https://www.boligfa.dk/p/Files/Boligdata/Dokumenter/Selskabsdokumenter/Sel.%201/Regnskaber/2020-Regnskab-Boligkontoret-Fredericia.pdf)
                                            [2019 Regnskab Boligkontoret Fredericia.pdf](https://www.boligfa.dk/p/Files/Boligdata/Dokumenter/Selskabsdokumenter/Sel.%201/Regnskaber/2019-Regnskab-Boligkontoret-Fredericia.pdf)

###

                                                Vedtægter

[Vedtægter for Boligkontoret Fredericia.pdf](https://www.boligfa.dk/p/Files/Boligdata/Dokumenter/Selskabsdokumenter/Sel.%201/Vedt&#xE6;gter/Vedt&#xE6;gter-for-Boligkontoret-Fredericia.pdf)
