---
title: "Kongens Punkt"
description: "1-604"
date: "2026-03-02"
created: "2025-06-23"
---

-
-
-
-
-
-

https://maps.google.dk/?q=55.5610967,9.7632529

# Kongens Punkt

Afdeling 604

## Velkommen til Kongens Punkt

Kongensgade 118 - 144. Opførelsesår 2019.

Afdelingen består af 28 seniorboliger og 13 almindelige boliger i 2 plan - i en afdeling med mulighed for fælles aktiviteter og lige ved Frederiks kanalen i Kanalbyen.

**Kanalbyen - et ideelt sted at bo**

Den centralt beliggende boligafdeling byder på seniorboliger i ét plan og moderne lejligheder i to plan.

Kanalbyen tilbyder ikke kun byliv, men også smukke naturskønne områder lige ved døren. Du kan nyde lange gåture langs kanalen eller tage på cykelture i de nærliggende grønne områder. Området er ideelt for dem, der sætter pris på en balance mellem byens bekvemmeligheder og naturens ro.

Afdelingen har fælleslokale, gæsteværelse, 2 tagterrasser samt parkeringskælder og et godt fællesskab.

Boligerne i 2 plan **** er perfekte til par eller familier, som ønsker en moderne og rummelig bolig, hvor der er plads til at bo. Den åbne planløsning og store vinduespartier giver et lyst og luftigt hjem, hvor du kan nyde både privatliv og fællesområder.

Uanset om du søger en seniorbolig, en familielejlighed eller et moderne hjem tæt på centrum, tilbyder vores boligafdeling i Kanalbyen de perfekte rammer for et bekvemt og aktivt liv i Fredericia.

Der kan søges indskudslån.

## Fakta for afdelingen

Vaskeri

Nej

Elevator

Ja

Der er elevator i alle opgange, med mulighed for niveaufri adgang til boligerne

Hårde hvidevarer

Læs mere

Se i afdelingens vedligeholdelsesreglement, hvilke hårde hvidevarer der er i boligerne. Det fremgår under punktet "Boligernes standard ved indflytning "

TV

Læs mere

Beboere i denne afdeling får særlige priser på deres fiberbredbånd hos EWII. Læs mere på https://www.ewii.dk/privat/internet/boligforening/ eller kontakt EWII kundeservice på 7055 5555. Oplys at du er lejer hos Boligkontoret Fredericia. (Der kan være enkelte adresser der ikke kan leveres til / samt leveringstid)

Festlokale

Ja

Afdelingen har  fælles beboerlokale / festlokale og 1 gæsteværelse i afdelingen.

Have

Ja

Stuelejlighederne har egen flisebelagt areal foran boligen, ud til det fælles gårdmiljø.

Altan

Ja

Boligerne har enten 1 eller 2 altaner, opholdsareal på svalegangen eller egen flisebelagt areal i stueetagen.

Husdyr

Ja

I afdelingen er det tilladt, at have 1 hund eller 1 indekat. Læs altid afdelingens gældende regler for husdyr, i afdelingens husorden.

Forbrug

Læs mere

Forbrug afregnes direkte med forsyningsselskaberne.

Bi-lejemål

Ja

Der er 1 depotrum i kælderen til hver bolig. Der er mulighed for, at leje en P-plads i parkeringskælderen. Opskrivning på ventelisten - kontakt administrationen

Ladestander

Nej

                        Se flere

## Boligtyper i afdelingen

Almindelig bolig

2 værelses

boliger

Almindelig bolig

3 værelses

boliger

Boligtype

Værelser

Størrelse

Husleje

Indskud/dp

Plantegning

Almindelig bolig

2

77.6 m²

7241 kr.

37333 kr.

![](https://www.boligfa.dk/i/MOLIRIMEDIA/66bc4509-861b-4204-d5ed-08dcfd846118?width=800)

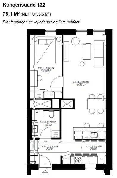
Almindelig bolig

2

68.5 m²

6486 kr.

33437 kr.

![](https://www.boligfa.dk/i/MOLIRIMEDIA/c7c9e6f7-57da-4be4-d4fd-08dcfd846118?width=800)

Almindelig bolig

2

97.8 m²

9002 kr.

46409 kr.

![](https://www.boligfa.dk/i/MOLIRIMEDIA/7b9642f8-3b98-4ebd-d292-08dcfd846118?width=800)

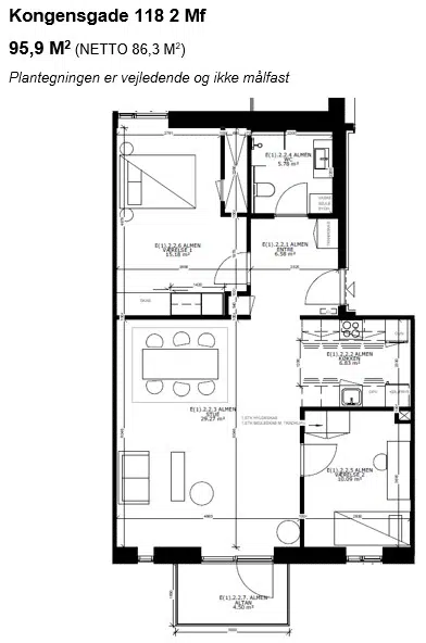
Almindelig bolig

2

105.2 m²

9533 kr.

49149 kr.

![](https://www.boligfa.dk/i/MOLIRIMEDIA/09d647b1-65dd-4fb7-d2b0-08dcfd846118?width=800)

Almindelig bolig

2

83.6 m²

7739 kr.

39901 kr.

![](https://www.boligfa.dk/i/MOLIRIMEDIA/c59206ae-a230-4d27-d29e-08dcfd846118?width=800)

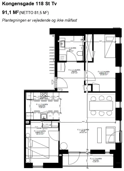
Almindelig bolig

3

81.5 m²

7565 kr.

39002 kr.

![](https://www.boligfa.dk/i/MOLIRIMEDIA/a4b4fcfa-240d-4627-d6f3-08dcfd846118?width=800)

Almindelig bolig

3

89.7 m²

8245 kr.

42513 kr.

![](https://www.boligfa.dk/i/MOLIRIMEDIA/158002e9-1995-487e-d611-08dcfd846118?width=800)

Almindelig bolig

3

84.4 m²

7806 kr.

40244 kr.

![](https://www.boligfa.dk/i/MOLIRIMEDIA/6997f3f5-5302-4f0c-d87a-08dcfd846118?width=800)

Almindelig bolig

3

101.6 m²

9234 kr.

47608 kr.

![](https://www.boligfa.dk/i/MOLIRIMEDIA/e023be3f-65f7-476d-d3ab-08dcfd846118?width=800)

Almindelig bolig

3

84.4 m²

7806 kr.

40244 kr.

![](https://www.boligfa.dk/i/MOLIRIMEDIA/48c9609a-fe9a-4f2e-d650-08dcfd846118?width=800)

Almindelig bolig

3

90.1 m²

8279 kr.

42684 kr.

![](https://www.boligfa.dk/i/MOLIRIMEDIA/761b1b17-d4d4-480e-d6a3-08dcfd846118?width=800)

Almindelig bolig

3

85.3 m²

7881 kr.

40629 kr.

![](https://www.boligfa.dk/i/MOLIRIMEDIA/fe73b3cb-43e6-4385-d5ae-08dcfd846118?width=800)

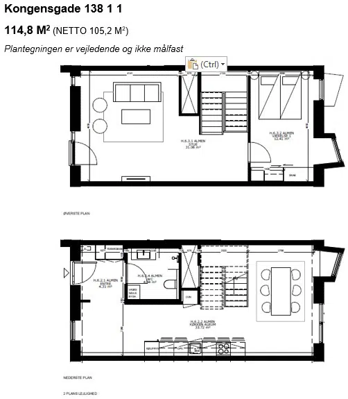
Almindelig bolig

3

105.2 m²

9533 kr.

49149 kr.

![](https://www.boligfa.dk/i/MOLIRIMEDIA/4f1aed9c-df68-4c32-d78b-08dcfd846118?width=800)

Almindelig bolig

3

105.4 m²

9550 kr.

49235 kr.

![](https://www.boligfa.dk/i/MOLIRIMEDIA/5015ea75-9212-40ea-0099-08dcfd846119?width=800)

Almindelig bolig

3

84.3 m²

7798 kr.

40201 kr.

![](https://www.boligfa.dk/i/MOLIRIMEDIA/3a8dfeae-7fa6-4338-d30e-08dcfd846118?width=800)

Almindelig bolig

3

85.3 m²

7881 kr.

40629 kr.

![](https://www.boligfa.dk/i/MOLIRIMEDIA/35e417be-554f-4402-d645-08dcfd846118?width=800)

Almindelig bolig

3

86.3 m²

7964 kr.

41057 kr.

![](https://www.boligfa.dk/i/MOLIRIMEDIA/be1da088-e0cf-46c6-d3c9-08dcfd846118?width=800)

Almindelig bolig

3

86.3 m²

7964 kr.

41057 kr.

![](https://www.boligfa.dk/i/MOLIRIMEDIA/fa9a581f-2bc2-4510-d564-08dcfd846118?width=800)

Almindelig bolig

3

94.1 m²

8612 kr.

44397 kr.

![](https://www.boligfa.dk/i/MOLIRIMEDIA/fa1f261d-3e38-4fb7-d62d-08dcfd846118?width=800)

## Afdelingsdokumenter

Her finder du nyttig information om din afdeling, såsom husorden, vedligeholdelse af dit lejemål, eller referater fra hovedbestyrelsen.

###

                                                Brugervejledninger

[Brugervejledning-30-03-2026-afd.-604-Kongens-Punkt.pdf](https://www.boligfa.dk/p/Files/Boligdata/Dokumenter/Afd%2001%20604/Brugervejledninger/Brugervejledning-30-03-2026-afd.-604-Kongens-Punkt.pdf)

###

                                                Mødeindkaldelser

[2025-09-11 Indkaldelse til afdelingsmøde i afd. 604 Kongens Punkt.pdf](https://www.boligfa.dk/p/Files/Boligdata/Dokumenter/Afd%2001%20604/M&#xF8;deindkaldelser/2025-09-11-Indkaldelse-til-afdelingsm&#xF8;de-i-afd.-604-Kongens-Punkt.pdf)
                                            [2024-09-12 Indkaldelse  til afdelingsmøde afd. 604.pdf](https://www.boligfa.dk/p/Files/Boligdata/Dokumenter/Afd%2001%20604/M&#xF8;deindkaldelser/2024-09-12-Indkaldelse--til-afdelingsm&#xF8;de-afd.-604.pdf)
                                            [2023-09-14 Indkaldelse til afdelingsmøde afd. 604.pdf](https://www.boligfa.dk/p/Files/Boligdata/Dokumenter/Afd%2001%20604/M&#xF8;deindkaldelser/2023-09-14-Indkaldelse-til-afdelingsm&#xF8;de-afd.-604.pdf)
                                            [2022-10-05 Indkaldelse til ekstraordinært afdelingsmøde afd. 604.pdf](https://www.boligfa.dk/p/Files/Boligdata/Dokumenter/Afd%2001%20604/M&#xF8;deindkaldelser/2022-10-05-Indkaldelse-til-ekstraordin&#xE6;rt-afdelingsm&#xF8;de-afd.-604.pdf)
                                            [2022-09-08 Indkaldelse til afdelingsmøde afd. 604.pdf](https://www.boligfa.dk/p/Files/Boligdata/Dokumenter/Afd%2001%20604/M&#xF8;deindkaldelser/2022-09-08-Indkaldelse-til-afdelingsm&#xF8;de-afd.-604.pdf)
                                            [2021-08-30 Indkaldelse til afdelingsmøde afd. 604.pdf](https://www.boligfa.dk/p/Files/Boligdata/Dokumenter/Afd%2001%20604/M&#xF8;deindkaldelser/2021-08-30-Indkaldelse-til-afdelingsm&#xF8;de-afd.-604.pdf)

###

                                                Reglementer

[Vedligeholdelsesreglement 14-09-2023 afd. 604.pdf](https://www.boligfa.dk/p/Files/Boligdata/Dokumenter/Afd%2001%20604/Reglementer/Vedligeholdelsesreglement-14-09-2023-afd.-604.pdf)
                                            [Råderetskatalog 14-09-2023 afd. 604.pdf](https://www.boligfa.dk/p/Files/Boligdata/Dokumenter/Afd%2001%20604/Reglementer/R&#xE5;deretskatalog-14-09-2023-afd.-604.pdf)
                                            [Husorden 12-09-2024 afd. 604.pdf](https://www.boligfa.dk/p/Files/Boligdata/Dokumenter/Afd%2001%20604/Reglementer/Husorden-12-09-2024-afd.-604.pdf)

###

                                                Mødereferater

[2025-09-11 Referat af afdelingsmøde afd. 604 Kongens Punkt.pdf](https://www.boligfa.dk/p/Files/Boligdata/Dokumenter/Afd%2001%20604/M&#xF8;dereferater/2025-09-11-Referat-af-afdelingsm&#xF8;de-afd.-604-Kongens-Punkt.pdf)
                                            [2024-09-12 Referat af afdelingsmøde afd. 604.pdf](https://www.boligfa.dk/p/Files/Boligdata/Dokumenter/Afd%2001%20604/M&#xF8;dereferater/2024-09-12-Referat-af-afdelingsm&#xF8;de-afd.-604.pdf)
                                            [2023-09-14 Referat af afdelingsmøde afd. 604.pdf](https://www.boligfa.dk/p/Files/Boligdata/Dokumenter/Afd%2001%20604/M&#xF8;dereferater/2023-09-14-Referat-af-afdelingsm&#xF8;de-afd.-604.pdf)
                                            [2022-10-05 Referat af ekstraordinært afdelingsmøde afd. 604.pdf](https://www.boligfa.dk/p/Files/Boligdata/Dokumenter/Afd%2001%20604/M&#xF8;dereferater/2022-10-05-Referat-af-ekstraordin&#xE6;rt-afdelingsm&#xF8;de-afd.-604.pdf)
                                            [2022-09-08 Referat af afdelingsmøde afd. 604.pdf](https://www.boligfa.dk/p/Files/Boligdata/Dokumenter/Afd%2001%20604/M&#xF8;dereferater/2022-09-08-Referat-af-afdelingsm&#xF8;de-afd.-604.pdf)
                                            [2021-08-30 Referat af afdelingsmøde afd. 604 inkl. beretning.pdf](https://www.boligfa.dk/p/Files/Boligdata/Dokumenter/Afd%2001%20604/M&#xF8;dereferater/2021-08-30-Referat-af-afdelingsm&#xF8;de-afd.-604-inkl.-beretning.pdf)

###

                                                Regnskaber

[2025 Regnskab afd. 604.pdf](https://www.boligfa.dk/p/Files/Boligdata/Dokumenter/Afd%2001%20604/Regnskaber/2025-Regnskab-afd.-604.pdf)
                                            [2024 Udkast regnskab afd. 604.pdf](https://www.boligfa.dk/p/Files/Boligdata/Dokumenter/Afd%2001%20604/Regnskaber/2024-Udkast-regnskab-afd.-604.pdf)
                                            [2024 Regnskab afd. 604.pdf](https://www.boligfa.dk/p/Files/Boligdata/Dokumenter/Afd%2001%20604/Regnskaber/2024-Regnskab-afd.-604.pdf)
                                            [2023 Regnskab afd. 604.pdf](https://www.boligfa.dk/p/Files/Boligdata/Dokumenter/Afd%2001%20604/Regnskaber/2023-Regnskab-afd.-604.pdf)
                                            [2022 Regnskab afd. 604.pdf](https://www.boligfa.dk/p/Files/Boligdata/Dokumenter/Afd%2001%20604/Regnskaber/2022-Regnskab-afd.-604.pdf)
                                            [2021 Regnskab afd. 604.pdf](https://www.boligfa.dk/p/Files/Boligdata/Dokumenter/Afd%2001%20604/Regnskaber/2021-Regnskab-afd.-604.pdf)
                                            [2020 Regnskab afd. 604.pdf](https://www.boligfa.dk/p/Files/Boligdata/Dokumenter/Afd%2001%20604/Regnskaber/2020-Regnskab-afd.-604.pdf)
                                            [2019 Regnskab afd. 604.pdf](https://www.boligfa.dk/p/Files/Boligdata/Dokumenter/Afd%2001%20604/Regnskaber/2019-Regnskab-afd.-604.pdf)

## Afdelingsbestyrelse

Johnny Jørgensen

Formand

(11.09.2025 - 10.10.2027)

Hanne Schultz Johnson

Bestyrelsesmedlem

(11.09.2025 - 10.10.2027)

Helle Madsen

Bestyrelsesmedlem

(12.09.2024 - 11.10.2026)

Peter Isaksen

Bestyrelsesmedlem

(12.09.2024 - 11.10.2026)

Ulla Buhl

Bestyrelsesmedlem

(11.09.2025 - 10.10.2027)

Jens Viktor Jensen

1. Suppleant

(11.09.2025 - 10.10.2026)

Yvonne Bjeld

2. Suppleant

(11.09.2025 - 10.10.2026)

## Kontor

### Servicecenter

76221200

servicecenter@boligfa.dk

### Åbningstider

Mandag - torsdag fra kl. 7.00 - 15.00

Fredag fra kl. 7.00 - 13.00

## Ejendomsadresse

### Varmemesterkontor

Adresse:

Købmagergade 65C

7000 Fredericia

### Åbningstider

Personlig henvendelse mandag - fredag kl. 9.00 - 9.30

og mandag til torsdag kl. 12.00 - 12.30

## Inspektør

### Kaj Johansen

76221224

kjo@boligfa.dk

## Organisationsdokumenter

Her finder du referater og dagsordner fra hovedbestyrelsen.

###

                                                Referat af organisationsbestyrelsesmøder

[2026-04-29 Referat af bestyrelsesmøde.pdf](https://www.boligfa.dk/p/Files/Boligdata/Dokumenter/Selskabsdokumenter/Sel.%201/Referat%20af%20organisationsbestyrelsesm&#xF8;der/2026-04-29-Referat-af-bestyrelsesm&#xF8;de.pdf)
                                            [2026-04-09  Referat af ekstraordinært bestyrelsesmøde.pdf](https://www.boligfa.dk/p/Files/Boligdata/Dokumenter/Selskabsdokumenter/Sel.%201/Referat%20af%20organisationsbestyrelsesm&#xF8;der/2026-04-09--Referat-af-ekstraordin&#xE6;rt-bestyrelsesm&#xF8;de.pdf)
                                            [2026-01-28 Referat af bestyrelsesmøde.pdf](https://www.boligfa.dk/p/Files/Boligdata/Dokumenter/Selskabsdokumenter/Sel.%201/Referat%20af%20organisationsbestyrelsesm&#xF8;der/2026-01-28-referat-af-bestyrelsesm&#xF8;de.pdf)
                                            [2025-12-03-Referat-af-bestyrelsesmøde.pdf](https://www.boligfa.dk/p/Files/Boligdata/Dokumenter/Selskabsdokumenter/Sel.%201/Referat%20af%20organisationsbestyrelsesm&#xF8;der/2025-12-03-Referat-af-bestyrelsesm&#xF8;de.pdf)
                                            [2025-10-22 Referat af bestyrelsesmøde.pdf](https://www.boligfa.dk/p/Files/Boligdata/Dokumenter/Selskabsdokumenter/Sel.%201/Referat%20af%20organisationsbestyrelsesm&#xF8;der/2025-10-22-Referat-af-bestyrelsesm&#xF8;de.pdf)
                                            [2025-08-27 Referat af bestyrelsesmøde.pdf](https://www.boligfa.dk/p/Files/Boligdata/Dokumenter/Selskabsdokumenter/Sel.%201/Referat%20af%20organisationsbestyrelsesm&#xF8;der/2025-08-27-Referat-af-bestyrelsesm&#xF8;de.pdf)
                                            [2025-06-11 Referat af bestyrelsesmøde.pdf](https://www.boligfa.dk/p/Files/Boligdata/Dokumenter/Selskabsdokumenter/Sel.%201/Referat%20af%20organisationsbestyrelsesm&#xF8;der/2025-06-11-Referat-af-bestyrelsesm&#xF8;de.pdf)
                                            [2025-04-23 Referat af bestyrelsesmøde.pdf](https://www.boligfa.dk/p/Files/Boligdata/Dokumenter/Selskabsdokumenter/Sel.%201/Referat%20af%20organisationsbestyrelsesm&#xF8;der/2025-04-23-Referat-af-bestyrelsesm&#xF8;de.pdf)
                                            [2025-01-29 Referat af bestyrelsesmøde.pdf](https://www.boligfa.dk/p/Files/Boligdata/Dokumenter/Selskabsdokumenter/Sel.%201/Referat%20af%20organisationsbestyrelsesm&#xF8;der/2025-01-29-Referat-af-bestyrelsesm&#xF8;de.pdf)
                                            [2024-12-04 Referat af bestyrelsesmøde.pdf](https://www.boligfa.dk/p/Files/Boligdata/Dokumenter/Selskabsdokumenter/Sel.%201/Referat%20af%20organisationsbestyrelsesm&#xF8;der/2024-12-04-Referat-af-bestyrelsesm&#xF8;de.pdf)
                                            [2024-10-22 Referat af bestyrelsesmøde.pdf](https://www.boligfa.dk/p/Files/Boligdata/Dokumenter/Selskabsdokumenter/Sel.%201/Referat%20af%20organisationsbestyrelsesm&#xF8;der/2024-10-22-Referat-af-bestyrelsesm&#xF8;de.pdf)
                                            [2024-08-28 Referat af bestyrelsesmøde.pdf](https://www.boligfa.dk/p/Files/Boligdata/Dokumenter/Selskabsdokumenter/Sel.%201/Referat%20af%20organisationsbestyrelsesm&#xF8;der/2024-08-28-Referat-af-bestyrelsesm&#xF8;de.pdf)
                                            [2024-06-19 Referat af bestyrelsesmøde.pdf](https://www.boligfa.dk/p/Files/Boligdata/Dokumenter/Selskabsdokumenter/Sel.%201/Referat%20af%20organisationsbestyrelsesm&#xF8;der/2024-06-19-Referat-af-bestyrelsesm&#xF8;de.pdf)
                                            [2024-04-24 Referat af bestyrelsesmøde.pdf](https://www.boligfa.dk/p/Files/Boligdata/Dokumenter/Selskabsdokumenter/Sel.%201/Referat%20af%20organisationsbestyrelsesm&#xF8;der/2024-04-24-Referat-af-bestyrelsesm&#xF8;de.pdf)
                                            [2024-02-07 Referat af bestyrelsesmøde.pdf](https://www.boligfa.dk/p/Files/Boligdata/Dokumenter/Selskabsdokumenter/Sel.%201/Referat%20af%20organisationsbestyrelsesm&#xF8;der/2024-02-07-Referat-af-bestyrelsesm&#xF8;de.pdf)
                                            [2023-12-06 Referat af bestyrelsesmøde.pdf](https://www.boligfa.dk/p/Files/Boligdata/Dokumenter/Selskabsdokumenter/Sel.%201/Referat%20af%20organisationsbestyrelsesm&#xF8;der/2023-12-06-Referat-af-bestyrelsesm&#xF8;de.pdf)
                                            [2023-10-11 Referat af bestyrelsesmøde.pdf](https://www.boligfa.dk/p/Files/Boligdata/Dokumenter/Selskabsdokumenter/Sel.%201/Referat%20af%20organisationsbestyrelsesm&#xF8;der/2023-10-11-Referat-af-bestyrelsesm&#xF8;de.pdf)
                                            [2023-08-23 Referat af bestyrelsesmøde.pdf](https://www.boligfa.dk/p/Files/Boligdata/Dokumenter/Selskabsdokumenter/Sel.%201/Referat%20af%20organisationsbestyrelsesm&#xF8;der/2023-08-23-Referat-af-bestyrelsesm&#xF8;de.pdf)
                                            [2023-06-14 Referat af bestyrelsesmøde.pdf](https://www.boligfa.dk/p/Files/Boligdata/Dokumenter/Selskabsdokumenter/Sel.%201/Referat%20af%20organisationsbestyrelsesm&#xF8;der/2023-06-14-Referat-af-bestyrelsesm&#xF8;de.pdf)
                                            [2023-04-26 Referat af bestyrelsesmøde.pdf](https://www.boligfa.dk/p/Files/Boligdata/Dokumenter/Selskabsdokumenter/Sel.%201/Referat%20af%20organisationsbestyrelsesm&#xF8;der/2023-04-26-Referat-af-bestyrelsesm&#xF8;de.pdf)
                                            [2023-02-01 Referat af bestyrelsesmøde.pdf](https://www.boligfa.dk/p/Files/Boligdata/Dokumenter/Selskabsdokumenter/Sel.%201/Referat%20af%20organisationsbestyrelsesm&#xF8;der/2023-02-01-Referat-af-bestyrelsesm&#xF8;de.pdf)
                                            [2022-12-07 Referat af bestyrelsesmøde.pdf](https://www.boligfa.dk/p/Files/Boligdata/Dokumenter/Selskabsdokumenter/Sel.%201/Referat%20af%20organisationsbestyrelsesm&#xF8;der/2022-12-07-Referat-af-bestyrelsesm&#xF8;de.pdf)
                                            [2022-10-12 Referat af bestyrelsesmøde.pdf](https://www.boligfa.dk/p/Files/Boligdata/Dokumenter/Selskabsdokumenter/Sel.%201/Referat%20af%20organisationsbestyrelsesm&#xF8;der/2022-10-12-Referat-af-bestyrelsesm&#xF8;de.pdf)
                                            [2022-08-31 Referat af bestyrelsesmøde.pdf](https://www.boligfa.dk/p/Files/Boligdata/Dokumenter/Selskabsdokumenter/Sel.%201/Referat%20af%20organisationsbestyrelsesm&#xF8;der/2022-08-31-Referat-af-bestyrelsesm&#xF8;de.pdf)
                                            [2022-06-22 Referat af bestyrelsesmøde.pdf](https://www.boligfa.dk/p/Files/Boligdata/Dokumenter/Selskabsdokumenter/Sel.%201/Referat%20af%20organisationsbestyrelsesm&#xF8;der/2022-06-22-Referat-af-bestyrelsesm&#xF8;de.pdf)
                                            [2022-04-26 Referat af bestyrelsesmøde.pdf](https://www.boligfa.dk/p/Files/Boligdata/Dokumenter/Selskabsdokumenter/Sel.%201/Referat%20af%20organisationsbestyrelsesm&#xF8;der/2022-04-26-Referat-af-bestyrelsesm&#xF8;de.pdf)
                                            [2022-02-02 Referat af bestyrelsesmøde.pdf](https://www.boligfa.dk/p/Files/Boligdata/Dokumenter/Selskabsdokumenter/Sel.%201/Referat%20af%20organisationsbestyrelsesm&#xF8;der/2022-02-02-Referat-af-bestyrelsesm&#xF8;de.pdf)
                                            [2021-12-08 Referat af bestyrelsesmøde.pdf](https://www.boligfa.dk/p/Files/Boligdata/Dokumenter/Selskabsdokumenter/Sel.%201/Referat%20af%20organisationsbestyrelsesm&#xF8;der/2021-12-08-Referat-af-bestyrelsesm&#xF8;de.pdf)
                                            [2021-10-13 Referat af bestyrelsesmøde.pdf](https://www.boligfa.dk/p/Files/Boligdata/Dokumenter/Selskabsdokumenter/Sel.%201/Referat%20af%20organisationsbestyrelsesm&#xF8;der/2021-10-13-Referat-af-bestyrelsesm&#xF8;de.pdf)
                                            [2021-09-01 Referat af bestyrelsesmøde.pdf](https://www.boligfa.dk/p/Files/Boligdata/Dokumenter/Selskabsdokumenter/Sel.%201/Referat%20af%20organisationsbestyrelsesm&#xF8;der/2021-09-01-Referat-af-bestyrelsesm&#xF8;de.pdf)
                                            [2021-06-24 Referat af bestyrelsesmøde.pdf](https://www.boligfa.dk/p/Files/Boligdata/Dokumenter/Selskabsdokumenter/Sel.%201/Referat%20af%20organisationsbestyrelsesm&#xF8;der/2021-06-24-Referat-af-bestyrelsesm&#xF8;de.pdf)
                                            [2021-04-28 Referat af bestyrelsesmøde.pdf](https://www.boligfa.dk/p/Files/Boligdata/Dokumenter/Selskabsdokumenter/Sel.%201/Referat%20af%20organisationsbestyrelsesm&#xF8;der/2021-04-28-Referat-af-bestyrelsesm&#xF8;de.pdf)
                                            [2021-02-24 Referat af bestyrelsesmøde.pdf](https://www.boligfa.dk/p/Files/Boligdata/Dokumenter/Selskabsdokumenter/Sel.%201/Referat%20af%20organisationsbestyrelsesm&#xF8;der/2021-02-24-Referat-af-bestyrelsesm&#xF8;de.pdf)

###

                                                Referat af repræsentantskabsmøder

[2025-05-28 Referat af repræsentantskabsmøde.pdf](https://www.boligfa.dk/p/Files/Boligdata/Dokumenter/Selskabsdokumenter/Sel.%201/Referat%20af%20repr&#xE6;sentantskabsm&#xF8;der/2025-05-28-Referat-af-repr&#xE6;sentantskabsm&#xF8;de.pdf)
                                            [2024-11-27 Referat af ekstraordinært repræsentantskabsmøde.pdf](https://www.boligfa.dk/p/Files/Boligdata/Dokumenter/Selskabsdokumenter/Sel.%201/Referat%20af%20repr&#xE6;sentantskabsm&#xF8;der/2024-11-27-Referat-af-ekstraordin&#xE6;rt-repr&#xE6;sentantskabsm&#xF8;de.pdf)
                                            [2024-05-22 Referat af repræsentantskabsmøde.pdf](https://www.boligfa.dk/p/Files/Boligdata/Dokumenter/Selskabsdokumenter/Sel.%201/Referat%20af%20repr&#xE6;sentantskabsm&#xF8;der/2024-05-22-Referat-af-repr&#xE6;sentantskabsm&#xF8;de.pdf)
                                            [2023-12-12 Referat af ekstraordinært repræsentantskabsmøde.pdf](https://www.boligfa.dk/p/Files/Boligdata/Dokumenter/Selskabsdokumenter/Sel.%201/Referat%20af%20repr&#xE6;sentantskabsm&#xF8;der/2023-12-12-Referat-af-ekstraordin&#xE6;rt-repr&#xE6;sentantskabsm&#xF8;de.pdf)
                                            [2023-06-13 Referat af ekstraordinært repræsentantskabsmøde.pdf](https://www.boligfa.dk/p/Files/Boligdata/Dokumenter/Selskabsdokumenter/Sel.%201/Referat%20af%20repr&#xE6;sentantskabsm&#xF8;der/2023-06-13-Referat-af-ekstraordin&#xE6;rt-repr&#xE6;sentantskabsm&#xF8;de.pdf)
                                            [2023-05-24 Referat af repræsentantskabsmøde.pdf](https://www.boligfa.dk/p/Files/Boligdata/Dokumenter/Selskabsdokumenter/Sel.%201/Referat%20af%20repr&#xE6;sentantskabsm&#xF8;der/2023-05-24-Referat-af-repr&#xE6;sentantskabsm&#xF8;de.pdf)
                                            [2022-06-09 Referat af ekstraordinært repræsentantskabsmøde.pdf](https://www.boligfa.dk/p/Files/Boligdata/Dokumenter/Selskabsdokumenter/Sel.%201/Referat%20af%20repr&#xE6;sentantskabsm&#xF8;der/2022-06-09-Referat-af-ekstraordin&#xE6;rt-repr&#xE6;sentantskabsm&#xF8;de.pdf)
                                            [2022-05-18 Referat af repræsentantskabsmøde.pdf](https://www.boligfa.dk/p/Files/Boligdata/Dokumenter/Selskabsdokumenter/Sel.%201/Referat%20af%20repr&#xE6;sentantskabsm&#xF8;der/2022-05-18-Referat-af-repr&#xE6;sentantskabsm&#xF8;de.pdf)
                                            [2022-05-18 Forslag til vedtægsændringer.pdf](https://www.boligfa.dk/p/Files/Boligdata/Dokumenter/Selskabsdokumenter/Sel.%201/Referat%20af%20repr&#xE6;sentantskabsm&#xF8;der/2022-05-18-Forslag-til-vedt&#xE6;gs&#xE6;ndringer.pdf)
                                            [2021-10-27 Referat af ekstraordinært repræsentantskabsmøde.pdf](https://www.boligfa.dk/p/Files/Boligdata/Dokumenter/Selskabsdokumenter/Sel.%201/Referat%20af%20repr&#xE6;sentantskabsm&#xF8;der/2021-10-27-Referat-af-ekstraordin&#xE6;rt-repr&#xE6;sentantskabsm&#xF8;de.pdf)
                                            [2021-06-21 Referat af repræsentantskabsmøde.pdf](https://www.boligfa.dk/p/Files/Boligdata/Dokumenter/Selskabsdokumenter/Sel.%201/Referat%20af%20repr&#xE6;sentantskabsm&#xF8;der/2021-06-21-Referat-af-repr&#xE6;sentantskabsm&#xF8;de.pdf)

###

                                                Mødeindkaldelser organisationsbestyrelse

[2026-04-29 Dagsorden til bestyrelsesmøde.pdf](https://www.boligfa.dk/p/Files/Boligdata/Dokumenter/Selskabsdokumenter/Sel.%201/M&#xF8;deindkaldelser%20organisationsbestyrelse/2026-04-29-Dagsorden-til-bestyrelsesm&#xF8;de.pdf)
                                            [2026-01-28 Dagsorden til bestyrelsesmøde.pdf](https://www.boligfa.dk/p/Files/Boligdata/Dokumenter/Selskabsdokumenter/Sel.%201/M&#xF8;deindkaldelser%20organisationsbestyrelse/2026-01-28-Dagsorden-til-bestyrelsesm&#xF8;de.pdf)
                                            [2025-12-03-Dagsorden-til-bestyrelsesmøde.pdf](https://www.boligfa.dk/p/Files/Boligdata/Dokumenter/Selskabsdokumenter/Sel.%201/M&#xF8;deindkaldelser%20organisationsbestyrelse/2025-12-03-Dagsorden-til-bestyrelsesm&#xF8;de.pdf)
                                            [2025-10-22 Dagsorden til bestyrelsesmøde.pdf](https://www.boligfa.dk/p/Files/Boligdata/Dokumenter/Selskabsdokumenter/Sel.%201/M&#xF8;deindkaldelser%20organisationsbestyrelse/2025-10-22-Dagsorden-til-bestyrelsesm&#xF8;de.pdf)
                                            [2025-08-27 Dagsorden til bestyrelsesmøde.pdf](https://www.boligfa.dk/p/Files/Boligdata/Dokumenter/Selskabsdokumenter/Sel.%201/M&#xF8;deindkaldelser%20organisationsbestyrelse/2025-08-27-Dagsorden-til-bestyrelsesm&#xF8;de.pdf)
                                            [2025-06-11-Dagsorden-til-bestyrelsesmøde.pdf](https://www.boligfa.dk/p/Files/Boligdata/Dokumenter/Selskabsdokumenter/Sel.%201/M&#xF8;deindkaldelser%20organisationsbestyrelse/2025-06-11-Dagsorden-til-bestyrelsesm&#xF8;de.pdf)
                                            [2025-04-23 Dagsorden til bestyrelsesmøde.pdf](https://www.boligfa.dk/p/Files/Boligdata/Dokumenter/Selskabsdokumenter/Sel.%201/M&#xF8;deindkaldelser%20organisationsbestyrelse/2025-04-23-Dagsorden-til-bestyrelsesm&#xF8;de.pdf)
                                            [2025-01-29 Dagsorden til bestyrelsesmøde.pdf](https://www.boligfa.dk/p/Files/Boligdata/Dokumenter/Selskabsdokumenter/Sel.%201/M&#xF8;deindkaldelser%20organisationsbestyrelse/2025-01-29-Dagsorden-til-bestyrelsesm&#xF8;de.pdf)
                                            [2024-12-04 Dagsorden til bestyrelsesmøde.pdf](https://www.boligfa.dk/p/Files/Boligdata/Dokumenter/Selskabsdokumenter/Sel.%201/M&#xF8;deindkaldelser%20organisationsbestyrelse/2024-12-04-Dagsorden-til-bestyrelsesm&#xF8;de.pdf)
                                            [2024-10-22 Dagsorden til bestyrelsesmøde.pdf](https://www.boligfa.dk/p/Files/Boligdata/Dokumenter/Selskabsdokumenter/Sel.%201/M&#xF8;deindkaldelser%20organisationsbestyrelse/2024-10-22-Dagsorden-til-bestyrelsesm&#xF8;de.pdf)
                                            [2024-06-19 Dagsorden til bestyrelsesmøde.pdf](https://www.boligfa.dk/p/Files/Boligdata/Dokumenter/Selskabsdokumenter/Sel.%201/M&#xF8;deindkaldelser%20organisationsbestyrelse/2024-06-19-Dagsorden-til-bestyrelsesm&#xF8;de.pdf)
                                            [2024-04-24 Dagsorden til bestyrelsesmøde.pdf](https://www.boligfa.dk/p/Files/Boligdata/Dokumenter/Selskabsdokumenter/Sel.%201/M&#xF8;deindkaldelser%20organisationsbestyrelse/2024-04-24-Dagsorden-til-bestyrelsesm&#xF8;de.pdf)
                                            [2024-02-07 Dagsorden til bestyrelsesmøde.pdf](https://www.boligfa.dk/p/Files/Boligdata/Dokumenter/Selskabsdokumenter/Sel.%201/M&#xF8;deindkaldelser%20organisationsbestyrelse/2024-02-07-Dagsorden-til-bestyrelsesm&#xF8;de.pdf)
                                            [2023-10-11 Dagsorden til bestyrelsesmøde.pdf](https://www.boligfa.dk/p/Files/Boligdata/Dokumenter/Selskabsdokumenter/Sel.%201/M&#xF8;deindkaldelser%20organisationsbestyrelse/2023-10-11-Dagsorden-til-bestyrelsesm&#xF8;de.pdf)
                                            [2023-08-23 Dagsorden til bestyrelsesmøde.pdf](https://www.boligfa.dk/p/Files/Boligdata/Dokumenter/Selskabsdokumenter/Sel.%201/M&#xF8;deindkaldelser%20organisationsbestyrelse/2023-08-23-Dagsorden-til-bestyrelsesm&#xF8;de.pdf)
                                            [2023-06-14 Dagsorden til bestyrelsesmøde.pdf](https://www.boligfa.dk/p/Files/Boligdata/Dokumenter/Selskabsdokumenter/Sel.%201/M&#xF8;deindkaldelser%20organisationsbestyrelse/2023-06-14-Dagsorden-til-bestyrelsesm&#xF8;de.pdf)
                                            [2023-04-26 Dagsorden til bestyrelsesmøde.pdf](https://www.boligfa.dk/p/Files/Boligdata/Dokumenter/Selskabsdokumenter/Sel.%201/M&#xF8;deindkaldelser%20organisationsbestyrelse/2023-04-26-Dagsorden-til-bestyrelsesm&#xF8;de.pdf)
                                            [2023-02-01 Dagsorden til bestyrelsesmøde.pdf](https://www.boligfa.dk/p/Files/Boligdata/Dokumenter/Selskabsdokumenter/Sel.%201/M&#xF8;deindkaldelser%20organisationsbestyrelse/2023-02-01-Dagsorden-til-bestyrelsesm&#xF8;de.pdf)
                                            [2022-12-07 Dagsorden til bestyrelsesmøde.pdf](https://www.boligfa.dk/p/Files/Boligdata/Dokumenter/Selskabsdokumenter/Sel.%201/M&#xF8;deindkaldelser%20organisationsbestyrelse/2022-12-07-Dagsorden-til-bestyrelsesm&#xF8;de.pdf)
                                            [2022-10-12 Dagsorden til bestyrelsesmøde.pdf](https://www.boligfa.dk/p/Files/Boligdata/Dokumenter/Selskabsdokumenter/Sel.%201/M&#xF8;deindkaldelser%20organisationsbestyrelse/2022-10-12-Dagsorden-til-bestyrelsesm&#xF8;de.pdf)
                                            [2022-08-31 Dagsorden til bestyrelsesmøde.pdf](https://www.boligfa.dk/p/Files/Boligdata/Dokumenter/Selskabsdokumenter/Sel.%201/M&#xF8;deindkaldelser%20organisationsbestyrelse/2022-08-31-Dagsorden-til-bestyrelsesm&#xF8;de.pdf)
                                            [2022-06-22 Dagsorden til bestyrelsesmøde.pdf](https://www.boligfa.dk/p/Files/Boligdata/Dokumenter/Selskabsdokumenter/Sel.%201/M&#xF8;deindkaldelser%20organisationsbestyrelse/2022-06-22-Dagsorden-til-bestyrelsesm&#xF8;de.pdf)
                                            [2022-04-26 Dagsorden til bestyrelsesmøde.pdf](https://www.boligfa.dk/p/Files/Boligdata/Dokumenter/Selskabsdokumenter/Sel.%201/M&#xF8;deindkaldelser%20organisationsbestyrelse/2022-04-26-Dagsorden-til-bestyrelsesm&#xF8;de.pdf)
                                            [2022-02-02 Dagsorden til bestyrelsesmøde.pdf](https://www.boligfa.dk/p/Files/Boligdata/Dokumenter/Selskabsdokumenter/Sel.%201/M&#xF8;deindkaldelser%20organisationsbestyrelse/2022-02-02-Dagsorden-til-bestyrelsesm&#xF8;de.pdf)
                                            [2021-12-08 Dagsorden til bestyrelsesmøde.pdf](https://www.boligfa.dk/p/Files/Boligdata/Dokumenter/Selskabsdokumenter/Sel.%201/M&#xF8;deindkaldelser%20organisationsbestyrelse/2021-12-08-Dagsorden-til-bestyrelsesm&#xF8;de.pdf)
                                            [2021-10-13 Dagsorden til bestyrelsesmøde.pdf](https://www.boligfa.dk/p/Files/Boligdata/Dokumenter/Selskabsdokumenter/Sel.%201/M&#xF8;deindkaldelser%20organisationsbestyrelse/2021-10-13-Dagsorden-til-bestyrelsesm&#xF8;de.pdf)
                                            [2021-09-01 Dagsorden til bestyrelsesmøde.pdf](https://www.boligfa.dk/p/Files/Boligdata/Dokumenter/Selskabsdokumenter/Sel.%201/M&#xF8;deindkaldelser%20organisationsbestyrelse/2021-09-01-Dagsorden-til-bestyrelsesm&#xF8;de.pdf)
                                            [2021-02-24 Dagsorden til bestyrelsesmøde.pdf](https://www.boligfa.dk/p/Files/Boligdata/Dokumenter/Selskabsdokumenter/Sel.%201/M&#xF8;deindkaldelser%20organisationsbestyrelse/2021-02-24-Dagsorden-til-bestyrelsesm&#xF8;de.pdf)

###

                                                Mødeindkaldelser repræsentantskabsmøder

[2026-05-27 Indkaldelse til repræsentantskabsmøde.pdf](https://www.boligfa.dk/p/Files/Boligdata/Dokumenter/Selskabsdokumenter/Sel.%201/M&#xF8;deindkaldelser%20repr&#xE6;sentantskabsm&#xF8;der/2026-05-27-Indkaldelse-til-repr&#xE6;sentantskabsm&#xF8;de.pdf)
                                            [2025-05-28-Indkaldelse-til-repræsentantskabsmøde.pdf](https://www.boligfa.dk/p/Files/Boligdata/Dokumenter/Selskabsdokumenter/Sel.%201/M&#xF8;deindkaldelser%20repr&#xE6;sentantskabsm&#xF8;der/2025-05-28-Indkaldelse-til-repr&#xE6;sentantskabsm&#xF8;de.pdf)
                                            [2025-05-28 Indkaldelse (ny adresse) til repræsentantskabsmøde.pdf](https://www.boligfa.dk/p/Files/Boligdata/Dokumenter/Selskabsdokumenter/Sel.%201/M&#xF8;deindkaldelser%20repr&#xE6;sentantskabsm&#xF8;der/2025-05-28-Indkaldelse--ny-adresse--til-repr&#xE6;sentantskabsm&#xF8;de.pdf)
                                            [2025-05-28 Dagsorden til repræsentantskabsmødet.pdf](https://www.boligfa.dk/p/Files/Boligdata/Dokumenter/Selskabsdokumenter/Sel.%201/M&#xF8;deindkaldelser%20repr&#xE6;sentantskabsm&#xF8;der/2025-05-28-Dagsorden-til-repr&#xE6;sentantskabsm&#xF8;det.pdf)
                                            [2024-11-27 Indkaldelse til ekstraordinært repræsentantskabsmøde.pdf](https://www.boligfa.dk/p/Files/Boligdata/Dokumenter/Selskabsdokumenter/Sel.%201/M&#xF8;deindkaldelser%20repr&#xE6;sentantskabsm&#xF8;der/2024-11-27-Indkaldelse-til-ekstraordin&#xE6;rt-repr&#xE6;sentantskabsm&#xF8;de.pdf)
                                            [2024-11-27 Dagsorden til ekstraordinært repræsentantskabsmøde.pdf](https://www.boligfa.dk/p/Files/Boligdata/Dokumenter/Selskabsdokumenter/Sel.%201/M&#xF8;deindkaldelser%20repr&#xE6;sentantskabsm&#xF8;der/2024-11-27-Dagsorden-til-ekstraordin&#xE6;rt-repr&#xE6;sentantskabsm&#xF8;de.pdf)
                                            [2024-05-22 Indkaldelse til repræsentantskabsmøde.pdf](https://www.boligfa.dk/p/Files/Boligdata/Dokumenter/Selskabsdokumenter/Sel.%201/M&#xF8;deindkaldelser%20repr&#xE6;sentantskabsm&#xF8;der/2024-05-22-Indkaldelse-til-repr&#xE6;sentantskabsm&#xF8;de.pdf)
                                            [2023-06-13 Indkaldelse til ekstraordinært repræsentantskabsmøde.pdf](https://www.boligfa.dk/p/Files/Boligdata/Dokumenter/Selskabsdokumenter/Sel.%201/M&#xF8;deindkaldelser%20repr&#xE6;sentantskabsm&#xF8;der/2023-06-13-Indkaldelse-til-ekstraordin&#xE6;rt-repr&#xE6;sentantskabsm&#xF8;de.pdf)
                                            [2023-05-24 Indkaldelse til repræsentantskabsmøde.pdf](https://www.boligfa.dk/p/Files/Boligdata/Dokumenter/Selskabsdokumenter/Sel.%201/M&#xF8;deindkaldelser%20repr&#xE6;sentantskabsm&#xF8;der/2023-05-24-Indkaldelse-til-repr&#xE6;sentantskabsm&#xF8;de.pdf)
                                            [2022-06-09 Ny dagsorden til ekstraordinært repræsentantskabsmøde.pdf](https://www.boligfa.dk/p/Files/Boligdata/Dokumenter/Selskabsdokumenter/Sel.%201/M&#xF8;deindkaldelser%20repr&#xE6;sentantskabsm&#xF8;der/2022-06-09-Ny-dagsorden-til-ekstraordin&#xE6;rt-repr&#xE6;sentantskabsm&#xF8;de.pdf)
                                            [2022-06-09 Indkaldelse til ekstraordinært repræsentantskabsmøde.pdf](https://www.boligfa.dk/p/Files/Boligdata/Dokumenter/Selskabsdokumenter/Sel.%201/M&#xF8;deindkaldelser%20repr&#xE6;sentantskabsm&#xF8;der/2022-06-09-Indkaldelse-til-ekstraordin&#xE6;rt-repr&#xE6;sentantskabsm&#xF8;de.pdf)
                                            [2022-05-18 Indkaldelse til repræsentantskabsmøde.pdf.pdf](https://www.boligfa.dk/p/Files/Boligdata/Dokumenter/Selskabsdokumenter/Sel.%201/M&#xF8;deindkaldelser%20repr&#xE6;sentantskabsm&#xF8;der/2022-05-18-Indkaldelse-til-repr&#xE6;sentantskabsm&#xF8;de.pdf.pdf)
                                            [2022-05-18 Indkaldelse til repræsentantskabsmøde.pdf](https://www.boligfa.dk/p/Files/Boligdata/Dokumenter/Selskabsdokumenter/Sel.%201/M&#xF8;deindkaldelser%20repr&#xE6;sentantskabsm&#xF8;der/2022-05-18-Indkaldelse-til-repr&#xE6;sentantskabsm&#xF8;de.pdf)
                                            [2021-10-27 Indkaldelse til ekstraordinært repræsentantskabsmøde.pdf](https://www.boligfa.dk/p/Files/Boligdata/Dokumenter/Selskabsdokumenter/Sel.%201/M&#xF8;deindkaldelser%20repr&#xE6;sentantskabsm&#xF8;der/2021-10-27-Indkaldelse-til-ekstraordin&#xE6;rt-repr&#xE6;sentantskabsm&#xF8;de.pdf)
                                            [2021-06-21 Indkaldelse til repræsentantskabsmøde.pdf](https://www.boligfa.dk/p/Files/Boligdata/Dokumenter/Selskabsdokumenter/Sel.%201/M&#xF8;deindkaldelser%20repr&#xE6;sentantskabsm&#xF8;der/2021-06-21-Indkaldelse-til-repr&#xE6;sentantskabsm&#xF8;de.pdf)

###

                                                Regnskaber

[2025 Regnskab Boligkontoret Fredericia.pdf](https://www.boligfa.dk/p/Files/Boligdata/Dokumenter/Selskabsdokumenter/Sel.%201/Regnskaber/2025-Regnskab-Boligkontoret-Fredericia.pdf)
                                            [2024 Regnskab Boligkontoret Fredericia.pdf](https://www.boligfa.dk/p/Files/Boligdata/Dokumenter/Selskabsdokumenter/Sel.%201/Regnskaber/2024-Regnskab-Boligkontoret-Fredericia.pdf)
                                            [2023 Regnskab Boligkontoret Fredericia.pdf](https://www.boligfa.dk/p/Files/Boligdata/Dokumenter/Selskabsdokumenter/Sel.%201/Regnskaber/2023-Regnskab-Boligkontoret-Fredericia.pdf)
                                            [2022 Regnskab Boligkontoret Fredericia.pdf](https://www.boligfa.dk/p/Files/Boligdata/Dokumenter/Selskabsdokumenter/Sel.%201/Regnskaber/2022-Regnskab-Boligkontoret-Fredericia.pdf)
                                            [2021 Regnskab Boligkontoret Fredercia.pdf](https://www.boligfa.dk/p/Files/Boligdata/Dokumenter/Selskabsdokumenter/Sel.%201/Regnskaber/2021-Regnskab-Boligkontoret-Fredercia.pdf)
                                            [2020 Regnskab Boligkontoret Fredericia.pdf](https://www.boligfa.dk/p/Files/Boligdata/Dokumenter/Selskabsdokumenter/Sel.%201/Regnskaber/2020-Regnskab-Boligkontoret-Fredericia.pdf)
                                            [2019 Regnskab Boligkontoret Fredericia.pdf](https://www.boligfa.dk/p/Files/Boligdata/Dokumenter/Selskabsdokumenter/Sel.%201/Regnskaber/2019-Regnskab-Boligkontoret-Fredericia.pdf)

###

                                                Vedtægter

[Vedtægter for Boligkontoret Fredericia.pdf](https://www.boligfa.dk/p/Files/Boligdata/Dokumenter/Selskabsdokumenter/Sel.%201/Vedt&#xE6;gter/Vedt&#xE6;gter-for-Boligkontoret-Fredericia.pdf)
