---
title: "Korskærparken"
description: "1-214"
date: "2026-03-04"
created: "2025-06-23"
---

-
-
-
-
-
-
-
-
-
-
-

https://maps.google.dk/?q=55.57294,9.7164763

# Korskærparken

Afdeling 214

## Velkommen til Korskærparken

Ullerupdalvej 1 - 11, 71 - 93, 129 - 149, 201 - 231. Korskærvej 2 - 18, 94 - 114, 154 - 158. Opførelsesår 1970/1971.

Der kan søges indskudslån.

Der er lavet fleksible udlejningsregler i afdelingen. Se mere på forsiden "Få en bolig hurtigere"

## Fakta for afdelingen

Vaskeri

Ja

Elevator

Ja

Korskærvej 8 - 12, 104 - 108 og Ullerupdalvej 7 - 11, 89 - 93 er ombygget, så der er elevator.

Hårde hvidevarer

Læs mere

Se i afdelingens vedligeholdelsesreglement, hvilke hårde hvidevarer der er i boligerne. Det fremgår under punktet "Boligernes standard ved indflytning "

TV

Læs mere

Beboere i denne afdeling får særlige priser på deres fiberbredbånd hos EWII. Læs mere på https://www.ewii.dk/privat/internet/boligforening/ eller kontakt EWII kundeservice på 7055 5555. Oplys at du er lejer hos Boligkontoret Fredericia. (Der kan være enkelte adresser der ikke kan leveres til / samt leveringstid)

Energimærkning

Læs mere

C

Have

Ja

Stuelejlighederne har have.

Altan

Ja

Der er stor inddækket altan til lejlighederne på 1. og 2. sal.

Husdyr

Ja

KUN for beboere Ullerupdalvej 139 - 149 og 201 - 231 er det tilladt at have 1 indekat.
Læs altid afdelingens gældende regler for husdyr, i afdelingens husorden.

Forbrug

Læs mere

El, varme og vand afregnes direkte til forsyningsselskab. A/C vandafledning betales til Boligkontoret Fredericia.

Bi-lejemål

Ja

Der er et kælderrum til lejligheden. Der er mulighed for at leje et ekstra kælderrum eller carport.  Opskrivning på ventelisten kontakt Boligkontoret Fredericia.

Ladestander

Ja

Afdelingen har ladestandere til el-biler

Fortrinsret

Ja

Er du i job, studerende eller fyldt 64 år, kan du få fortrin i din boligsøgning. Læs mere på forsiden "Få en bolig hurtigere"

                        Se flere

## Boligtyper i afdelingen

Almindelig bolig

1 værelses

boliger

Almindelig bolig

2 værelses

boliger

Almindelig bolig

3 værelses

boliger

Almindelig bolig

4 værelses

boliger

Almindelig bolig

5 værelses

boliger

Boligtype

Værelser

Størrelse

Husleje

Indskud/dp

Plantegning

Almindelig bolig

1

35 m²

2708 kr.

3500 kr.

![](https://www.boligfa.dk/i/MOLIRIMEDIA/86022210-7f41-46a5-cd97-08dcfd846118?width=800)

Almindelig bolig

1

35 m²

2708 kr.

5000 kr.

![](https://www.boligfa.dk/i/MOLIRIMEDIA/5fe8e869-fe7e-40b9-d662-08dcfd846118?width=800)

Almindelig bolig

1

35 m²

2708 kr.

3200 kr.

![](https://www.boligfa.dk/i/MOLIRIMEDIA/c4735867-6710-487f-cbd3-08dcfd846118?width=800)

Almindelig bolig

2

51 m²

3749 kr.

5100 kr.

![](https://www.boligfa.dk/i/MOLIRIMEDIA/bcbf8c48-ea87-49ff-cc69-08dcfd846118?width=800)

Almindelig bolig

2

30 m²

2383 kr.

3200 kr.

![](https://www.boligfa.dk/i/MOLIRIMEDIA/c2a5da68-b794-45e6-cdde-08dcfd846118?width=800)

Almindelig bolig

2

70.6 m²

5846 kr.

9000 kr.

![](https://www.boligfa.dk/i/MOLIRIMEDIA/f4303a6b-723b-4a6f-cfc8-08dcfd846118?width=800)

Almindelig bolig

2

51 m²

3749 kr.

5000 kr.

![](https://www.boligfa.dk/i/MOLIRIMEDIA/b9715cfd-bc03-4a5f-d125-08dcfd846118?width=800)

Almindelig bolig

2

70.6 m²

5846 kr.

9000 kr.

![](https://www.boligfa.dk/i/MOLIRIMEDIA/6bbb4429-a361-4a2a-d426-08dcfd846118?width=800)

Almindelig bolig

2

51 m²

3749 kr.

6200 kr.

![](https://www.boligfa.dk/i/MOLIRIMEDIA/af8c421a-7679-452c-d43f-08dcfd846118?width=800)

Almindelig bolig

2

70.6 m²

5846 kr.

9000 kr.

![](https://www.boligfa.dk/i/MOLIRIMEDIA/f103da42-248f-4c1e-d4d3-08dcfd846118?width=800)

Almindelig bolig

2

51 m²

3749 kr.

6200 kr.

![](https://www.boligfa.dk/i/MOLIRIMEDIA/70c2b992-776b-4858-d6c2-08dcfd846118?width=800)

Almindelig bolig

3

91 m²

6250 kr.

9100 kr.

![](https://www.boligfa.dk/i/MOLIRIMEDIA/755ed8ff-9e25-4c75-cdf9-08dcfd846118?width=800)

Almindelig bolig

3

108.9 m²

8044 kr.

12000 kr.

![](https://www.boligfa.dk/i/MOLIRIMEDIA/e54a3bac-2d3b-430b-cda4-08dcfd846118?width=800)

Almindelig bolig

3

99.4 m²

7498 kr.

11000 kr.

![](https://www.boligfa.dk/i/MOLIRIMEDIA/1ba64817-ae01-40b4-cfad-08dcfd846118?width=800)

Almindelig bolig

3

91 m²

6250 kr.

9100 kr.

![](https://www.boligfa.dk/i/MOLIRIMEDIA/95a2bee9-b58f-4a57-d0ea-08dcfd846118?width=800)

Almindelig bolig

3

108.9 m²

8044 kr.

12000 kr.

![](https://www.boligfa.dk/i/MOLIRIMEDIA/b763a827-63bd-49b6-d2fb-08dcfd846118?width=800)

Almindelig bolig

3

99.4 m²

7498 kr.

11000 kr.

![](https://www.boligfa.dk/i/MOLIRIMEDIA/07be5f42-69a7-4a80-d4f4-08dcfd846118?width=800)

Almindelig bolig

3

91 m²

6250 kr.

9200 kr.

![](https://www.boligfa.dk/i/MOLIRIMEDIA/c3e9806a-f41a-443b-d625-08dcfd846118?width=800)

Almindelig bolig

3

91 m²

6250 kr.

9200 kr.

![](https://www.boligfa.dk/i/MOLIRIMEDIA/469c06ae-c474-4ef1-d2b1-08dcfd846118?width=800)

Almindelig bolig

3

99.4 m²

7498 kr.

11000 kr.

![](https://www.boligfa.dk/i/MOLIRIMEDIA/ad99759f-17a2-4e48-d609-08dcfd846118?width=800)

Almindelig bolig

3

108.9 m²

8044 kr.

12000 kr.

![](https://www.boligfa.dk/i/MOLIRIMEDIA/f2eac003-91c9-462f-d264-08dcfd846118?width=800)

Almindelig bolig

4

107 m²

7275 kr.

10900 kr.

![](https://www.boligfa.dk/i/MOLIRIMEDIA/9172ff7b-d849-499a-cdbb-08dcfd846118?width=800)

Almindelig bolig

4

107 m²

7275 kr.

11000 kr.

![](https://www.boligfa.dk/i/MOLIRIMEDIA/2f9fe10c-f430-476f-cddc-08dcfd846118?width=800)

Almindelig bolig

4

108.9 m²

8044 kr.

12000 kr.

![](https://www.boligfa.dk/i/MOLIRIMEDIA/15ce7858-32c5-4fe0-d899-08dcfd846118?width=800)

Almindelig bolig

4

107 m²

7275 kr.

13000 kr.

![](https://www.boligfa.dk/i/MOLIRIMEDIA/16d35d9b-eaad-4eb7-d240-08dcfd846118?width=800)

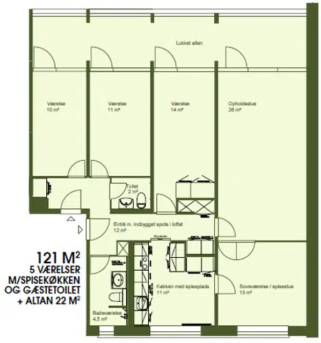
Almindelig bolig

5

121 m²

8158 kr.

12300 kr.

![](https://www.boligfa.dk/i/MOLIRIMEDIA/68e172df-4a2d-40a0-d0e8-08dcfd846118?width=800)

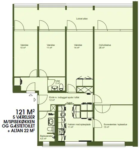
Almindelig bolig

5

121 m²

8158 kr.

12200 kr.

![](https://www.boligfa.dk/i/MOLIRIMEDIA/086b99b2-95bb-46cf-ce61-08dcfd846118?width=800)

## Afdelingsdokumenter

Her finder du nyttig information om din afdeling, såsom husorden, vedligeholdelse af dit lejemål, eller referater fra hovedbestyrelsen.

###

                                                Brugervejledninger

[Brugervejledning Ullerupdalvej 7 - 11, 71 - 93, 129 - 137.pdf](https://www.boligfa.dk/p/Files/Boligdata/Dokumenter/Afd%2001%20214/Brugervejledninger/Brugervejledning-Ullerupdalvej-7---11--71---93--129---137.pdf)
                                            [Brugervejledning Ullerupdalvej 139 - 149, 201 - 231.pdf](https://www.boligfa.dk/p/Files/Boligdata/Dokumenter/Afd%2001%20214/Brugervejledninger/Brugervejledning-Ullerupdalvej-139---149--201---231.pdf)
                                            [Brugervejledning Korskærvej 2 - 18, 94 - 114, 154 - 158.pdf](https://www.boligfa.dk/p/Files/Boligdata/Dokumenter/Afd%2001%20214/Brugervejledninger/Brugervejledning-Korsk&#xE6;rvej-2---18--94---114--154---158.pdf)

###

                                                Mødeindkaldelser

[2025-09-04 Indkaldelse til afdelingsmøde i afd. 214 Korskærparken.pdf](https://www.boligfa.dk/p/Files/Boligdata/Dokumenter/Afd%2001%20214/M&#xF8;deindkaldelser/2025-09-04-Indkaldelse-til-afdelingsm&#xF8;de-i-afd.-214-Korsk&#xE6;rparken.pdf)
                                            [2024-09-03 Indkaldelse til afdelingsmøde afd. 214.pdf](https://www.boligfa.dk/p/Files/Boligdata/Dokumenter/Afd%2001%20214/M&#xF8;deindkaldelser/2024-09-03-Indkaldelse-til-afdelingsm&#xF8;de-afd.-214.pdf)
                                            [2024-06-11 Indkaldelse til ekstraordinært afdelingsmøde afd. 214.pdf](https://www.boligfa.dk/p/Files/Boligdata/Dokumenter/Afd%2001%20214/M&#xF8;deindkaldelser/2024-06-11-Indkaldelse-til-ekstraordin&#xE6;rt-afdelingsm&#xF8;de-afd.-214.pdf)
                                            [2023-11-30 Indkaldelse ekstraordinært afdelingsmøde afd. 214, 307 og 405.pdf](https://www.boligfa.dk/p/Files/Boligdata/Dokumenter/Afd%2001%20214/M&#xF8;deindkaldelser/2023-11-30-Indkaldelse-ekstraordin&#xE6;rt-afdelingsm&#xF8;de-afd.-214--307-og-405.pdf)
                                            [2023-09-13 Indkaldelse til afdelingsmøde afd. 307.pdf](https://www.boligfa.dk/p/Files/Boligdata/Dokumenter/Afd%2001%20214/M&#xF8;deindkaldelser/2023-09-13-Indkaldelse-til-afdelingsm&#xF8;de-afd.-307.pdf)
                                            [2023-09-07 Indkaldelse til afdelingsmøde afd. 405.pdf](https://www.boligfa.dk/p/Files/Boligdata/Dokumenter/Afd%2001%20214/M&#xF8;deindkaldelser/2023-09-07-Indkaldelse-til-afdelingsm&#xF8;de-afd.-405.pdf)
                                            [2023-08-31 Indkaldelse til afdelingsmøde afd. 214.pdf](https://www.boligfa.dk/p/Files/Boligdata/Dokumenter/Afd%2001%20214/M&#xF8;deindkaldelser/2023-08-31-Indkaldelse-til-afdelingsm&#xF8;de-afd.-214.pdf)
                                            [2023-01-19 Indkaldelse ekstraordinært afdelingsmøde afd. 307.pdf](https://www.boligfa.dk/p/Files/Boligdata/Dokumenter/Afd%2001%20214/M&#xF8;deindkaldelser/2023-01-19-Indkaldelse-ekstraordin&#xE6;rt-afdelingsm&#xF8;de-afd.-307.pdf)
                                            [2022-09-21 Indkaldelse til afdelingsmøde afd. 307.pdf](https://www.boligfa.dk/p/Files/Boligdata/Dokumenter/Afd%2001%20214/M&#xF8;deindkaldelser/2022-09-21-Indkaldelse-til-afdelingsm&#xF8;de-afd.-307.pdf)
                                            [2022-09-19 Indkaldelse til afdelingsmøde afd. 405.pdf](https://www.boligfa.dk/p/Files/Boligdata/Dokumenter/Afd%2001%20214/M&#xF8;deindkaldelser/2022-09-19-Indkaldelse-til-afdelingsm&#xF8;de-afd.-405.pdf)
                                            [2022-09-06 Indkaldelse til afdelingsmøde afd. 214.pdf](https://www.boligfa.dk/p/Files/Boligdata/Dokumenter/Afd%2001%20214/M&#xF8;deindkaldelser/2022-09-06-Indkaldelse-til-afdelingsm&#xF8;de-afd.-214.pdf)
                                            [2022-02-10 Indkaldelse til ekstraordinært afdelingsmøde afd. 307.pdf](https://www.boligfa.dk/p/Files/Boligdata/Dokumenter/Afd%2001%20214/M&#xF8;deindkaldelser/2022-02-10-Indkaldelse-til-ekstraordin&#xE6;rt-afdelingsm&#xF8;de-afd.-307.pdf)

###

                                                Reglementer

[Vedligeholdelsesreglement 03-09-2024 afd. 214.pdf](https://www.boligfa.dk/p/Files/Boligdata/Dokumenter/Afd%2001%20214/Reglementer/Vedligeholdelsesreglement-03-09-2024-afd.-214.pdf)
                                            [Råderetskatalog 03-09-2024 afd. 214.pdf](https://www.boligfa.dk/p/Files/Boligdata/Dokumenter/Afd%2001%20214/Reglementer/R&#xE5;deretskatalog-03-09-2024-afd.-214.pdf)
                                            [Husorden 03-09-2024 afd. 214.pdf](https://www.boligfa.dk/p/Files/Boligdata/Dokumenter/Afd%2001%20214/Reglementer/Husorden-03-09-2024-afd.-214.pdf)

###

                                                Mødereferater

[2025-09-04 Referat af afdelingsmøde afd. 214 Korskærparken.pdf](https://www.boligfa.dk/p/Files/Boligdata/Dokumenter/Afd%2001%20214/M&#xF8;dereferater/2025-09-04-Referat-af-afdelingsm&#xF8;de-afd.-214-Korsk&#xE6;rparken.pdf)
                                            [2024-09-03 Referat af afdelingsmøde afd. 214.pdf](https://www.boligfa.dk/p/Files/Boligdata/Dokumenter/Afd%2001%20214/M&#xF8;dereferater/2024-09-03-Referat-af-afdelingsm&#xF8;de-afd.-214.pdf)
                                            [2024-06-11 Referat  af ekstraordinært afdelingsmøde afd. 214.pdf](https://www.boligfa.dk/p/Files/Boligdata/Dokumenter/Afd%2001%20214/M&#xF8;dereferater/2024-06-11-Referat--af-ekstraordin&#xE6;rt-afdelingsm&#xF8;de-afd.-214.pdf)
                                            [2023-11-30 Referat af sammenlæggende afdelingsmøde afd. 214, 307 og 405.pdf](https://www.boligfa.dk/p/Files/Boligdata/Dokumenter/Afd%2001%20214/M&#xF8;dereferater/2023-11-30-Referat-af-sammenl&#xE6;ggende-afdelingsm&#xF8;de-afd.-214--307-og-405.pdf)
                                            [2023-09-13 Referat af afdelingsmøde afd. 307.pdf](https://www.boligfa.dk/p/Files/Boligdata/Dokumenter/Afd%2001%20214/M&#xF8;dereferater/2023-09-13-Referat-af-afdelingsm&#xF8;de-afd.-307.pdf)
                                            [2023-09-07 Referat af afdelingsmøde afd. 405.pdf](https://www.boligfa.dk/p/Files/Boligdata/Dokumenter/Afd%2001%20214/M&#xF8;dereferater/2023-09-07-Referat-af-afdelingsm&#xF8;de-afd.-405.pdf)
                                            [2023-08-31 Referat af afdelingsmøde afd. 214.pdf](https://www.boligfa.dk/p/Files/Boligdata/Dokumenter/Afd%2001%20214/M&#xF8;dereferater/2023-08-31-Referat-af-afdelingsm&#xF8;de-afd.-214.pdf)
                                            [2023-01-19 Referat af ekstraordinært afdelingsmøde afd. 307.pdf](https://www.boligfa.dk/p/Files/Boligdata/Dokumenter/Afd%2001%20214/M&#xF8;dereferater/2023-01-19-Referat-af-ekstraordin&#xE6;rt-afdelingsm&#xF8;de-afd.-307.pdf)
                                            [2022-09-21 Referat af afdelingsmøde afd. 307.pdf](https://www.boligfa.dk/p/Files/Boligdata/Dokumenter/Afd%2001%20214/M&#xF8;dereferater/2022-09-21-Referat-af-afdelingsm&#xF8;de-afd.-307.pdf)
                                            [2022-09-19 Referat af afdelingsmøde afd. 405.pdf](https://www.boligfa.dk/p/Files/Boligdata/Dokumenter/Afd%2001%20214/M&#xF8;dereferater/2022-09-19-Referat-af-afdelingsm&#xF8;de-afd.-405.pdf)
                                            [2022-09-06 Referat af afdelingsmøde afd. 214.pdf](https://www.boligfa.dk/p/Files/Boligdata/Dokumenter/Afd%2001%20214/M&#xF8;dereferater/2022-09-06-Referat-af-afdelingsm&#xF8;de-afd.-214.pdf)
                                            [2022-02-10 Referat af ekstraordinært afdelingsmøde afd. 307.pdf](https://www.boligfa.dk/p/Files/Boligdata/Dokumenter/Afd%2001%20214/M&#xF8;dereferater/2022-02-10-Referat-af-ekstraordin&#xE6;rt-afdelingsm&#xF8;de-afd.-307.pdf)

###

                                                Regnskaber

[2025 Regnskab afd. 214.pdf](https://www.boligfa.dk/p/Files/Boligdata/Dokumenter/Afd%2001%20214/Regnskaber/2025-Regnskab-afd.-214.pdf)
                                            [2024 Regnskab afd. 214.pdf](https://www.boligfa.dk/p/Files/Boligdata/Dokumenter/Afd%2001%20214/Regnskaber/2024-Regnskab-afd.-214.pdf)
                                            [2023 Regnskab afd. 405.pdf](https://www.boligfa.dk/p/Files/Boligdata/Dokumenter/Afd%2001%20214/Regnskaber/2023-Regnskab-afd.-405.pdf)
                                            [2023 Regnskab afd. 307.pdf](https://www.boligfa.dk/p/Files/Boligdata/Dokumenter/Afd%2001%20214/Regnskaber/2023-Regnskab-afd.-307.pdf)
                                            [2023 Regnskab afd. 214.pdf](https://www.boligfa.dk/p/Files/Boligdata/Dokumenter/Afd%2001%20214/Regnskaber/2023-Regnskab-afd.-214.pdf)
                                            [2022 Regnskab afd. 307.pdf](https://www.boligfa.dk/p/Files/Boligdata/Dokumenter/Afd%2001%20214/Regnskaber/2022-Regnskab-afd.-307.pdf)
                                            [2022 Regnskab afd. 214.pdf](https://www.boligfa.dk/p/Files/Boligdata/Dokumenter/Afd%2001%20214/Regnskaber/2022-Regnskab-afd.-214.pdf)
                                            [2021 Regnskab afd. 307.pdf](https://www.boligfa.dk/p/Files/Boligdata/Dokumenter/Afd%2001%20214/Regnskaber/2021-Regnskab-afd.-307.pdf)
                                            [2021 Regnskab afd. 214.pdf](https://www.boligfa.dk/p/Files/Boligdata/Dokumenter/Afd%2001%20214/Regnskaber/2021-Regnskab-afd.-214.pdf)
                                            [2020 Regnskab afd. 307.pdf](https://www.boligfa.dk/p/Files/Boligdata/Dokumenter/Afd%2001%20214/Regnskaber/2020-Regnskab-afd.-307.pdf)
                                            [2020 Regnskab afd. 214.pdf](https://www.boligfa.dk/p/Files/Boligdata/Dokumenter/Afd%2001%20214/Regnskaber/2020-Regnskab-afd.-214.pdf)
                                            [2019 Regnskab afd. 307.pdf](https://www.boligfa.dk/p/Files/Boligdata/Dokumenter/Afd%2001%20214/Regnskaber/2019-Regnskab-afd.-307.pdf)
                                            [2019 Regnskab afd. 214.pdf](https://www.boligfa.dk/p/Files/Boligdata/Dokumenter/Afd%2001%20214/Regnskaber/2019-Regnskab-afd.-214.pdf)

## Afdelingsbestyrelse

Ismail Faizi

Formand

(04.09.2025 - 03.10.2027)

Birthe Frost

Bestyrelsesmedlem

(03.09.2024 - 02.10.2026)

Jannie Beydoun

Bestyrelsesmedlem

(04.09.2025 - 03.10.2027)

Mugtar Wardere Abdi

Bestyrelsesmedlem

(03.09.2024 - 02.10.2026)

Nahid Osmai

Bestyrelsesmedlem

(01.05.2025 - 02.10.2026)

Poul-Erik Thygesen

Bestyrelsesmedlem

(04.09.2025 - 03.10.2027)

Richard Boisen Mørck

Bestyrelsesmedlem

(04.09.2025 - 03.10.2027)

Marian Thygesen

1. Suppleant

(04.09.2025 - 03.10.2026)

## Kontor

### Servicecenter

76221200

servicecenter@boligfa.dk

### Åbningstider

Mandag - torsdag fra kl. 7.00 - 15.00

Fredag fra kl. 7.00 - 13.00

## Ejendomsadresse

### Varmemesterkontor

Adresse:

Ullerupdalvej 13

7000 Fredericia

### Åbningstider

Personlig henvendelse mandag - fredag kl. 9.00 - 9.30

og mandag til torsdag kl. 12.00 - 12.30

## Inspektør

### Tommy Richterhausen

76221214

tor@boligfa.dk

## Organisationsdokumenter

Her finder du referater og dagsordner fra hovedbestyrelsen.

###

                                                Referat af organisationsbestyrelsesmøder

[2026-04-29 Referat af bestyrelsesmøde.pdf](https://www.boligfa.dk/p/Files/Boligdata/Dokumenter/Selskabsdokumenter/Sel.%201/Referat%20af%20organisationsbestyrelsesm&#xF8;der/2026-04-29-Referat-af-bestyrelsesm&#xF8;de.pdf)
                                            [2026-04-09  Referat af ekstraordinært bestyrelsesmøde.pdf](https://www.boligfa.dk/p/Files/Boligdata/Dokumenter/Selskabsdokumenter/Sel.%201/Referat%20af%20organisationsbestyrelsesm&#xF8;der/2026-04-09--Referat-af-ekstraordin&#xE6;rt-bestyrelsesm&#xF8;de.pdf)
                                            [2026-01-28 Referat af bestyrelsesmøde.pdf](https://www.boligfa.dk/p/Files/Boligdata/Dokumenter/Selskabsdokumenter/Sel.%201/Referat%20af%20organisationsbestyrelsesm&#xF8;der/2026-01-28-referat-af-bestyrelsesm&#xF8;de.pdf)
                                            [2025-12-03-Referat-af-bestyrelsesmøde.pdf](https://www.boligfa.dk/p/Files/Boligdata/Dokumenter/Selskabsdokumenter/Sel.%201/Referat%20af%20organisationsbestyrelsesm&#xF8;der/2025-12-03-Referat-af-bestyrelsesm&#xF8;de.pdf)
                                            [2025-10-22 Referat af bestyrelsesmøde.pdf](https://www.boligfa.dk/p/Files/Boligdata/Dokumenter/Selskabsdokumenter/Sel.%201/Referat%20af%20organisationsbestyrelsesm&#xF8;der/2025-10-22-Referat-af-bestyrelsesm&#xF8;de.pdf)
                                            [2025-08-27 Referat af bestyrelsesmøde.pdf](https://www.boligfa.dk/p/Files/Boligdata/Dokumenter/Selskabsdokumenter/Sel.%201/Referat%20af%20organisationsbestyrelsesm&#xF8;der/2025-08-27-Referat-af-bestyrelsesm&#xF8;de.pdf)
                                            [2025-06-11 Referat af bestyrelsesmøde.pdf](https://www.boligfa.dk/p/Files/Boligdata/Dokumenter/Selskabsdokumenter/Sel.%201/Referat%20af%20organisationsbestyrelsesm&#xF8;der/2025-06-11-Referat-af-bestyrelsesm&#xF8;de.pdf)
                                            [2025-04-23 Referat af bestyrelsesmøde.pdf](https://www.boligfa.dk/p/Files/Boligdata/Dokumenter/Selskabsdokumenter/Sel.%201/Referat%20af%20organisationsbestyrelsesm&#xF8;der/2025-04-23-Referat-af-bestyrelsesm&#xF8;de.pdf)
                                            [2025-01-29 Referat af bestyrelsesmøde.pdf](https://www.boligfa.dk/p/Files/Boligdata/Dokumenter/Selskabsdokumenter/Sel.%201/Referat%20af%20organisationsbestyrelsesm&#xF8;der/2025-01-29-Referat-af-bestyrelsesm&#xF8;de.pdf)
                                            [2024-12-04 Referat af bestyrelsesmøde.pdf](https://www.boligfa.dk/p/Files/Boligdata/Dokumenter/Selskabsdokumenter/Sel.%201/Referat%20af%20organisationsbestyrelsesm&#xF8;der/2024-12-04-Referat-af-bestyrelsesm&#xF8;de.pdf)
                                            [2024-10-22 Referat af bestyrelsesmøde.pdf](https://www.boligfa.dk/p/Files/Boligdata/Dokumenter/Selskabsdokumenter/Sel.%201/Referat%20af%20organisationsbestyrelsesm&#xF8;der/2024-10-22-Referat-af-bestyrelsesm&#xF8;de.pdf)
                                            [2024-08-28 Referat af bestyrelsesmøde.pdf](https://www.boligfa.dk/p/Files/Boligdata/Dokumenter/Selskabsdokumenter/Sel.%201/Referat%20af%20organisationsbestyrelsesm&#xF8;der/2024-08-28-Referat-af-bestyrelsesm&#xF8;de.pdf)
                                            [2024-06-19 Referat af bestyrelsesmøde.pdf](https://www.boligfa.dk/p/Files/Boligdata/Dokumenter/Selskabsdokumenter/Sel.%201/Referat%20af%20organisationsbestyrelsesm&#xF8;der/2024-06-19-Referat-af-bestyrelsesm&#xF8;de.pdf)
                                            [2024-04-24 Referat af bestyrelsesmøde.pdf](https://www.boligfa.dk/p/Files/Boligdata/Dokumenter/Selskabsdokumenter/Sel.%201/Referat%20af%20organisationsbestyrelsesm&#xF8;der/2024-04-24-Referat-af-bestyrelsesm&#xF8;de.pdf)
                                            [2024-02-07 Referat af bestyrelsesmøde.pdf](https://www.boligfa.dk/p/Files/Boligdata/Dokumenter/Selskabsdokumenter/Sel.%201/Referat%20af%20organisationsbestyrelsesm&#xF8;der/2024-02-07-Referat-af-bestyrelsesm&#xF8;de.pdf)
                                            [2023-12-06 Referat af bestyrelsesmøde.pdf](https://www.boligfa.dk/p/Files/Boligdata/Dokumenter/Selskabsdokumenter/Sel.%201/Referat%20af%20organisationsbestyrelsesm&#xF8;der/2023-12-06-Referat-af-bestyrelsesm&#xF8;de.pdf)
                                            [2023-10-11 Referat af bestyrelsesmøde.pdf](https://www.boligfa.dk/p/Files/Boligdata/Dokumenter/Selskabsdokumenter/Sel.%201/Referat%20af%20organisationsbestyrelsesm&#xF8;der/2023-10-11-Referat-af-bestyrelsesm&#xF8;de.pdf)
                                            [2023-08-23 Referat af bestyrelsesmøde.pdf](https://www.boligfa.dk/p/Files/Boligdata/Dokumenter/Selskabsdokumenter/Sel.%201/Referat%20af%20organisationsbestyrelsesm&#xF8;der/2023-08-23-Referat-af-bestyrelsesm&#xF8;de.pdf)
                                            [2023-06-14 Referat af bestyrelsesmøde.pdf](https://www.boligfa.dk/p/Files/Boligdata/Dokumenter/Selskabsdokumenter/Sel.%201/Referat%20af%20organisationsbestyrelsesm&#xF8;der/2023-06-14-Referat-af-bestyrelsesm&#xF8;de.pdf)
                                            [2023-04-26 Referat af bestyrelsesmøde.pdf](https://www.boligfa.dk/p/Files/Boligdata/Dokumenter/Selskabsdokumenter/Sel.%201/Referat%20af%20organisationsbestyrelsesm&#xF8;der/2023-04-26-Referat-af-bestyrelsesm&#xF8;de.pdf)
                                            [2023-02-01 Referat af bestyrelsesmøde.pdf](https://www.boligfa.dk/p/Files/Boligdata/Dokumenter/Selskabsdokumenter/Sel.%201/Referat%20af%20organisationsbestyrelsesm&#xF8;der/2023-02-01-Referat-af-bestyrelsesm&#xF8;de.pdf)
                                            [2022-12-07 Referat af bestyrelsesmøde.pdf](https://www.boligfa.dk/p/Files/Boligdata/Dokumenter/Selskabsdokumenter/Sel.%201/Referat%20af%20organisationsbestyrelsesm&#xF8;der/2022-12-07-Referat-af-bestyrelsesm&#xF8;de.pdf)
                                            [2022-10-12 Referat af bestyrelsesmøde.pdf](https://www.boligfa.dk/p/Files/Boligdata/Dokumenter/Selskabsdokumenter/Sel.%201/Referat%20af%20organisationsbestyrelsesm&#xF8;der/2022-10-12-Referat-af-bestyrelsesm&#xF8;de.pdf)
                                            [2022-08-31 Referat af bestyrelsesmøde.pdf](https://www.boligfa.dk/p/Files/Boligdata/Dokumenter/Selskabsdokumenter/Sel.%201/Referat%20af%20organisationsbestyrelsesm&#xF8;der/2022-08-31-Referat-af-bestyrelsesm&#xF8;de.pdf)
                                            [2022-06-22 Referat af bestyrelsesmøde.pdf](https://www.boligfa.dk/p/Files/Boligdata/Dokumenter/Selskabsdokumenter/Sel.%201/Referat%20af%20organisationsbestyrelsesm&#xF8;der/2022-06-22-Referat-af-bestyrelsesm&#xF8;de.pdf)
                                            [2022-04-26 Referat af bestyrelsesmøde.pdf](https://www.boligfa.dk/p/Files/Boligdata/Dokumenter/Selskabsdokumenter/Sel.%201/Referat%20af%20organisationsbestyrelsesm&#xF8;der/2022-04-26-Referat-af-bestyrelsesm&#xF8;de.pdf)
                                            [2022-02-02 Referat af bestyrelsesmøde.pdf](https://www.boligfa.dk/p/Files/Boligdata/Dokumenter/Selskabsdokumenter/Sel.%201/Referat%20af%20organisationsbestyrelsesm&#xF8;der/2022-02-02-Referat-af-bestyrelsesm&#xF8;de.pdf)
                                            [2021-12-08 Referat af bestyrelsesmøde.pdf](https://www.boligfa.dk/p/Files/Boligdata/Dokumenter/Selskabsdokumenter/Sel.%201/Referat%20af%20organisationsbestyrelsesm&#xF8;der/2021-12-08-Referat-af-bestyrelsesm&#xF8;de.pdf)
                                            [2021-10-13 Referat af bestyrelsesmøde.pdf](https://www.boligfa.dk/p/Files/Boligdata/Dokumenter/Selskabsdokumenter/Sel.%201/Referat%20af%20organisationsbestyrelsesm&#xF8;der/2021-10-13-Referat-af-bestyrelsesm&#xF8;de.pdf)
                                            [2021-09-01 Referat af bestyrelsesmøde.pdf](https://www.boligfa.dk/p/Files/Boligdata/Dokumenter/Selskabsdokumenter/Sel.%201/Referat%20af%20organisationsbestyrelsesm&#xF8;der/2021-09-01-Referat-af-bestyrelsesm&#xF8;de.pdf)
                                            [2021-06-24 Referat af bestyrelsesmøde.pdf](https://www.boligfa.dk/p/Files/Boligdata/Dokumenter/Selskabsdokumenter/Sel.%201/Referat%20af%20organisationsbestyrelsesm&#xF8;der/2021-06-24-Referat-af-bestyrelsesm&#xF8;de.pdf)
                                            [2021-04-28 Referat af bestyrelsesmøde.pdf](https://www.boligfa.dk/p/Files/Boligdata/Dokumenter/Selskabsdokumenter/Sel.%201/Referat%20af%20organisationsbestyrelsesm&#xF8;der/2021-04-28-Referat-af-bestyrelsesm&#xF8;de.pdf)
                                            [2021-02-24 Referat af bestyrelsesmøde.pdf](https://www.boligfa.dk/p/Files/Boligdata/Dokumenter/Selskabsdokumenter/Sel.%201/Referat%20af%20organisationsbestyrelsesm&#xF8;der/2021-02-24-Referat-af-bestyrelsesm&#xF8;de.pdf)

###

                                                Referat af repræsentantskabsmøder

[2025-05-28 Referat af repræsentantskabsmøde.pdf](https://www.boligfa.dk/p/Files/Boligdata/Dokumenter/Selskabsdokumenter/Sel.%201/Referat%20af%20repr&#xE6;sentantskabsm&#xF8;der/2025-05-28-Referat-af-repr&#xE6;sentantskabsm&#xF8;de.pdf)
                                            [2024-11-27 Referat af ekstraordinært repræsentantskabsmøde.pdf](https://www.boligfa.dk/p/Files/Boligdata/Dokumenter/Selskabsdokumenter/Sel.%201/Referat%20af%20repr&#xE6;sentantskabsm&#xF8;der/2024-11-27-Referat-af-ekstraordin&#xE6;rt-repr&#xE6;sentantskabsm&#xF8;de.pdf)
                                            [2024-05-22 Referat af repræsentantskabsmøde.pdf](https://www.boligfa.dk/p/Files/Boligdata/Dokumenter/Selskabsdokumenter/Sel.%201/Referat%20af%20repr&#xE6;sentantskabsm&#xF8;der/2024-05-22-Referat-af-repr&#xE6;sentantskabsm&#xF8;de.pdf)
                                            [2023-12-12 Referat af ekstraordinært repræsentantskabsmøde.pdf](https://www.boligfa.dk/p/Files/Boligdata/Dokumenter/Selskabsdokumenter/Sel.%201/Referat%20af%20repr&#xE6;sentantskabsm&#xF8;der/2023-12-12-Referat-af-ekstraordin&#xE6;rt-repr&#xE6;sentantskabsm&#xF8;de.pdf)
                                            [2023-06-13 Referat af ekstraordinært repræsentantskabsmøde.pdf](https://www.boligfa.dk/p/Files/Boligdata/Dokumenter/Selskabsdokumenter/Sel.%201/Referat%20af%20repr&#xE6;sentantskabsm&#xF8;der/2023-06-13-Referat-af-ekstraordin&#xE6;rt-repr&#xE6;sentantskabsm&#xF8;de.pdf)
                                            [2023-05-24 Referat af repræsentantskabsmøde.pdf](https://www.boligfa.dk/p/Files/Boligdata/Dokumenter/Selskabsdokumenter/Sel.%201/Referat%20af%20repr&#xE6;sentantskabsm&#xF8;der/2023-05-24-Referat-af-repr&#xE6;sentantskabsm&#xF8;de.pdf)
                                            [2022-06-09 Referat af ekstraordinært repræsentantskabsmøde.pdf](https://www.boligfa.dk/p/Files/Boligdata/Dokumenter/Selskabsdokumenter/Sel.%201/Referat%20af%20repr&#xE6;sentantskabsm&#xF8;der/2022-06-09-Referat-af-ekstraordin&#xE6;rt-repr&#xE6;sentantskabsm&#xF8;de.pdf)
                                            [2022-05-18 Referat af repræsentantskabsmøde.pdf](https://www.boligfa.dk/p/Files/Boligdata/Dokumenter/Selskabsdokumenter/Sel.%201/Referat%20af%20repr&#xE6;sentantskabsm&#xF8;der/2022-05-18-Referat-af-repr&#xE6;sentantskabsm&#xF8;de.pdf)
                                            [2022-05-18 Forslag til vedtægsændringer.pdf](https://www.boligfa.dk/p/Files/Boligdata/Dokumenter/Selskabsdokumenter/Sel.%201/Referat%20af%20repr&#xE6;sentantskabsm&#xF8;der/2022-05-18-Forslag-til-vedt&#xE6;gs&#xE6;ndringer.pdf)
                                            [2021-10-27 Referat af ekstraordinært repræsentantskabsmøde.pdf](https://www.boligfa.dk/p/Files/Boligdata/Dokumenter/Selskabsdokumenter/Sel.%201/Referat%20af%20repr&#xE6;sentantskabsm&#xF8;der/2021-10-27-Referat-af-ekstraordin&#xE6;rt-repr&#xE6;sentantskabsm&#xF8;de.pdf)
                                            [2021-06-21 Referat af repræsentantskabsmøde.pdf](https://www.boligfa.dk/p/Files/Boligdata/Dokumenter/Selskabsdokumenter/Sel.%201/Referat%20af%20repr&#xE6;sentantskabsm&#xF8;der/2021-06-21-Referat-af-repr&#xE6;sentantskabsm&#xF8;de.pdf)

###

                                                Mødeindkaldelser organisationsbestyrelse

[2026-04-29 Dagsorden til bestyrelsesmøde.pdf](https://www.boligfa.dk/p/Files/Boligdata/Dokumenter/Selskabsdokumenter/Sel.%201/M&#xF8;deindkaldelser%20organisationsbestyrelse/2026-04-29-Dagsorden-til-bestyrelsesm&#xF8;de.pdf)
                                            [2026-01-28 Dagsorden til bestyrelsesmøde.pdf](https://www.boligfa.dk/p/Files/Boligdata/Dokumenter/Selskabsdokumenter/Sel.%201/M&#xF8;deindkaldelser%20organisationsbestyrelse/2026-01-28-Dagsorden-til-bestyrelsesm&#xF8;de.pdf)
                                            [2025-12-03-Dagsorden-til-bestyrelsesmøde.pdf](https://www.boligfa.dk/p/Files/Boligdata/Dokumenter/Selskabsdokumenter/Sel.%201/M&#xF8;deindkaldelser%20organisationsbestyrelse/2025-12-03-Dagsorden-til-bestyrelsesm&#xF8;de.pdf)
                                            [2025-10-22 Dagsorden til bestyrelsesmøde.pdf](https://www.boligfa.dk/p/Files/Boligdata/Dokumenter/Selskabsdokumenter/Sel.%201/M&#xF8;deindkaldelser%20organisationsbestyrelse/2025-10-22-Dagsorden-til-bestyrelsesm&#xF8;de.pdf)
                                            [2025-08-27 Dagsorden til bestyrelsesmøde.pdf](https://www.boligfa.dk/p/Files/Boligdata/Dokumenter/Selskabsdokumenter/Sel.%201/M&#xF8;deindkaldelser%20organisationsbestyrelse/2025-08-27-Dagsorden-til-bestyrelsesm&#xF8;de.pdf)
                                            [2025-06-11-Dagsorden-til-bestyrelsesmøde.pdf](https://www.boligfa.dk/p/Files/Boligdata/Dokumenter/Selskabsdokumenter/Sel.%201/M&#xF8;deindkaldelser%20organisationsbestyrelse/2025-06-11-Dagsorden-til-bestyrelsesm&#xF8;de.pdf)
                                            [2025-04-23 Dagsorden til bestyrelsesmøde.pdf](https://www.boligfa.dk/p/Files/Boligdata/Dokumenter/Selskabsdokumenter/Sel.%201/M&#xF8;deindkaldelser%20organisationsbestyrelse/2025-04-23-Dagsorden-til-bestyrelsesm&#xF8;de.pdf)
                                            [2025-01-29 Dagsorden til bestyrelsesmøde.pdf](https://www.boligfa.dk/p/Files/Boligdata/Dokumenter/Selskabsdokumenter/Sel.%201/M&#xF8;deindkaldelser%20organisationsbestyrelse/2025-01-29-Dagsorden-til-bestyrelsesm&#xF8;de.pdf)
                                            [2024-12-04 Dagsorden til bestyrelsesmøde.pdf](https://www.boligfa.dk/p/Files/Boligdata/Dokumenter/Selskabsdokumenter/Sel.%201/M&#xF8;deindkaldelser%20organisationsbestyrelse/2024-12-04-Dagsorden-til-bestyrelsesm&#xF8;de.pdf)
                                            [2024-10-22 Dagsorden til bestyrelsesmøde.pdf](https://www.boligfa.dk/p/Files/Boligdata/Dokumenter/Selskabsdokumenter/Sel.%201/M&#xF8;deindkaldelser%20organisationsbestyrelse/2024-10-22-Dagsorden-til-bestyrelsesm&#xF8;de.pdf)
                                            [2024-06-19 Dagsorden til bestyrelsesmøde.pdf](https://www.boligfa.dk/p/Files/Boligdata/Dokumenter/Selskabsdokumenter/Sel.%201/M&#xF8;deindkaldelser%20organisationsbestyrelse/2024-06-19-Dagsorden-til-bestyrelsesm&#xF8;de.pdf)
                                            [2024-04-24 Dagsorden til bestyrelsesmøde.pdf](https://www.boligfa.dk/p/Files/Boligdata/Dokumenter/Selskabsdokumenter/Sel.%201/M&#xF8;deindkaldelser%20organisationsbestyrelse/2024-04-24-Dagsorden-til-bestyrelsesm&#xF8;de.pdf)
                                            [2024-02-07 Dagsorden til bestyrelsesmøde.pdf](https://www.boligfa.dk/p/Files/Boligdata/Dokumenter/Selskabsdokumenter/Sel.%201/M&#xF8;deindkaldelser%20organisationsbestyrelse/2024-02-07-Dagsorden-til-bestyrelsesm&#xF8;de.pdf)
                                            [2023-10-11 Dagsorden til bestyrelsesmøde.pdf](https://www.boligfa.dk/p/Files/Boligdata/Dokumenter/Selskabsdokumenter/Sel.%201/M&#xF8;deindkaldelser%20organisationsbestyrelse/2023-10-11-Dagsorden-til-bestyrelsesm&#xF8;de.pdf)
                                            [2023-08-23 Dagsorden til bestyrelsesmøde.pdf](https://www.boligfa.dk/p/Files/Boligdata/Dokumenter/Selskabsdokumenter/Sel.%201/M&#xF8;deindkaldelser%20organisationsbestyrelse/2023-08-23-Dagsorden-til-bestyrelsesm&#xF8;de.pdf)
                                            [2023-06-14 Dagsorden til bestyrelsesmøde.pdf](https://www.boligfa.dk/p/Files/Boligdata/Dokumenter/Selskabsdokumenter/Sel.%201/M&#xF8;deindkaldelser%20organisationsbestyrelse/2023-06-14-Dagsorden-til-bestyrelsesm&#xF8;de.pdf)
                                            [2023-04-26 Dagsorden til bestyrelsesmøde.pdf](https://www.boligfa.dk/p/Files/Boligdata/Dokumenter/Selskabsdokumenter/Sel.%201/M&#xF8;deindkaldelser%20organisationsbestyrelse/2023-04-26-Dagsorden-til-bestyrelsesm&#xF8;de.pdf)
                                            [2023-02-01 Dagsorden til bestyrelsesmøde.pdf](https://www.boligfa.dk/p/Files/Boligdata/Dokumenter/Selskabsdokumenter/Sel.%201/M&#xF8;deindkaldelser%20organisationsbestyrelse/2023-02-01-Dagsorden-til-bestyrelsesm&#xF8;de.pdf)
                                            [2022-12-07 Dagsorden til bestyrelsesmøde.pdf](https://www.boligfa.dk/p/Files/Boligdata/Dokumenter/Selskabsdokumenter/Sel.%201/M&#xF8;deindkaldelser%20organisationsbestyrelse/2022-12-07-Dagsorden-til-bestyrelsesm&#xF8;de.pdf)
                                            [2022-10-12 Dagsorden til bestyrelsesmøde.pdf](https://www.boligfa.dk/p/Files/Boligdata/Dokumenter/Selskabsdokumenter/Sel.%201/M&#xF8;deindkaldelser%20organisationsbestyrelse/2022-10-12-Dagsorden-til-bestyrelsesm&#xF8;de.pdf)
                                            [2022-08-31 Dagsorden til bestyrelsesmøde.pdf](https://www.boligfa.dk/p/Files/Boligdata/Dokumenter/Selskabsdokumenter/Sel.%201/M&#xF8;deindkaldelser%20organisationsbestyrelse/2022-08-31-Dagsorden-til-bestyrelsesm&#xF8;de.pdf)
                                            [2022-06-22 Dagsorden til bestyrelsesmøde.pdf](https://www.boligfa.dk/p/Files/Boligdata/Dokumenter/Selskabsdokumenter/Sel.%201/M&#xF8;deindkaldelser%20organisationsbestyrelse/2022-06-22-Dagsorden-til-bestyrelsesm&#xF8;de.pdf)
                                            [2022-04-26 Dagsorden til bestyrelsesmøde.pdf](https://www.boligfa.dk/p/Files/Boligdata/Dokumenter/Selskabsdokumenter/Sel.%201/M&#xF8;deindkaldelser%20organisationsbestyrelse/2022-04-26-Dagsorden-til-bestyrelsesm&#xF8;de.pdf)
                                            [2022-02-02 Dagsorden til bestyrelsesmøde.pdf](https://www.boligfa.dk/p/Files/Boligdata/Dokumenter/Selskabsdokumenter/Sel.%201/M&#xF8;deindkaldelser%20organisationsbestyrelse/2022-02-02-Dagsorden-til-bestyrelsesm&#xF8;de.pdf)
                                            [2021-12-08 Dagsorden til bestyrelsesmøde.pdf](https://www.boligfa.dk/p/Files/Boligdata/Dokumenter/Selskabsdokumenter/Sel.%201/M&#xF8;deindkaldelser%20organisationsbestyrelse/2021-12-08-Dagsorden-til-bestyrelsesm&#xF8;de.pdf)
                                            [2021-10-13 Dagsorden til bestyrelsesmøde.pdf](https://www.boligfa.dk/p/Files/Boligdata/Dokumenter/Selskabsdokumenter/Sel.%201/M&#xF8;deindkaldelser%20organisationsbestyrelse/2021-10-13-Dagsorden-til-bestyrelsesm&#xF8;de.pdf)
                                            [2021-09-01 Dagsorden til bestyrelsesmøde.pdf](https://www.boligfa.dk/p/Files/Boligdata/Dokumenter/Selskabsdokumenter/Sel.%201/M&#xF8;deindkaldelser%20organisationsbestyrelse/2021-09-01-Dagsorden-til-bestyrelsesm&#xF8;de.pdf)
                                            [2021-02-24 Dagsorden til bestyrelsesmøde.pdf](https://www.boligfa.dk/p/Files/Boligdata/Dokumenter/Selskabsdokumenter/Sel.%201/M&#xF8;deindkaldelser%20organisationsbestyrelse/2021-02-24-Dagsorden-til-bestyrelsesm&#xF8;de.pdf)

###

                                                Mødeindkaldelser repræsentantskabsmøder

[2026-05-27 Indkaldelse til repræsentantskabsmøde.pdf](https://www.boligfa.dk/p/Files/Boligdata/Dokumenter/Selskabsdokumenter/Sel.%201/M&#xF8;deindkaldelser%20repr&#xE6;sentantskabsm&#xF8;der/2026-05-27-Indkaldelse-til-repr&#xE6;sentantskabsm&#xF8;de.pdf)
                                            [2025-05-28-Indkaldelse-til-repræsentantskabsmøde.pdf](https://www.boligfa.dk/p/Files/Boligdata/Dokumenter/Selskabsdokumenter/Sel.%201/M&#xF8;deindkaldelser%20repr&#xE6;sentantskabsm&#xF8;der/2025-05-28-Indkaldelse-til-repr&#xE6;sentantskabsm&#xF8;de.pdf)
                                            [2025-05-28 Indkaldelse (ny adresse) til repræsentantskabsmøde.pdf](https://www.boligfa.dk/p/Files/Boligdata/Dokumenter/Selskabsdokumenter/Sel.%201/M&#xF8;deindkaldelser%20repr&#xE6;sentantskabsm&#xF8;der/2025-05-28-Indkaldelse--ny-adresse--til-repr&#xE6;sentantskabsm&#xF8;de.pdf)
                                            [2025-05-28 Dagsorden til repræsentantskabsmødet.pdf](https://www.boligfa.dk/p/Files/Boligdata/Dokumenter/Selskabsdokumenter/Sel.%201/M&#xF8;deindkaldelser%20repr&#xE6;sentantskabsm&#xF8;der/2025-05-28-Dagsorden-til-repr&#xE6;sentantskabsm&#xF8;det.pdf)
                                            [2024-11-27 Indkaldelse til ekstraordinært repræsentantskabsmøde.pdf](https://www.boligfa.dk/p/Files/Boligdata/Dokumenter/Selskabsdokumenter/Sel.%201/M&#xF8;deindkaldelser%20repr&#xE6;sentantskabsm&#xF8;der/2024-11-27-Indkaldelse-til-ekstraordin&#xE6;rt-repr&#xE6;sentantskabsm&#xF8;de.pdf)
                                            [2024-11-27 Dagsorden til ekstraordinært repræsentantskabsmøde.pdf](https://www.boligfa.dk/p/Files/Boligdata/Dokumenter/Selskabsdokumenter/Sel.%201/M&#xF8;deindkaldelser%20repr&#xE6;sentantskabsm&#xF8;der/2024-11-27-Dagsorden-til-ekstraordin&#xE6;rt-repr&#xE6;sentantskabsm&#xF8;de.pdf)
                                            [2024-05-22 Indkaldelse til repræsentantskabsmøde.pdf](https://www.boligfa.dk/p/Files/Boligdata/Dokumenter/Selskabsdokumenter/Sel.%201/M&#xF8;deindkaldelser%20repr&#xE6;sentantskabsm&#xF8;der/2024-05-22-Indkaldelse-til-repr&#xE6;sentantskabsm&#xF8;de.pdf)
                                            [2023-06-13 Indkaldelse til ekstraordinært repræsentantskabsmøde.pdf](https://www.boligfa.dk/p/Files/Boligdata/Dokumenter/Selskabsdokumenter/Sel.%201/M&#xF8;deindkaldelser%20repr&#xE6;sentantskabsm&#xF8;der/2023-06-13-Indkaldelse-til-ekstraordin&#xE6;rt-repr&#xE6;sentantskabsm&#xF8;de.pdf)
                                            [2023-05-24 Indkaldelse til repræsentantskabsmøde.pdf](https://www.boligfa.dk/p/Files/Boligdata/Dokumenter/Selskabsdokumenter/Sel.%201/M&#xF8;deindkaldelser%20repr&#xE6;sentantskabsm&#xF8;der/2023-05-24-Indkaldelse-til-repr&#xE6;sentantskabsm&#xF8;de.pdf)
                                            [2022-06-09 Ny dagsorden til ekstraordinært repræsentantskabsmøde.pdf](https://www.boligfa.dk/p/Files/Boligdata/Dokumenter/Selskabsdokumenter/Sel.%201/M&#xF8;deindkaldelser%20repr&#xE6;sentantskabsm&#xF8;der/2022-06-09-Ny-dagsorden-til-ekstraordin&#xE6;rt-repr&#xE6;sentantskabsm&#xF8;de.pdf)
                                            [2022-06-09 Indkaldelse til ekstraordinært repræsentantskabsmøde.pdf](https://www.boligfa.dk/p/Files/Boligdata/Dokumenter/Selskabsdokumenter/Sel.%201/M&#xF8;deindkaldelser%20repr&#xE6;sentantskabsm&#xF8;der/2022-06-09-Indkaldelse-til-ekstraordin&#xE6;rt-repr&#xE6;sentantskabsm&#xF8;de.pdf)
                                            [2022-05-18 Indkaldelse til repræsentantskabsmøde.pdf.pdf](https://www.boligfa.dk/p/Files/Boligdata/Dokumenter/Selskabsdokumenter/Sel.%201/M&#xF8;deindkaldelser%20repr&#xE6;sentantskabsm&#xF8;der/2022-05-18-Indkaldelse-til-repr&#xE6;sentantskabsm&#xF8;de.pdf.pdf)
                                            [2022-05-18 Indkaldelse til repræsentantskabsmøde.pdf](https://www.boligfa.dk/p/Files/Boligdata/Dokumenter/Selskabsdokumenter/Sel.%201/M&#xF8;deindkaldelser%20repr&#xE6;sentantskabsm&#xF8;der/2022-05-18-Indkaldelse-til-repr&#xE6;sentantskabsm&#xF8;de.pdf)
                                            [2021-10-27 Indkaldelse til ekstraordinært repræsentantskabsmøde.pdf](https://www.boligfa.dk/p/Files/Boligdata/Dokumenter/Selskabsdokumenter/Sel.%201/M&#xF8;deindkaldelser%20repr&#xE6;sentantskabsm&#xF8;der/2021-10-27-Indkaldelse-til-ekstraordin&#xE6;rt-repr&#xE6;sentantskabsm&#xF8;de.pdf)
                                            [2021-06-21 Indkaldelse til repræsentantskabsmøde.pdf](https://www.boligfa.dk/p/Files/Boligdata/Dokumenter/Selskabsdokumenter/Sel.%201/M&#xF8;deindkaldelser%20repr&#xE6;sentantskabsm&#xF8;der/2021-06-21-Indkaldelse-til-repr&#xE6;sentantskabsm&#xF8;de.pdf)

###

                                                Regnskaber

[2025 Regnskab Boligkontoret Fredericia.pdf](https://www.boligfa.dk/p/Files/Boligdata/Dokumenter/Selskabsdokumenter/Sel.%201/Regnskaber/2025-Regnskab-Boligkontoret-Fredericia.pdf)
                                            [2024 Regnskab Boligkontoret Fredericia.pdf](https://www.boligfa.dk/p/Files/Boligdata/Dokumenter/Selskabsdokumenter/Sel.%201/Regnskaber/2024-Regnskab-Boligkontoret-Fredericia.pdf)
                                            [2023 Regnskab Boligkontoret Fredericia.pdf](https://www.boligfa.dk/p/Files/Boligdata/Dokumenter/Selskabsdokumenter/Sel.%201/Regnskaber/2023-Regnskab-Boligkontoret-Fredericia.pdf)
                                            [2022 Regnskab Boligkontoret Fredericia.pdf](https://www.boligfa.dk/p/Files/Boligdata/Dokumenter/Selskabsdokumenter/Sel.%201/Regnskaber/2022-Regnskab-Boligkontoret-Fredericia.pdf)
                                            [2021 Regnskab Boligkontoret Fredercia.pdf](https://www.boligfa.dk/p/Files/Boligdata/Dokumenter/Selskabsdokumenter/Sel.%201/Regnskaber/2021-Regnskab-Boligkontoret-Fredercia.pdf)
                                            [2020 Regnskab Boligkontoret Fredericia.pdf](https://www.boligfa.dk/p/Files/Boligdata/Dokumenter/Selskabsdokumenter/Sel.%201/Regnskaber/2020-Regnskab-Boligkontoret-Fredericia.pdf)
                                            [2019 Regnskab Boligkontoret Fredericia.pdf](https://www.boligfa.dk/p/Files/Boligdata/Dokumenter/Selskabsdokumenter/Sel.%201/Regnskaber/2019-Regnskab-Boligkontoret-Fredericia.pdf)

###

                                                Vedtægter

[Vedtægter for Boligkontoret Fredericia.pdf](https://www.boligfa.dk/p/Files/Boligdata/Dokumenter/Selskabsdokumenter/Sel.%201/Vedt&#xE6;gter/Vedt&#xE6;gter-for-Boligkontoret-Fredericia.pdf)
