---
title: "Nestlegården"
description: "1-312"
date: "2026-02-27"
created: "2025-06-23"
---

-
-
-
-
-
-
-
-

https://maps.google.dk/?q=55.5697303,9.7636391

# Nestlegården

Afdeling 312

## Velkommen til Nestlegården

Kongensgade 2 - 6, Nørre Voldgade 56 - 60, Kongensstræde 1 - 11, Bjergegade 3A,B,C. Opførelsesår 1986 + 2019. Boliger fordelt på lejligheder i etagebyggeri og rækkehuse.

Stuelejlighederne i Nørre Voldgade 56 - 60 visteres af Fredericia Kommune. Ring til Visitationsafdelingen på telefon 7210 7000.

Der kan søges indskudslån.
De 9 boliger i Kongensstræde 3A + 3B kan der ikke søges indskudslån til

## Fakta for afdelingen

Vaskeri

Ja

Elevator

Ja

Der er elevator til 7 af 9 boliger i Kongensstræde 3A - 3B

TV

Læs mere

Beboere i denne afdeling får særlige priser på deres fiberbredbånd hos EWII. Læs mere på https://www.ewii.dk/privat/internet/boligforening/ eller kontakt EWII kundeservice på 7055 5555. Oplys at du er lejer hos Boligkontoret Fredericia. (Der kan være enkelte adresser der ikke kan leveres til / samt leveringstid)

Energimærkning

Læs mere

C, E

Festlokale

Ja

Afdelingen har festlokale og gæsteværelse

Have

Ja

Rækkehusene i Bjergegade 3A-B-C har have.

Altan

Ja

De fleste lejligheder har altan

Husdyr

Nej

Forbrug

Læs mere

El afregnes direkte til forsyningsselskab. I Kongensstræde 3A-B afregnes alt forbrug direkte til leverandørerne.

Bi-lejemål

Ja

Der er et kælderrum/depotrum til boligen. Der er mulighed for at leje en P-plads i garage eller en scooterplads.Opskrivning på ventelisten - kontakt administrationen

Ladestander

Nej

                        Se flere

## Boligtyper i afdelingen

Almindelig bolig

2 værelses

boliger

Almindelig bolig

3 værelses

boliger

Almindelig bolig

4 værelses

boliger

Boligtype

Værelser

Størrelse

Husleje

Indskud/dp

Plantegning

Almindelig bolig

2

85 m²

6893 kr.

10000 kr.

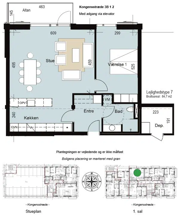
![](https://www.boligfa.dk/i/MOLIRIMEDIA/8afa80dd-86da-461f-0071-08dcfd846119?width=800)

Almindelig bolig

2

69 m²

5329 kr.

9900 kr.

Almindelig bolig

2

68 m²

5263 kr.

9800 kr.

![](https://www.boligfa.dk/i/MOLIRIMEDIA/4e593b51-3198-4e55-d8b0-08dcfd846118?width=800)

Almindelig bolig

3

121 m²

9067 kr.

14500 kr.

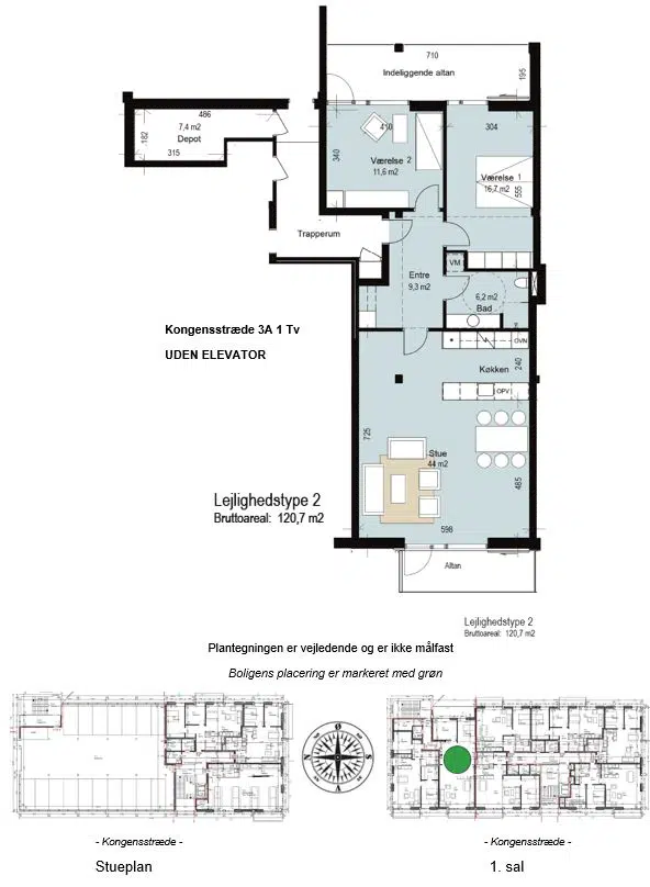
![](https://www.boligfa.dk/i/MOLIRIMEDIA/9da9aa50-a9d9-40f1-ffec-08dcfd846118?width=800)

Almindelig bolig

3

93 m²

7378 kr.

11000 kr.

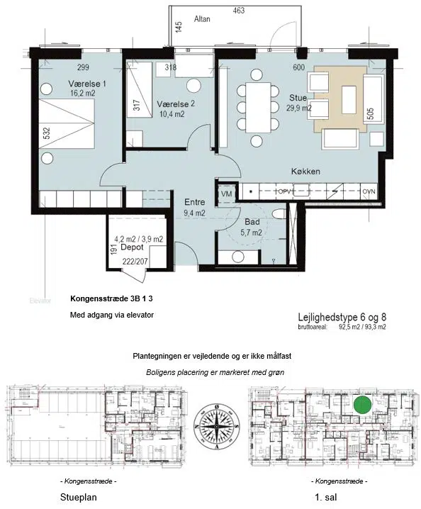
![](https://www.boligfa.dk/i/MOLIRIMEDIA/19044411-9445-4395-ffc0-08dcfd846118?width=800)

Almindelig bolig

3

86 m²

6425 kr.

12300 kr.

Almindelig bolig

3

93 m²

6878 kr.

13300 kr.

Almindelig bolig

3

87 m²

6487 kr.

12500 kr.

Almindelig bolig

4

91 m²

6749 kr.

13100 kr.

![](https://www.boligfa.dk/i/MOLIRIMEDIA/6ce2d0d8-4311-484d-d680-08dcfd846118?width=800)

## Afdelingsdokumenter

Her finder du nyttig information om din afdeling, såsom husorden, vedligeholdelse af dit lejemål, eller referater fra hovedbestyrelsen.

###

                                                Brugervejledninger

[Brugervejledning Kongensstræde 3A-B 27-11-2024 afd. 312.pdf](https://www.boligfa.dk/p/Files/Boligdata/Dokumenter/Afd%2001%20312/Brugervejledninger/Brugervejledning-Kongensstr&#xE6;de-3A-B-27-11-2024-afd.-312.pdf)
                                            [Brugervejledning 27-11-2024 afd. 312.pdf](https://www.boligfa.dk/p/Files/Boligdata/Dokumenter/Afd%2001%20312/Brugervejledninger/Brugervejledning-27-11-2024-afd.-312.pdf)

###

                                                Mødeindkaldelser

[2025-08-25 Indkaldelse til afdelingsmøde afd. 312 Nestlegården.pdf](https://www.boligfa.dk/p/Files/Boligdata/Dokumenter/Afd%2001%20312/M&#xF8;deindkaldelser/2025-08-25-Indkaldelse-til-afdelingsm&#xF8;de-afd.-312-Nestleg&#xE5;rden.pdf)
                                            [2025-02-20 Indkaldelse til ekstraordinært afdelingsmøde afd. 312 Nestlegården.pdf](https://www.boligfa.dk/p/Files/Boligdata/Dokumenter/Afd%2001%20312/M&#xF8;deindkaldelser/2025-02-20-Indkaldelse-til-ekstraordin&#xE6;rt-afdelingsm&#xF8;de-afd.-312-Nestleg&#xE5;rden.pdf)
                                            [2024-09-09 Indkaldelse til afdelingsmøde afd. 312.pdf](https://www.boligfa.dk/p/Files/Boligdata/Dokumenter/Afd%2001%20312/M&#xF8;deindkaldelser/2024-09-09-Indkaldelse-til-afdelingsm&#xF8;de-afd.-312.pdf)
                                            [2024-06-13 Indkaldelsetil ekstraordinært afdelingsmøde afd. 312.pdf](https://www.boligfa.dk/p/Files/Boligdata/Dokumenter/Afd%2001%20312/M&#xF8;deindkaldelser/2024-06-13-Indkaldelsetil-ekstraordin&#xE6;rt-afdelingsm&#xF8;de-afd.-312.pdf)
                                            [2023-09-11 Indkaldelse til afdelingsmøde afd. 312.pdf](https://www.boligfa.dk/p/Files/Boligdata/Dokumenter/Afd%2001%20312/M&#xF8;deindkaldelser/2023-09-11-Indkaldelse-til-afdelingsm&#xF8;de-afd.-312.pdf)
                                            [2022-09-19 Indkaldelse til afdelingsmøde afd. 312.pdf](https://www.boligfa.dk/p/Files/Boligdata/Dokumenter/Afd%2001%20312/M&#xF8;deindkaldelser/2022-09-19-Indkaldelse-til-afdelingsm&#xF8;de-afd.-312.pdf)
                                            [2021-09-16 Indkaldelse til afdelingsmøde afd. 312.pdf](https://www.boligfa.dk/p/Files/Boligdata/Dokumenter/Afd%2001%20312/M&#xF8;deindkaldelser/2021-09-16-Indkaldelse-til-afdelingsm&#xF8;de-afd.-312.pdf)

###

                                                Reglementer

[Vedligeholdelsesreglement 19-09-2022 afd. 312.pdf](https://www.boligfa.dk/p/Files/Boligdata/Dokumenter/Afd%2001%20312/Reglementer/Vedligeholdelsesreglement-19-09-2022-afd.-312.pdf)
                                            [Råderetskatalog 20-02-2025 afd. 312.pdf](https://www.boligfa.dk/p/Files/Boligdata/Dokumenter/Afd%2001%20312/Reglementer/R&#xE5;deretskatalog-20-02-2025-afd.-312.pdf)
                                            [Husorden 19-09-2022 afd. 312.pdf](https://www.boligfa.dk/p/Files/Boligdata/Dokumenter/Afd%2001%20312/Reglementer/Husorden-19-09-2022-afd.-312.pdf)

###

                                                Mødereferater

[2025-08-25 Referat af afdelingsmøde afd. 312 Nestlegården.pdf](https://www.boligfa.dk/p/Files/Boligdata/Dokumenter/Afd%2001%20312/M&#xF8;dereferater/2025-08-25-Referat-af-afdelingsm&#xF8;de-afd.-312-Nestleg&#xE5;rden.pdf)
                                            [2025-02-20-Referat-af-ekstraordinært-afdelingsmøde-afd.-312-Nestlegården.pdf](https://www.boligfa.dk/p/Files/Boligdata/Dokumenter/Afd%2001%20312/M&#xF8;dereferater/2025-02-20-Referat-af-ekstraordin&#xE6;rt-afdelingsm&#xF8;de-afd.-312-Nestleg&#xE5;rden.pdf)
                                            [2024-09-09 Referat af afdelingsmøde afd. 312.pdf](https://www.boligfa.dk/p/Files/Boligdata/Dokumenter/Afd%2001%20312/M&#xF8;dereferater/2024-09-09-Referat-af-afdelingsm&#xF8;de-afd.-312.pdf)
                                            [2024-06-13 Referat af ekstraordinært afdelingsmøde afd. 312.pdf](https://www.boligfa.dk/p/Files/Boligdata/Dokumenter/Afd%2001%20312/M&#xF8;dereferater/2024-06-13-Referat-af-ekstraordin&#xE6;rt-afdelingsm&#xF8;de-afd.-312.pdf)
                                            [2023-09-11 Referat af afdelingsmøde afd. 312.pdf](https://www.boligfa.dk/p/Files/Boligdata/Dokumenter/Afd%2001%20312/M&#xF8;dereferater/2023-09-11-Referat-af-afdelingsm&#xF8;de-afd.-312.pdf)
                                            [2022-09-19 Referat af afdelingsmøde afd. 312.pdf](https://www.boligfa.dk/p/Files/Boligdata/Dokumenter/Afd%2001%20312/M&#xF8;dereferater/2022-09-19-Referat-af-afdelingsm&#xF8;de-afd.-312.pdf)
                                            [2021-09-16 Referat af afdelingsmøde afd. 312.pdf](https://www.boligfa.dk/p/Files/Boligdata/Dokumenter/Afd%2001%20312/M&#xF8;dereferater/2021-09-16-Referat-af-afdelingsm&#xF8;de-afd.-312.pdf)

###

                                                Regnskaber

[2025 Regnskab afd. 312.pdf](https://www.boligfa.dk/p/Files/Boligdata/Dokumenter/Afd%2001%20312/Regnskaber/2025-Regnskab-afd.-312.pdf)
                                            [2024 Regnskab afd. 312.pdf](https://www.boligfa.dk/p/Files/Boligdata/Dokumenter/Afd%2001%20312/Regnskaber/2024-Regnskab-afd.-312.pdf)
                                            [2023 Regnskab afd. 312.pdf](https://www.boligfa.dk/p/Files/Boligdata/Dokumenter/Afd%2001%20312/Regnskaber/2023-Regnskab-afd.-312.pdf)
                                            [2022 Regnskab afd. 312.pdf](https://www.boligfa.dk/p/Files/Boligdata/Dokumenter/Afd%2001%20312/Regnskaber/2022-Regnskab-afd.-312.pdf)
                                            [2021 Regnskab afd. 312.pdf](https://www.boligfa.dk/p/Files/Boligdata/Dokumenter/Afd%2001%20312/Regnskaber/2021-Regnskab-afd.-312.pdf)
                                            [2020 Regnskab afd. 312.pdf](https://www.boligfa.dk/p/Files/Boligdata/Dokumenter/Afd%2001%20312/Regnskaber/2020-Regnskab-afd.-312.pdf)
                                            [2019 Regnskab afd. 312.pdf](https://www.boligfa.dk/p/Files/Boligdata/Dokumenter/Afd%2001%20312/Regnskaber/2019-Regnskab-afd.-312.pdf)

## Afdelingsbestyrelse

Lisbeth Tørnes

Formand

(25.08.2025 - 24.09.2027)

Gerda Hougaard

Bestyrelsesmedlem

(25.08.2025 - 24.09.2027)

Tina Hassel

Bestyrelsesmedlem

(09.09.2024 - 08.10.2026)

Peter Hougaard

1. Suppleant

(25.08.2025 - 24.09.2026)

## Kontor

### Servicecenter

76221200

servicecenter@boligfa.dk

### Åbningstider

Mandag - torsdag fra kl. 7.00 - 15.00

Fredag fra kl. 7.00 - 13.00

## Ejendomsadresse

### Varmemesterkontor

Adresse:

Købmagergade 65C

7000 Fredericia

### Åbningstider

Personlig henvendelse mandag - fredag kl. 9.00 - 9.30

og mandag til torsdag kl. 12.00 - 12.30

## Inspektør

### Kaj Johansen

76221224

kjo@boligfa.dk

## Organisationsdokumenter

Her finder du referater og dagsordner fra hovedbestyrelsen.

###

                                                Referat af organisationsbestyrelsesmøder

[2026-04-29 Referat af bestyrelsesmøde.pdf](https://www.boligfa.dk/p/Files/Boligdata/Dokumenter/Selskabsdokumenter/Sel.%201/Referat%20af%20organisationsbestyrelsesm&#xF8;der/2026-04-29-Referat-af-bestyrelsesm&#xF8;de.pdf)
                                            [2026-04-09  Referat af ekstraordinært bestyrelsesmøde.pdf](https://www.boligfa.dk/p/Files/Boligdata/Dokumenter/Selskabsdokumenter/Sel.%201/Referat%20af%20organisationsbestyrelsesm&#xF8;der/2026-04-09--Referat-af-ekstraordin&#xE6;rt-bestyrelsesm&#xF8;de.pdf)
                                            [2026-01-28 Referat af bestyrelsesmøde.pdf](https://www.boligfa.dk/p/Files/Boligdata/Dokumenter/Selskabsdokumenter/Sel.%201/Referat%20af%20organisationsbestyrelsesm&#xF8;der/2026-01-28-referat-af-bestyrelsesm&#xF8;de.pdf)
                                            [2025-12-03-Referat-af-bestyrelsesmøde.pdf](https://www.boligfa.dk/p/Files/Boligdata/Dokumenter/Selskabsdokumenter/Sel.%201/Referat%20af%20organisationsbestyrelsesm&#xF8;der/2025-12-03-Referat-af-bestyrelsesm&#xF8;de.pdf)
                                            [2025-10-22 Referat af bestyrelsesmøde.pdf](https://www.boligfa.dk/p/Files/Boligdata/Dokumenter/Selskabsdokumenter/Sel.%201/Referat%20af%20organisationsbestyrelsesm&#xF8;der/2025-10-22-Referat-af-bestyrelsesm&#xF8;de.pdf)
                                            [2025-08-27 Referat af bestyrelsesmøde.pdf](https://www.boligfa.dk/p/Files/Boligdata/Dokumenter/Selskabsdokumenter/Sel.%201/Referat%20af%20organisationsbestyrelsesm&#xF8;der/2025-08-27-Referat-af-bestyrelsesm&#xF8;de.pdf)
                                            [2025-06-11 Referat af bestyrelsesmøde.pdf](https://www.boligfa.dk/p/Files/Boligdata/Dokumenter/Selskabsdokumenter/Sel.%201/Referat%20af%20organisationsbestyrelsesm&#xF8;der/2025-06-11-Referat-af-bestyrelsesm&#xF8;de.pdf)
                                            [2025-04-23 Referat af bestyrelsesmøde.pdf](https://www.boligfa.dk/p/Files/Boligdata/Dokumenter/Selskabsdokumenter/Sel.%201/Referat%20af%20organisationsbestyrelsesm&#xF8;der/2025-04-23-Referat-af-bestyrelsesm&#xF8;de.pdf)
                                            [2025-01-29 Referat af bestyrelsesmøde.pdf](https://www.boligfa.dk/p/Files/Boligdata/Dokumenter/Selskabsdokumenter/Sel.%201/Referat%20af%20organisationsbestyrelsesm&#xF8;der/2025-01-29-Referat-af-bestyrelsesm&#xF8;de.pdf)
                                            [2024-12-04 Referat af bestyrelsesmøde.pdf](https://www.boligfa.dk/p/Files/Boligdata/Dokumenter/Selskabsdokumenter/Sel.%201/Referat%20af%20organisationsbestyrelsesm&#xF8;der/2024-12-04-Referat-af-bestyrelsesm&#xF8;de.pdf)
                                            [2024-10-22 Referat af bestyrelsesmøde.pdf](https://www.boligfa.dk/p/Files/Boligdata/Dokumenter/Selskabsdokumenter/Sel.%201/Referat%20af%20organisationsbestyrelsesm&#xF8;der/2024-10-22-Referat-af-bestyrelsesm&#xF8;de.pdf)
                                            [2024-08-28 Referat af bestyrelsesmøde.pdf](https://www.boligfa.dk/p/Files/Boligdata/Dokumenter/Selskabsdokumenter/Sel.%201/Referat%20af%20organisationsbestyrelsesm&#xF8;der/2024-08-28-Referat-af-bestyrelsesm&#xF8;de.pdf)
                                            [2024-06-19 Referat af bestyrelsesmøde.pdf](https://www.boligfa.dk/p/Files/Boligdata/Dokumenter/Selskabsdokumenter/Sel.%201/Referat%20af%20organisationsbestyrelsesm&#xF8;der/2024-06-19-Referat-af-bestyrelsesm&#xF8;de.pdf)
                                            [2024-04-24 Referat af bestyrelsesmøde.pdf](https://www.boligfa.dk/p/Files/Boligdata/Dokumenter/Selskabsdokumenter/Sel.%201/Referat%20af%20organisationsbestyrelsesm&#xF8;der/2024-04-24-Referat-af-bestyrelsesm&#xF8;de.pdf)
                                            [2024-02-07 Referat af bestyrelsesmøde.pdf](https://www.boligfa.dk/p/Files/Boligdata/Dokumenter/Selskabsdokumenter/Sel.%201/Referat%20af%20organisationsbestyrelsesm&#xF8;der/2024-02-07-Referat-af-bestyrelsesm&#xF8;de.pdf)
                                            [2023-12-06 Referat af bestyrelsesmøde.pdf](https://www.boligfa.dk/p/Files/Boligdata/Dokumenter/Selskabsdokumenter/Sel.%201/Referat%20af%20organisationsbestyrelsesm&#xF8;der/2023-12-06-Referat-af-bestyrelsesm&#xF8;de.pdf)
                                            [2023-10-11 Referat af bestyrelsesmøde.pdf](https://www.boligfa.dk/p/Files/Boligdata/Dokumenter/Selskabsdokumenter/Sel.%201/Referat%20af%20organisationsbestyrelsesm&#xF8;der/2023-10-11-Referat-af-bestyrelsesm&#xF8;de.pdf)
                                            [2023-08-23 Referat af bestyrelsesmøde.pdf](https://www.boligfa.dk/p/Files/Boligdata/Dokumenter/Selskabsdokumenter/Sel.%201/Referat%20af%20organisationsbestyrelsesm&#xF8;der/2023-08-23-Referat-af-bestyrelsesm&#xF8;de.pdf)
                                            [2023-06-14 Referat af bestyrelsesmøde.pdf](https://www.boligfa.dk/p/Files/Boligdata/Dokumenter/Selskabsdokumenter/Sel.%201/Referat%20af%20organisationsbestyrelsesm&#xF8;der/2023-06-14-Referat-af-bestyrelsesm&#xF8;de.pdf)
                                            [2023-04-26 Referat af bestyrelsesmøde.pdf](https://www.boligfa.dk/p/Files/Boligdata/Dokumenter/Selskabsdokumenter/Sel.%201/Referat%20af%20organisationsbestyrelsesm&#xF8;der/2023-04-26-Referat-af-bestyrelsesm&#xF8;de.pdf)
                                            [2023-02-01 Referat af bestyrelsesmøde.pdf](https://www.boligfa.dk/p/Files/Boligdata/Dokumenter/Selskabsdokumenter/Sel.%201/Referat%20af%20organisationsbestyrelsesm&#xF8;der/2023-02-01-Referat-af-bestyrelsesm&#xF8;de.pdf)
                                            [2022-12-07 Referat af bestyrelsesmøde.pdf](https://www.boligfa.dk/p/Files/Boligdata/Dokumenter/Selskabsdokumenter/Sel.%201/Referat%20af%20organisationsbestyrelsesm&#xF8;der/2022-12-07-Referat-af-bestyrelsesm&#xF8;de.pdf)
                                            [2022-10-12 Referat af bestyrelsesmøde.pdf](https://www.boligfa.dk/p/Files/Boligdata/Dokumenter/Selskabsdokumenter/Sel.%201/Referat%20af%20organisationsbestyrelsesm&#xF8;der/2022-10-12-Referat-af-bestyrelsesm&#xF8;de.pdf)
                                            [2022-08-31 Referat af bestyrelsesmøde.pdf](https://www.boligfa.dk/p/Files/Boligdata/Dokumenter/Selskabsdokumenter/Sel.%201/Referat%20af%20organisationsbestyrelsesm&#xF8;der/2022-08-31-Referat-af-bestyrelsesm&#xF8;de.pdf)
                                            [2022-06-22 Referat af bestyrelsesmøde.pdf](https://www.boligfa.dk/p/Files/Boligdata/Dokumenter/Selskabsdokumenter/Sel.%201/Referat%20af%20organisationsbestyrelsesm&#xF8;der/2022-06-22-Referat-af-bestyrelsesm&#xF8;de.pdf)
                                            [2022-04-26 Referat af bestyrelsesmøde.pdf](https://www.boligfa.dk/p/Files/Boligdata/Dokumenter/Selskabsdokumenter/Sel.%201/Referat%20af%20organisationsbestyrelsesm&#xF8;der/2022-04-26-Referat-af-bestyrelsesm&#xF8;de.pdf)
                                            [2022-02-02 Referat af bestyrelsesmøde.pdf](https://www.boligfa.dk/p/Files/Boligdata/Dokumenter/Selskabsdokumenter/Sel.%201/Referat%20af%20organisationsbestyrelsesm&#xF8;der/2022-02-02-Referat-af-bestyrelsesm&#xF8;de.pdf)
                                            [2021-12-08 Referat af bestyrelsesmøde.pdf](https://www.boligfa.dk/p/Files/Boligdata/Dokumenter/Selskabsdokumenter/Sel.%201/Referat%20af%20organisationsbestyrelsesm&#xF8;der/2021-12-08-Referat-af-bestyrelsesm&#xF8;de.pdf)
                                            [2021-10-13 Referat af bestyrelsesmøde.pdf](https://www.boligfa.dk/p/Files/Boligdata/Dokumenter/Selskabsdokumenter/Sel.%201/Referat%20af%20organisationsbestyrelsesm&#xF8;der/2021-10-13-Referat-af-bestyrelsesm&#xF8;de.pdf)
                                            [2021-09-01 Referat af bestyrelsesmøde.pdf](https://www.boligfa.dk/p/Files/Boligdata/Dokumenter/Selskabsdokumenter/Sel.%201/Referat%20af%20organisationsbestyrelsesm&#xF8;der/2021-09-01-Referat-af-bestyrelsesm&#xF8;de.pdf)
                                            [2021-06-24 Referat af bestyrelsesmøde.pdf](https://www.boligfa.dk/p/Files/Boligdata/Dokumenter/Selskabsdokumenter/Sel.%201/Referat%20af%20organisationsbestyrelsesm&#xF8;der/2021-06-24-Referat-af-bestyrelsesm&#xF8;de.pdf)
                                            [2021-04-28 Referat af bestyrelsesmøde.pdf](https://www.boligfa.dk/p/Files/Boligdata/Dokumenter/Selskabsdokumenter/Sel.%201/Referat%20af%20organisationsbestyrelsesm&#xF8;der/2021-04-28-Referat-af-bestyrelsesm&#xF8;de.pdf)
                                            [2021-02-24 Referat af bestyrelsesmøde.pdf](https://www.boligfa.dk/p/Files/Boligdata/Dokumenter/Selskabsdokumenter/Sel.%201/Referat%20af%20organisationsbestyrelsesm&#xF8;der/2021-02-24-Referat-af-bestyrelsesm&#xF8;de.pdf)

###

                                                Referat af repræsentantskabsmøder

[2025-05-28 Referat af repræsentantskabsmøde.pdf](https://www.boligfa.dk/p/Files/Boligdata/Dokumenter/Selskabsdokumenter/Sel.%201/Referat%20af%20repr&#xE6;sentantskabsm&#xF8;der/2025-05-28-Referat-af-repr&#xE6;sentantskabsm&#xF8;de.pdf)
                                            [2024-11-27 Referat af ekstraordinært repræsentantskabsmøde.pdf](https://www.boligfa.dk/p/Files/Boligdata/Dokumenter/Selskabsdokumenter/Sel.%201/Referat%20af%20repr&#xE6;sentantskabsm&#xF8;der/2024-11-27-Referat-af-ekstraordin&#xE6;rt-repr&#xE6;sentantskabsm&#xF8;de.pdf)
                                            [2024-05-22 Referat af repræsentantskabsmøde.pdf](https://www.boligfa.dk/p/Files/Boligdata/Dokumenter/Selskabsdokumenter/Sel.%201/Referat%20af%20repr&#xE6;sentantskabsm&#xF8;der/2024-05-22-Referat-af-repr&#xE6;sentantskabsm&#xF8;de.pdf)
                                            [2023-12-12 Referat af ekstraordinært repræsentantskabsmøde.pdf](https://www.boligfa.dk/p/Files/Boligdata/Dokumenter/Selskabsdokumenter/Sel.%201/Referat%20af%20repr&#xE6;sentantskabsm&#xF8;der/2023-12-12-Referat-af-ekstraordin&#xE6;rt-repr&#xE6;sentantskabsm&#xF8;de.pdf)
                                            [2023-06-13 Referat af ekstraordinært repræsentantskabsmøde.pdf](https://www.boligfa.dk/p/Files/Boligdata/Dokumenter/Selskabsdokumenter/Sel.%201/Referat%20af%20repr&#xE6;sentantskabsm&#xF8;der/2023-06-13-Referat-af-ekstraordin&#xE6;rt-repr&#xE6;sentantskabsm&#xF8;de.pdf)
                                            [2023-05-24 Referat af repræsentantskabsmøde.pdf](https://www.boligfa.dk/p/Files/Boligdata/Dokumenter/Selskabsdokumenter/Sel.%201/Referat%20af%20repr&#xE6;sentantskabsm&#xF8;der/2023-05-24-Referat-af-repr&#xE6;sentantskabsm&#xF8;de.pdf)
                                            [2022-06-09 Referat af ekstraordinært repræsentantskabsmøde.pdf](https://www.boligfa.dk/p/Files/Boligdata/Dokumenter/Selskabsdokumenter/Sel.%201/Referat%20af%20repr&#xE6;sentantskabsm&#xF8;der/2022-06-09-Referat-af-ekstraordin&#xE6;rt-repr&#xE6;sentantskabsm&#xF8;de.pdf)
                                            [2022-05-18 Referat af repræsentantskabsmøde.pdf](https://www.boligfa.dk/p/Files/Boligdata/Dokumenter/Selskabsdokumenter/Sel.%201/Referat%20af%20repr&#xE6;sentantskabsm&#xF8;der/2022-05-18-Referat-af-repr&#xE6;sentantskabsm&#xF8;de.pdf)
                                            [2022-05-18 Forslag til vedtægsændringer.pdf](https://www.boligfa.dk/p/Files/Boligdata/Dokumenter/Selskabsdokumenter/Sel.%201/Referat%20af%20repr&#xE6;sentantskabsm&#xF8;der/2022-05-18-Forslag-til-vedt&#xE6;gs&#xE6;ndringer.pdf)
                                            [2021-10-27 Referat af ekstraordinært repræsentantskabsmøde.pdf](https://www.boligfa.dk/p/Files/Boligdata/Dokumenter/Selskabsdokumenter/Sel.%201/Referat%20af%20repr&#xE6;sentantskabsm&#xF8;der/2021-10-27-Referat-af-ekstraordin&#xE6;rt-repr&#xE6;sentantskabsm&#xF8;de.pdf)
                                            [2021-06-21 Referat af repræsentantskabsmøde.pdf](https://www.boligfa.dk/p/Files/Boligdata/Dokumenter/Selskabsdokumenter/Sel.%201/Referat%20af%20repr&#xE6;sentantskabsm&#xF8;der/2021-06-21-Referat-af-repr&#xE6;sentantskabsm&#xF8;de.pdf)

###

                                                Mødeindkaldelser organisationsbestyrelse

[2026-04-29 Dagsorden til bestyrelsesmøde.pdf](https://www.boligfa.dk/p/Files/Boligdata/Dokumenter/Selskabsdokumenter/Sel.%201/M&#xF8;deindkaldelser%20organisationsbestyrelse/2026-04-29-Dagsorden-til-bestyrelsesm&#xF8;de.pdf)
                                            [2026-01-28 Dagsorden til bestyrelsesmøde.pdf](https://www.boligfa.dk/p/Files/Boligdata/Dokumenter/Selskabsdokumenter/Sel.%201/M&#xF8;deindkaldelser%20organisationsbestyrelse/2026-01-28-Dagsorden-til-bestyrelsesm&#xF8;de.pdf)
                                            [2025-12-03-Dagsorden-til-bestyrelsesmøde.pdf](https://www.boligfa.dk/p/Files/Boligdata/Dokumenter/Selskabsdokumenter/Sel.%201/M&#xF8;deindkaldelser%20organisationsbestyrelse/2025-12-03-Dagsorden-til-bestyrelsesm&#xF8;de.pdf)
                                            [2025-10-22 Dagsorden til bestyrelsesmøde.pdf](https://www.boligfa.dk/p/Files/Boligdata/Dokumenter/Selskabsdokumenter/Sel.%201/M&#xF8;deindkaldelser%20organisationsbestyrelse/2025-10-22-Dagsorden-til-bestyrelsesm&#xF8;de.pdf)
                                            [2025-08-27 Dagsorden til bestyrelsesmøde.pdf](https://www.boligfa.dk/p/Files/Boligdata/Dokumenter/Selskabsdokumenter/Sel.%201/M&#xF8;deindkaldelser%20organisationsbestyrelse/2025-08-27-Dagsorden-til-bestyrelsesm&#xF8;de.pdf)
                                            [2025-06-11-Dagsorden-til-bestyrelsesmøde.pdf](https://www.boligfa.dk/p/Files/Boligdata/Dokumenter/Selskabsdokumenter/Sel.%201/M&#xF8;deindkaldelser%20organisationsbestyrelse/2025-06-11-Dagsorden-til-bestyrelsesm&#xF8;de.pdf)
                                            [2025-04-23 Dagsorden til bestyrelsesmøde.pdf](https://www.boligfa.dk/p/Files/Boligdata/Dokumenter/Selskabsdokumenter/Sel.%201/M&#xF8;deindkaldelser%20organisationsbestyrelse/2025-04-23-Dagsorden-til-bestyrelsesm&#xF8;de.pdf)
                                            [2025-01-29 Dagsorden til bestyrelsesmøde.pdf](https://www.boligfa.dk/p/Files/Boligdata/Dokumenter/Selskabsdokumenter/Sel.%201/M&#xF8;deindkaldelser%20organisationsbestyrelse/2025-01-29-Dagsorden-til-bestyrelsesm&#xF8;de.pdf)
                                            [2024-12-04 Dagsorden til bestyrelsesmøde.pdf](https://www.boligfa.dk/p/Files/Boligdata/Dokumenter/Selskabsdokumenter/Sel.%201/M&#xF8;deindkaldelser%20organisationsbestyrelse/2024-12-04-Dagsorden-til-bestyrelsesm&#xF8;de.pdf)
                                            [2024-10-22 Dagsorden til bestyrelsesmøde.pdf](https://www.boligfa.dk/p/Files/Boligdata/Dokumenter/Selskabsdokumenter/Sel.%201/M&#xF8;deindkaldelser%20organisationsbestyrelse/2024-10-22-Dagsorden-til-bestyrelsesm&#xF8;de.pdf)
                                            [2024-06-19 Dagsorden til bestyrelsesmøde.pdf](https://www.boligfa.dk/p/Files/Boligdata/Dokumenter/Selskabsdokumenter/Sel.%201/M&#xF8;deindkaldelser%20organisationsbestyrelse/2024-06-19-Dagsorden-til-bestyrelsesm&#xF8;de.pdf)
                                            [2024-04-24 Dagsorden til bestyrelsesmøde.pdf](https://www.boligfa.dk/p/Files/Boligdata/Dokumenter/Selskabsdokumenter/Sel.%201/M&#xF8;deindkaldelser%20organisationsbestyrelse/2024-04-24-Dagsorden-til-bestyrelsesm&#xF8;de.pdf)
                                            [2024-02-07 Dagsorden til bestyrelsesmøde.pdf](https://www.boligfa.dk/p/Files/Boligdata/Dokumenter/Selskabsdokumenter/Sel.%201/M&#xF8;deindkaldelser%20organisationsbestyrelse/2024-02-07-Dagsorden-til-bestyrelsesm&#xF8;de.pdf)
                                            [2023-10-11 Dagsorden til bestyrelsesmøde.pdf](https://www.boligfa.dk/p/Files/Boligdata/Dokumenter/Selskabsdokumenter/Sel.%201/M&#xF8;deindkaldelser%20organisationsbestyrelse/2023-10-11-Dagsorden-til-bestyrelsesm&#xF8;de.pdf)
                                            [2023-08-23 Dagsorden til bestyrelsesmøde.pdf](https://www.boligfa.dk/p/Files/Boligdata/Dokumenter/Selskabsdokumenter/Sel.%201/M&#xF8;deindkaldelser%20organisationsbestyrelse/2023-08-23-Dagsorden-til-bestyrelsesm&#xF8;de.pdf)
                                            [2023-06-14 Dagsorden til bestyrelsesmøde.pdf](https://www.boligfa.dk/p/Files/Boligdata/Dokumenter/Selskabsdokumenter/Sel.%201/M&#xF8;deindkaldelser%20organisationsbestyrelse/2023-06-14-Dagsorden-til-bestyrelsesm&#xF8;de.pdf)
                                            [2023-04-26 Dagsorden til bestyrelsesmøde.pdf](https://www.boligfa.dk/p/Files/Boligdata/Dokumenter/Selskabsdokumenter/Sel.%201/M&#xF8;deindkaldelser%20organisationsbestyrelse/2023-04-26-Dagsorden-til-bestyrelsesm&#xF8;de.pdf)
                                            [2023-02-01 Dagsorden til bestyrelsesmøde.pdf](https://www.boligfa.dk/p/Files/Boligdata/Dokumenter/Selskabsdokumenter/Sel.%201/M&#xF8;deindkaldelser%20organisationsbestyrelse/2023-02-01-Dagsorden-til-bestyrelsesm&#xF8;de.pdf)
                                            [2022-12-07 Dagsorden til bestyrelsesmøde.pdf](https://www.boligfa.dk/p/Files/Boligdata/Dokumenter/Selskabsdokumenter/Sel.%201/M&#xF8;deindkaldelser%20organisationsbestyrelse/2022-12-07-Dagsorden-til-bestyrelsesm&#xF8;de.pdf)
                                            [2022-10-12 Dagsorden til bestyrelsesmøde.pdf](https://www.boligfa.dk/p/Files/Boligdata/Dokumenter/Selskabsdokumenter/Sel.%201/M&#xF8;deindkaldelser%20organisationsbestyrelse/2022-10-12-Dagsorden-til-bestyrelsesm&#xF8;de.pdf)
                                            [2022-08-31 Dagsorden til bestyrelsesmøde.pdf](https://www.boligfa.dk/p/Files/Boligdata/Dokumenter/Selskabsdokumenter/Sel.%201/M&#xF8;deindkaldelser%20organisationsbestyrelse/2022-08-31-Dagsorden-til-bestyrelsesm&#xF8;de.pdf)
                                            [2022-06-22 Dagsorden til bestyrelsesmøde.pdf](https://www.boligfa.dk/p/Files/Boligdata/Dokumenter/Selskabsdokumenter/Sel.%201/M&#xF8;deindkaldelser%20organisationsbestyrelse/2022-06-22-Dagsorden-til-bestyrelsesm&#xF8;de.pdf)
                                            [2022-04-26 Dagsorden til bestyrelsesmøde.pdf](https://www.boligfa.dk/p/Files/Boligdata/Dokumenter/Selskabsdokumenter/Sel.%201/M&#xF8;deindkaldelser%20organisationsbestyrelse/2022-04-26-Dagsorden-til-bestyrelsesm&#xF8;de.pdf)
                                            [2022-02-02 Dagsorden til bestyrelsesmøde.pdf](https://www.boligfa.dk/p/Files/Boligdata/Dokumenter/Selskabsdokumenter/Sel.%201/M&#xF8;deindkaldelser%20organisationsbestyrelse/2022-02-02-Dagsorden-til-bestyrelsesm&#xF8;de.pdf)
                                            [2021-12-08 Dagsorden til bestyrelsesmøde.pdf](https://www.boligfa.dk/p/Files/Boligdata/Dokumenter/Selskabsdokumenter/Sel.%201/M&#xF8;deindkaldelser%20organisationsbestyrelse/2021-12-08-Dagsorden-til-bestyrelsesm&#xF8;de.pdf)
                                            [2021-10-13 Dagsorden til bestyrelsesmøde.pdf](https://www.boligfa.dk/p/Files/Boligdata/Dokumenter/Selskabsdokumenter/Sel.%201/M&#xF8;deindkaldelser%20organisationsbestyrelse/2021-10-13-Dagsorden-til-bestyrelsesm&#xF8;de.pdf)
                                            [2021-09-01 Dagsorden til bestyrelsesmøde.pdf](https://www.boligfa.dk/p/Files/Boligdata/Dokumenter/Selskabsdokumenter/Sel.%201/M&#xF8;deindkaldelser%20organisationsbestyrelse/2021-09-01-Dagsorden-til-bestyrelsesm&#xF8;de.pdf)
                                            [2021-02-24 Dagsorden til bestyrelsesmøde.pdf](https://www.boligfa.dk/p/Files/Boligdata/Dokumenter/Selskabsdokumenter/Sel.%201/M&#xF8;deindkaldelser%20organisationsbestyrelse/2021-02-24-Dagsorden-til-bestyrelsesm&#xF8;de.pdf)

###

                                                Mødeindkaldelser repræsentantskabsmøder

[2026-05-27 Indkaldelse til repræsentantskabsmøde.pdf](https://www.boligfa.dk/p/Files/Boligdata/Dokumenter/Selskabsdokumenter/Sel.%201/M&#xF8;deindkaldelser%20repr&#xE6;sentantskabsm&#xF8;der/2026-05-27-Indkaldelse-til-repr&#xE6;sentantskabsm&#xF8;de.pdf)
                                            [2025-05-28-Indkaldelse-til-repræsentantskabsmøde.pdf](https://www.boligfa.dk/p/Files/Boligdata/Dokumenter/Selskabsdokumenter/Sel.%201/M&#xF8;deindkaldelser%20repr&#xE6;sentantskabsm&#xF8;der/2025-05-28-Indkaldelse-til-repr&#xE6;sentantskabsm&#xF8;de.pdf)
                                            [2025-05-28 Indkaldelse (ny adresse) til repræsentantskabsmøde.pdf](https://www.boligfa.dk/p/Files/Boligdata/Dokumenter/Selskabsdokumenter/Sel.%201/M&#xF8;deindkaldelser%20repr&#xE6;sentantskabsm&#xF8;der/2025-05-28-Indkaldelse--ny-adresse--til-repr&#xE6;sentantskabsm&#xF8;de.pdf)
                                            [2025-05-28 Dagsorden til repræsentantskabsmødet.pdf](https://www.boligfa.dk/p/Files/Boligdata/Dokumenter/Selskabsdokumenter/Sel.%201/M&#xF8;deindkaldelser%20repr&#xE6;sentantskabsm&#xF8;der/2025-05-28-Dagsorden-til-repr&#xE6;sentantskabsm&#xF8;det.pdf)
                                            [2024-11-27 Indkaldelse til ekstraordinært repræsentantskabsmøde.pdf](https://www.boligfa.dk/p/Files/Boligdata/Dokumenter/Selskabsdokumenter/Sel.%201/M&#xF8;deindkaldelser%20repr&#xE6;sentantskabsm&#xF8;der/2024-11-27-Indkaldelse-til-ekstraordin&#xE6;rt-repr&#xE6;sentantskabsm&#xF8;de.pdf)
                                            [2024-11-27 Dagsorden til ekstraordinært repræsentantskabsmøde.pdf](https://www.boligfa.dk/p/Files/Boligdata/Dokumenter/Selskabsdokumenter/Sel.%201/M&#xF8;deindkaldelser%20repr&#xE6;sentantskabsm&#xF8;der/2024-11-27-Dagsorden-til-ekstraordin&#xE6;rt-repr&#xE6;sentantskabsm&#xF8;de.pdf)
                                            [2024-05-22 Indkaldelse til repræsentantskabsmøde.pdf](https://www.boligfa.dk/p/Files/Boligdata/Dokumenter/Selskabsdokumenter/Sel.%201/M&#xF8;deindkaldelser%20repr&#xE6;sentantskabsm&#xF8;der/2024-05-22-Indkaldelse-til-repr&#xE6;sentantskabsm&#xF8;de.pdf)
                                            [2023-06-13 Indkaldelse til ekstraordinært repræsentantskabsmøde.pdf](https://www.boligfa.dk/p/Files/Boligdata/Dokumenter/Selskabsdokumenter/Sel.%201/M&#xF8;deindkaldelser%20repr&#xE6;sentantskabsm&#xF8;der/2023-06-13-Indkaldelse-til-ekstraordin&#xE6;rt-repr&#xE6;sentantskabsm&#xF8;de.pdf)
                                            [2023-05-24 Indkaldelse til repræsentantskabsmøde.pdf](https://www.boligfa.dk/p/Files/Boligdata/Dokumenter/Selskabsdokumenter/Sel.%201/M&#xF8;deindkaldelser%20repr&#xE6;sentantskabsm&#xF8;der/2023-05-24-Indkaldelse-til-repr&#xE6;sentantskabsm&#xF8;de.pdf)
                                            [2022-06-09 Ny dagsorden til ekstraordinært repræsentantskabsmøde.pdf](https://www.boligfa.dk/p/Files/Boligdata/Dokumenter/Selskabsdokumenter/Sel.%201/M&#xF8;deindkaldelser%20repr&#xE6;sentantskabsm&#xF8;der/2022-06-09-Ny-dagsorden-til-ekstraordin&#xE6;rt-repr&#xE6;sentantskabsm&#xF8;de.pdf)
                                            [2022-06-09 Indkaldelse til ekstraordinært repræsentantskabsmøde.pdf](https://www.boligfa.dk/p/Files/Boligdata/Dokumenter/Selskabsdokumenter/Sel.%201/M&#xF8;deindkaldelser%20repr&#xE6;sentantskabsm&#xF8;der/2022-06-09-Indkaldelse-til-ekstraordin&#xE6;rt-repr&#xE6;sentantskabsm&#xF8;de.pdf)
                                            [2022-05-18 Indkaldelse til repræsentantskabsmøde.pdf.pdf](https://www.boligfa.dk/p/Files/Boligdata/Dokumenter/Selskabsdokumenter/Sel.%201/M&#xF8;deindkaldelser%20repr&#xE6;sentantskabsm&#xF8;der/2022-05-18-Indkaldelse-til-repr&#xE6;sentantskabsm&#xF8;de.pdf.pdf)
                                            [2022-05-18 Indkaldelse til repræsentantskabsmøde.pdf](https://www.boligfa.dk/p/Files/Boligdata/Dokumenter/Selskabsdokumenter/Sel.%201/M&#xF8;deindkaldelser%20repr&#xE6;sentantskabsm&#xF8;der/2022-05-18-Indkaldelse-til-repr&#xE6;sentantskabsm&#xF8;de.pdf)
                                            [2021-10-27 Indkaldelse til ekstraordinært repræsentantskabsmøde.pdf](https://www.boligfa.dk/p/Files/Boligdata/Dokumenter/Selskabsdokumenter/Sel.%201/M&#xF8;deindkaldelser%20repr&#xE6;sentantskabsm&#xF8;der/2021-10-27-Indkaldelse-til-ekstraordin&#xE6;rt-repr&#xE6;sentantskabsm&#xF8;de.pdf)
                                            [2021-06-21 Indkaldelse til repræsentantskabsmøde.pdf](https://www.boligfa.dk/p/Files/Boligdata/Dokumenter/Selskabsdokumenter/Sel.%201/M&#xF8;deindkaldelser%20repr&#xE6;sentantskabsm&#xF8;der/2021-06-21-Indkaldelse-til-repr&#xE6;sentantskabsm&#xF8;de.pdf)

###

                                                Regnskaber

[2025 Regnskab Boligkontoret Fredericia.pdf](https://www.boligfa.dk/p/Files/Boligdata/Dokumenter/Selskabsdokumenter/Sel.%201/Regnskaber/2025-Regnskab-Boligkontoret-Fredericia.pdf)
                                            [2024 Regnskab Boligkontoret Fredericia.pdf](https://www.boligfa.dk/p/Files/Boligdata/Dokumenter/Selskabsdokumenter/Sel.%201/Regnskaber/2024-Regnskab-Boligkontoret-Fredericia.pdf)
                                            [2023 Regnskab Boligkontoret Fredericia.pdf](https://www.boligfa.dk/p/Files/Boligdata/Dokumenter/Selskabsdokumenter/Sel.%201/Regnskaber/2023-Regnskab-Boligkontoret-Fredericia.pdf)
                                            [2022 Regnskab Boligkontoret Fredericia.pdf](https://www.boligfa.dk/p/Files/Boligdata/Dokumenter/Selskabsdokumenter/Sel.%201/Regnskaber/2022-Regnskab-Boligkontoret-Fredericia.pdf)
                                            [2021 Regnskab Boligkontoret Fredercia.pdf](https://www.boligfa.dk/p/Files/Boligdata/Dokumenter/Selskabsdokumenter/Sel.%201/Regnskaber/2021-Regnskab-Boligkontoret-Fredercia.pdf)
                                            [2020 Regnskab Boligkontoret Fredericia.pdf](https://www.boligfa.dk/p/Files/Boligdata/Dokumenter/Selskabsdokumenter/Sel.%201/Regnskaber/2020-Regnskab-Boligkontoret-Fredericia.pdf)
                                            [2019 Regnskab Boligkontoret Fredericia.pdf](https://www.boligfa.dk/p/Files/Boligdata/Dokumenter/Selskabsdokumenter/Sel.%201/Regnskaber/2019-Regnskab-Boligkontoret-Fredericia.pdf)

###

                                                Vedtægter

[Vedtægter for Boligkontoret Fredericia.pdf](https://www.boligfa.dk/p/Files/Boligdata/Dokumenter/Selskabsdokumenter/Sel.%201/Vedt&#xE6;gter/Vedt&#xE6;gter-for-Boligkontoret-Fredericia.pdf)
