---
title: "Ved Landsoldaten"
description: "1-602"
date: "2026-03-02"
created: "2025-09-17"
---

-
-
-
-
-
-

https://maps.google.dk/?q=55.56776,9.7538804

# Ved Landsoldaten

Afdeling 602

## Velkommen til Ved Landsoldaten

Ved Landsoldaten 1AB, stuen lejl. 1 - 10, 1. sal lejl. 11 - 24, 2. sal lejl. 25 - 28, 3. Opførelsesår 2017.

Afdelingen består udelukkende af seniorboliger og er opført i den gamle tobaksfabrik i hjertet af Fredericia, som er omdannet til en smuk boligkarré med et dejligt gårdmiljø.

Boligerne har udsigt til Landsoldaten og det historiske voldanlæg og med indgang til kommunens aktivitetscenter fra gårdmiljøet.

Der kan søges indskudslån.

## Fakta for afdelingen

Vaskeri

Ja

Der er adgang til fælles vaskeri i I.P. Schidts gård - det afhænger af at Fredericia Kommune fortsat, stiller fælles vaskeri til rådighed, og kan ikke garanteres at fortsætte.

Elevator

Ja

Der er elevator i gårdmiljøet fra stueplan til 2. sal

Hårde hvidevarer

Læs mere

Se i afdelingens vedligeholdelsesreglement, hvilke hårde hvidevarer der er i boligerne. Det fremgår under punktet "Boligernes standard ved indflytning "

TV

Læs mere

Beboere i denne afdeling får særlige priser på deres fiberbredbånd hos EWII. Læs mere på https://www.ewii.dk/privat/internet/boligforening/ eller kontakt EWII kundeservice på 7055 5555. Oplys at du er lejer hos Boligkontoret Fredericia. (Der kan være enkelte adresser der ikke kan leveres til / samt leveringstid)

Energimærkning

Læs mere

E

Festlokale

Ja

Afdelingen har 1 gæsteværelse

Have

Nej

Altan

Ja

Der er ikke altaner til boligerne, men svalegang på 1. og 2. sal

Husdyr

Nej

Forbrug

Læs mere

Der betales a/c el, varme og vand til Boligkontoret.

Bi-lejemål

Ja

Der tilhører kælderrum til hver bolig.16 P-pladser i kælderen kan lejes.Opskrivning på ventelisten - kontakt administrationen

Ladestander

Nej

                        Se flere

## Boligtyper i afdelingen

Almindelig bolig

2 værelses

boliger

Almindelig bolig

3 værelses

boliger

Boligtype

Værelser

Størrelse

Husleje

Indskud/dp

Plantegning

Almindelig bolig

2

66 m²

6042 kr.

25791 kr.

![](https://www.boligfa.dk/i/MOLIRIMEDIA/b54093f8-4baf-44af-d7c3-08dcfd846118?width=800)

Almindelig bolig

2

80 m²

7323 kr.

31259 kr.

![](https://www.boligfa.dk/i/MOLIRIMEDIA/8a649c46-6bb3-4cd2-d6db-08dcfd846118?width=800)

Almindelig bolig

2

83 m²

7597 kr.

34431 kr.

![](https://www.boligfa.dk/i/MOLIRIMEDIA/717c5794-973d-4177-d372-08dcfd846118?width=800)

Almindelig bolig

2

69 m²

6318 kr.

26963 kr.

![](https://www.boligfa.dk/i/MOLIRIMEDIA/3cee527f-4449-47ee-d399-08dcfd846118?width=800)

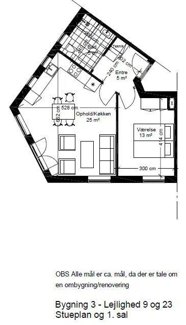
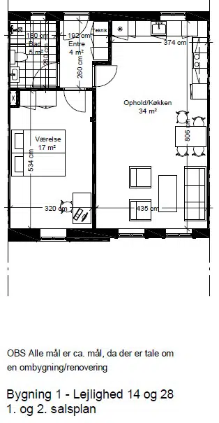
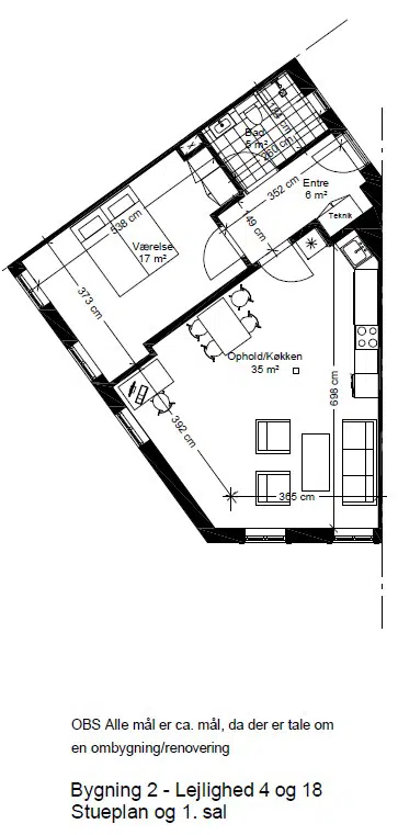
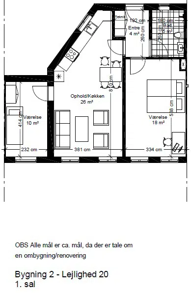
Almindelig bolig

3

87 m²

7964 kr.

33993 kr.

![](https://www.boligfa.dk/i/MOLIRIMEDIA/6f77d000-d269-4375-d800-08dcfd846118?width=800)

Almindelig bolig

3

108 m²

9882 kr.

42196 kr.

![](https://www.boligfa.dk/i/MOLIRIMEDIA/9591ccdb-431a-404e-d453-08dcfd846118?width=800)

## Afdelingsdokumenter

Her finder du nyttig information om din afdeling, såsom husorden, vedligeholdelse af dit lejemål, eller referater fra hovedbestyrelsen.

###

                                                Brugervejledninger

[Brugervejledning afd. 602.pdf](https://www.boligfa.dk/p/Files/Boligdata/Dokumenter/Afd%2001%20602/Brugervejledninger/Brugervejledning-afd.-602.pdf)
                                            [Brugervejledning 26-09-2025 afd. 602.pdf](https://www.boligfa.dk/p/Files/Boligdata/Dokumenter/Afd%2001%20602/Brugervejledninger/Brugervejledning-26-09-2025-afd.-602.pdf)

###

                                                Mødeindkaldelser

[2025-08-18 Indkaldelse til afdelingsmøde i afd. 602 Ved Landsoldaten.pdf](https://www.boligfa.dk/p/Files/Boligdata/Dokumenter/Afd%2001%20602/M&#xF8;deindkaldelser/2025-08-18-Indkaldelse-til-afdelingsm&#xF8;de-i-afd.-602-Ved-Landsoldaten.pdf)
                                            [2024-08-20 Indkaldelse til afdelingsmøde afd. 602.pdf](https://www.boligfa.dk/p/Files/Boligdata/Dokumenter/Afd%2001%20602/M&#xF8;deindkaldelser/2024-08-20-Indkaldelse-til-afdelingsm&#xF8;de-afd.-602.pdf)
                                            [2023-08-21 Indkaldelse til afdelingsmøde afd. 602.pdf](https://www.boligfa.dk/p/Files/Boligdata/Dokumenter/Afd%2001%20602/M&#xF8;deindkaldelser/2023-08-21-Indkaldelse-til-afdelingsm&#xF8;de-afd.-602.pdf)
                                            [2022-08-22 Indkaldelse til afdelingsmøde afd. 602.pdf](https://www.boligfa.dk/p/Files/Boligdata/Dokumenter/Afd%2001%20602/M&#xF8;deindkaldelser/2022-08-22-Indkaldelse-til-afdelingsm&#xF8;de-afd.-602.pdf)
                                            [2021-08-24 Indkaldelsetil afdelingsmøde afd. 602.pdf](https://www.boligfa.dk/p/Files/Boligdata/Dokumenter/Afd%2001%20602/M&#xF8;deindkaldelser/2021-08-24-Indkaldelsetil-afdelingsm&#xF8;de-afd.-602.pdf)
                                            [2021-08-24 Indkaldelse til afdelingsmøde afd. 602.pdf](https://www.boligfa.dk/p/Files/Boligdata/Dokumenter/Afd%2001%20602/M&#xF8;deindkaldelser/2021-08-24-Indkaldelse-til-afdelingsm&#xF8;de-afd.-602.pdf)

###

                                                Reglementer

[Vedligeholdelsesreglement 21-08-2023 afd. 602.pdf](https://www.boligfa.dk/p/Files/Boligdata/Dokumenter/Afd%2001%20602/Reglementer/Vedligeholdelsesreglement-21-08-2023-afd.-602.pdf)
                                            [Råderetskatalog 21-08-2023 afd. 602.pdf](https://www.boligfa.dk/p/Files/Boligdata/Dokumenter/Afd%2001%20602/Reglementer/R&#xE5;deretskatalog-21-08-2023-afd.-602.pdf)
                                            [Husorden 21-08-2023 afd. 602.pdf](https://www.boligfa.dk/p/Files/Boligdata/Dokumenter/Afd%2001%20602/Reglementer/Husorden-21-08-2023-afd.-602.pdf)

###

                                                Mødereferater

[2025-08-18 Referat af afdelingsmøde afd. 602 Ved Landsoldaten.pdf](https://www.boligfa.dk/p/Files/Boligdata/Dokumenter/Afd%2001%20602/M&#xF8;dereferater/2025-08-18-Referat-af-afdelingsm&#xF8;de-afd.-602-Ved-Landsoldaten.pdf)
                                            [2024-08-20 Referat af afdelingsmøde afd. 602.pdf](https://www.boligfa.dk/p/Files/Boligdata/Dokumenter/Afd%2001%20602/M&#xF8;dereferater/2024-08-20-Referat-af-afdelingsm&#xF8;de-afd.-602.pdf)
                                            [2023-08-21 Referat af afdelingsmøde afd. 602.pdf](https://www.boligfa.dk/p/Files/Boligdata/Dokumenter/Afd%2001%20602/M&#xF8;dereferater/2023-08-21-Referat-af-afdelingsm&#xF8;de-afd.-602.pdf)
                                            [2022-08-22 Referat af afdelingsmøde afd. 602.pdf](https://www.boligfa.dk/p/Files/Boligdata/Dokumenter/Afd%2001%20602/M&#xF8;dereferater/2022-08-22-Referat-af-afdelingsm&#xF8;de-afd.-602.pdf)
                                            [2021-08-24 Referat af afdelingsmøde afd. 602.pdf](https://www.boligfa.dk/p/Files/Boligdata/Dokumenter/Afd%2001%20602/M&#xF8;dereferater/2021-08-24-Referat-af-afdelingsm&#xF8;de-afd.-602.pdf)

###

                                                Regnskaber

[2025 Regnskab afd. 602.pdf](https://www.boligfa.dk/p/Files/Boligdata/Dokumenter/Afd%2001%20602/Regnskaber/2025-Regnskab-afd.-602.pdf)
                                            [2024 Regnskab afd. 602.pdf](https://www.boligfa.dk/p/Files/Boligdata/Dokumenter/Afd%2001%20602/Regnskaber/2024-Regnskab-afd.-602.pdf)
                                            [2023 Regnskab afd. 602.pdf](https://www.boligfa.dk/p/Files/Boligdata/Dokumenter/Afd%2001%20602/Regnskaber/2023-Regnskab-afd.-602.pdf)
                                            [2022 Regnskab afd. 602.pdf](https://www.boligfa.dk/p/Files/Boligdata/Dokumenter/Afd%2001%20602/Regnskaber/2022-Regnskab-afd.-602.pdf)
                                            [2021 Regnskab afd. 602.pdf](https://www.boligfa.dk/p/Files/Boligdata/Dokumenter/Afd%2001%20602/Regnskaber/2021-Regnskab-afd.-602.pdf)
                                            [2020 Regnskab afd. 602.pdf](https://www.boligfa.dk/p/Files/Boligdata/Dokumenter/Afd%2001%20602/Regnskaber/2020-Regnskab-afd.-602.pdf)
                                            [2019 Regnskab afd. 602.pdf](https://www.boligfa.dk/p/Files/Boligdata/Dokumenter/Afd%2001%20602/Regnskaber/2019-Regnskab-afd.-602.pdf)

## Afdelingsbestyrelse

Sophia Christensen

Formand

(18.08.2025 - 17.09.2027)

Birgit Vejsholt

Bestyrelsesmedlem

(18.08.2025 - 17.09.2027)

Gerda Nielsen

Bestyrelsesmedlem

(18.08.2025 - 17.09.2026)

Ruth Ina Jensen

1. Suppleant

(18.08.2025 - 17.09.2026)

Lis Carlsen

2. Suppleant

(18.08.2025 - 17.09.2026)

## Kontor

### Servicecenter

76221200

servicecenter@boligfa.dk

### Åbningstider

Mandag - torsdag fra kl. 7.00 - 15.00

Fredag fra kl. 7.00 - 13.00

## Ejendomsadresse

### Varmemesterkontor

Adresse:

Købmagergade 65C

7000 Fredericia

### Åbningstider

Personlig henvendelse mandag - fredag kl. 9.00 - 9.30

og mandag til torsdag kl. 12.00 - 12.30

## Inspektør

### Kaj Johansen

76221224

kjo@boligfa.dk

## Organisationsdokumenter

Her finder du referater og dagsordner fra hovedbestyrelsen.

###

                                                Referat af organisationsbestyrelsesmøder

[2026-04-29 Referat af bestyrelsesmøde.pdf](https://www.boligfa.dk/p/Files/Boligdata/Dokumenter/Selskabsdokumenter/Sel.%201/Referat%20af%20organisationsbestyrelsesm&#xF8;der/2026-04-29-Referat-af-bestyrelsesm&#xF8;de.pdf)
                                            [2026-04-09  Referat af ekstraordinært bestyrelsesmøde.pdf](https://www.boligfa.dk/p/Files/Boligdata/Dokumenter/Selskabsdokumenter/Sel.%201/Referat%20af%20organisationsbestyrelsesm&#xF8;der/2026-04-09--Referat-af-ekstraordin&#xE6;rt-bestyrelsesm&#xF8;de.pdf)
                                            [2026-01-28 Referat af bestyrelsesmøde.pdf](https://www.boligfa.dk/p/Files/Boligdata/Dokumenter/Selskabsdokumenter/Sel.%201/Referat%20af%20organisationsbestyrelsesm&#xF8;der/2026-01-28-referat-af-bestyrelsesm&#xF8;de.pdf)
                                            [2025-12-03-Referat-af-bestyrelsesmøde.pdf](https://www.boligfa.dk/p/Files/Boligdata/Dokumenter/Selskabsdokumenter/Sel.%201/Referat%20af%20organisationsbestyrelsesm&#xF8;der/2025-12-03-Referat-af-bestyrelsesm&#xF8;de.pdf)
                                            [2025-10-22 Referat af bestyrelsesmøde.pdf](https://www.boligfa.dk/p/Files/Boligdata/Dokumenter/Selskabsdokumenter/Sel.%201/Referat%20af%20organisationsbestyrelsesm&#xF8;der/2025-10-22-Referat-af-bestyrelsesm&#xF8;de.pdf)
                                            [2025-08-27 Referat af bestyrelsesmøde.pdf](https://www.boligfa.dk/p/Files/Boligdata/Dokumenter/Selskabsdokumenter/Sel.%201/Referat%20af%20organisationsbestyrelsesm&#xF8;der/2025-08-27-Referat-af-bestyrelsesm&#xF8;de.pdf)
                                            [2025-06-11 Referat af bestyrelsesmøde.pdf](https://www.boligfa.dk/p/Files/Boligdata/Dokumenter/Selskabsdokumenter/Sel.%201/Referat%20af%20organisationsbestyrelsesm&#xF8;der/2025-06-11-Referat-af-bestyrelsesm&#xF8;de.pdf)
                                            [2025-04-23 Referat af bestyrelsesmøde.pdf](https://www.boligfa.dk/p/Files/Boligdata/Dokumenter/Selskabsdokumenter/Sel.%201/Referat%20af%20organisationsbestyrelsesm&#xF8;der/2025-04-23-Referat-af-bestyrelsesm&#xF8;de.pdf)
                                            [2025-01-29 Referat af bestyrelsesmøde.pdf](https://www.boligfa.dk/p/Files/Boligdata/Dokumenter/Selskabsdokumenter/Sel.%201/Referat%20af%20organisationsbestyrelsesm&#xF8;der/2025-01-29-Referat-af-bestyrelsesm&#xF8;de.pdf)
                                            [2024-12-04 Referat af bestyrelsesmøde.pdf](https://www.boligfa.dk/p/Files/Boligdata/Dokumenter/Selskabsdokumenter/Sel.%201/Referat%20af%20organisationsbestyrelsesm&#xF8;der/2024-12-04-Referat-af-bestyrelsesm&#xF8;de.pdf)
                                            [2024-10-22 Referat af bestyrelsesmøde.pdf](https://www.boligfa.dk/p/Files/Boligdata/Dokumenter/Selskabsdokumenter/Sel.%201/Referat%20af%20organisationsbestyrelsesm&#xF8;der/2024-10-22-Referat-af-bestyrelsesm&#xF8;de.pdf)
                                            [2024-08-28 Referat af bestyrelsesmøde.pdf](https://www.boligfa.dk/p/Files/Boligdata/Dokumenter/Selskabsdokumenter/Sel.%201/Referat%20af%20organisationsbestyrelsesm&#xF8;der/2024-08-28-Referat-af-bestyrelsesm&#xF8;de.pdf)
                                            [2024-06-19 Referat af bestyrelsesmøde.pdf](https://www.boligfa.dk/p/Files/Boligdata/Dokumenter/Selskabsdokumenter/Sel.%201/Referat%20af%20organisationsbestyrelsesm&#xF8;der/2024-06-19-Referat-af-bestyrelsesm&#xF8;de.pdf)
                                            [2024-04-24 Referat af bestyrelsesmøde.pdf](https://www.boligfa.dk/p/Files/Boligdata/Dokumenter/Selskabsdokumenter/Sel.%201/Referat%20af%20organisationsbestyrelsesm&#xF8;der/2024-04-24-Referat-af-bestyrelsesm&#xF8;de.pdf)
                                            [2024-02-07 Referat af bestyrelsesmøde.pdf](https://www.boligfa.dk/p/Files/Boligdata/Dokumenter/Selskabsdokumenter/Sel.%201/Referat%20af%20organisationsbestyrelsesm&#xF8;der/2024-02-07-Referat-af-bestyrelsesm&#xF8;de.pdf)
                                            [2023-12-06 Referat af bestyrelsesmøde.pdf](https://www.boligfa.dk/p/Files/Boligdata/Dokumenter/Selskabsdokumenter/Sel.%201/Referat%20af%20organisationsbestyrelsesm&#xF8;der/2023-12-06-Referat-af-bestyrelsesm&#xF8;de.pdf)
                                            [2023-10-11 Referat af bestyrelsesmøde.pdf](https://www.boligfa.dk/p/Files/Boligdata/Dokumenter/Selskabsdokumenter/Sel.%201/Referat%20af%20organisationsbestyrelsesm&#xF8;der/2023-10-11-Referat-af-bestyrelsesm&#xF8;de.pdf)
                                            [2023-08-23 Referat af bestyrelsesmøde.pdf](https://www.boligfa.dk/p/Files/Boligdata/Dokumenter/Selskabsdokumenter/Sel.%201/Referat%20af%20organisationsbestyrelsesm&#xF8;der/2023-08-23-Referat-af-bestyrelsesm&#xF8;de.pdf)
                                            [2023-06-14 Referat af bestyrelsesmøde.pdf](https://www.boligfa.dk/p/Files/Boligdata/Dokumenter/Selskabsdokumenter/Sel.%201/Referat%20af%20organisationsbestyrelsesm&#xF8;der/2023-06-14-Referat-af-bestyrelsesm&#xF8;de.pdf)
                                            [2023-04-26 Referat af bestyrelsesmøde.pdf](https://www.boligfa.dk/p/Files/Boligdata/Dokumenter/Selskabsdokumenter/Sel.%201/Referat%20af%20organisationsbestyrelsesm&#xF8;der/2023-04-26-Referat-af-bestyrelsesm&#xF8;de.pdf)
                                            [2023-02-01 Referat af bestyrelsesmøde.pdf](https://www.boligfa.dk/p/Files/Boligdata/Dokumenter/Selskabsdokumenter/Sel.%201/Referat%20af%20organisationsbestyrelsesm&#xF8;der/2023-02-01-Referat-af-bestyrelsesm&#xF8;de.pdf)
                                            [2022-12-07 Referat af bestyrelsesmøde.pdf](https://www.boligfa.dk/p/Files/Boligdata/Dokumenter/Selskabsdokumenter/Sel.%201/Referat%20af%20organisationsbestyrelsesm&#xF8;der/2022-12-07-Referat-af-bestyrelsesm&#xF8;de.pdf)
                                            [2022-10-12 Referat af bestyrelsesmøde.pdf](https://www.boligfa.dk/p/Files/Boligdata/Dokumenter/Selskabsdokumenter/Sel.%201/Referat%20af%20organisationsbestyrelsesm&#xF8;der/2022-10-12-Referat-af-bestyrelsesm&#xF8;de.pdf)
                                            [2022-08-31 Referat af bestyrelsesmøde.pdf](https://www.boligfa.dk/p/Files/Boligdata/Dokumenter/Selskabsdokumenter/Sel.%201/Referat%20af%20organisationsbestyrelsesm&#xF8;der/2022-08-31-Referat-af-bestyrelsesm&#xF8;de.pdf)
                                            [2022-06-22 Referat af bestyrelsesmøde.pdf](https://www.boligfa.dk/p/Files/Boligdata/Dokumenter/Selskabsdokumenter/Sel.%201/Referat%20af%20organisationsbestyrelsesm&#xF8;der/2022-06-22-Referat-af-bestyrelsesm&#xF8;de.pdf)
                                            [2022-04-26 Referat af bestyrelsesmøde.pdf](https://www.boligfa.dk/p/Files/Boligdata/Dokumenter/Selskabsdokumenter/Sel.%201/Referat%20af%20organisationsbestyrelsesm&#xF8;der/2022-04-26-Referat-af-bestyrelsesm&#xF8;de.pdf)
                                            [2022-02-02 Referat af bestyrelsesmøde.pdf](https://www.boligfa.dk/p/Files/Boligdata/Dokumenter/Selskabsdokumenter/Sel.%201/Referat%20af%20organisationsbestyrelsesm&#xF8;der/2022-02-02-Referat-af-bestyrelsesm&#xF8;de.pdf)
                                            [2021-12-08 Referat af bestyrelsesmøde.pdf](https://www.boligfa.dk/p/Files/Boligdata/Dokumenter/Selskabsdokumenter/Sel.%201/Referat%20af%20organisationsbestyrelsesm&#xF8;der/2021-12-08-Referat-af-bestyrelsesm&#xF8;de.pdf)
                                            [2021-10-13 Referat af bestyrelsesmøde.pdf](https://www.boligfa.dk/p/Files/Boligdata/Dokumenter/Selskabsdokumenter/Sel.%201/Referat%20af%20organisationsbestyrelsesm&#xF8;der/2021-10-13-Referat-af-bestyrelsesm&#xF8;de.pdf)
                                            [2021-09-01 Referat af bestyrelsesmøde.pdf](https://www.boligfa.dk/p/Files/Boligdata/Dokumenter/Selskabsdokumenter/Sel.%201/Referat%20af%20organisationsbestyrelsesm&#xF8;der/2021-09-01-Referat-af-bestyrelsesm&#xF8;de.pdf)
                                            [2021-06-24 Referat af bestyrelsesmøde.pdf](https://www.boligfa.dk/p/Files/Boligdata/Dokumenter/Selskabsdokumenter/Sel.%201/Referat%20af%20organisationsbestyrelsesm&#xF8;der/2021-06-24-Referat-af-bestyrelsesm&#xF8;de.pdf)
                                            [2021-04-28 Referat af bestyrelsesmøde.pdf](https://www.boligfa.dk/p/Files/Boligdata/Dokumenter/Selskabsdokumenter/Sel.%201/Referat%20af%20organisationsbestyrelsesm&#xF8;der/2021-04-28-Referat-af-bestyrelsesm&#xF8;de.pdf)
                                            [2021-02-24 Referat af bestyrelsesmøde.pdf](https://www.boligfa.dk/p/Files/Boligdata/Dokumenter/Selskabsdokumenter/Sel.%201/Referat%20af%20organisationsbestyrelsesm&#xF8;der/2021-02-24-Referat-af-bestyrelsesm&#xF8;de.pdf)

###

                                                Referat af repræsentantskabsmøder

[2025-05-28 Referat af repræsentantskabsmøde.pdf](https://www.boligfa.dk/p/Files/Boligdata/Dokumenter/Selskabsdokumenter/Sel.%201/Referat%20af%20repr&#xE6;sentantskabsm&#xF8;der/2025-05-28-Referat-af-repr&#xE6;sentantskabsm&#xF8;de.pdf)
                                            [2024-11-27 Referat af ekstraordinært repræsentantskabsmøde.pdf](https://www.boligfa.dk/p/Files/Boligdata/Dokumenter/Selskabsdokumenter/Sel.%201/Referat%20af%20repr&#xE6;sentantskabsm&#xF8;der/2024-11-27-Referat-af-ekstraordin&#xE6;rt-repr&#xE6;sentantskabsm&#xF8;de.pdf)
                                            [2024-05-22 Referat af repræsentantskabsmøde.pdf](https://www.boligfa.dk/p/Files/Boligdata/Dokumenter/Selskabsdokumenter/Sel.%201/Referat%20af%20repr&#xE6;sentantskabsm&#xF8;der/2024-05-22-Referat-af-repr&#xE6;sentantskabsm&#xF8;de.pdf)
                                            [2023-12-12 Referat af ekstraordinært repræsentantskabsmøde.pdf](https://www.boligfa.dk/p/Files/Boligdata/Dokumenter/Selskabsdokumenter/Sel.%201/Referat%20af%20repr&#xE6;sentantskabsm&#xF8;der/2023-12-12-Referat-af-ekstraordin&#xE6;rt-repr&#xE6;sentantskabsm&#xF8;de.pdf)
                                            [2023-06-13 Referat af ekstraordinært repræsentantskabsmøde.pdf](https://www.boligfa.dk/p/Files/Boligdata/Dokumenter/Selskabsdokumenter/Sel.%201/Referat%20af%20repr&#xE6;sentantskabsm&#xF8;der/2023-06-13-Referat-af-ekstraordin&#xE6;rt-repr&#xE6;sentantskabsm&#xF8;de.pdf)
                                            [2023-05-24 Referat af repræsentantskabsmøde.pdf](https://www.boligfa.dk/p/Files/Boligdata/Dokumenter/Selskabsdokumenter/Sel.%201/Referat%20af%20repr&#xE6;sentantskabsm&#xF8;der/2023-05-24-Referat-af-repr&#xE6;sentantskabsm&#xF8;de.pdf)
                                            [2022-06-09 Referat af ekstraordinært repræsentantskabsmøde.pdf](https://www.boligfa.dk/p/Files/Boligdata/Dokumenter/Selskabsdokumenter/Sel.%201/Referat%20af%20repr&#xE6;sentantskabsm&#xF8;der/2022-06-09-Referat-af-ekstraordin&#xE6;rt-repr&#xE6;sentantskabsm&#xF8;de.pdf)
                                            [2022-05-18 Referat af repræsentantskabsmøde.pdf](https://www.boligfa.dk/p/Files/Boligdata/Dokumenter/Selskabsdokumenter/Sel.%201/Referat%20af%20repr&#xE6;sentantskabsm&#xF8;der/2022-05-18-Referat-af-repr&#xE6;sentantskabsm&#xF8;de.pdf)
                                            [2022-05-18 Forslag til vedtægsændringer.pdf](https://www.boligfa.dk/p/Files/Boligdata/Dokumenter/Selskabsdokumenter/Sel.%201/Referat%20af%20repr&#xE6;sentantskabsm&#xF8;der/2022-05-18-Forslag-til-vedt&#xE6;gs&#xE6;ndringer.pdf)
                                            [2021-10-27 Referat af ekstraordinært repræsentantskabsmøde.pdf](https://www.boligfa.dk/p/Files/Boligdata/Dokumenter/Selskabsdokumenter/Sel.%201/Referat%20af%20repr&#xE6;sentantskabsm&#xF8;der/2021-10-27-Referat-af-ekstraordin&#xE6;rt-repr&#xE6;sentantskabsm&#xF8;de.pdf)
                                            [2021-06-21 Referat af repræsentantskabsmøde.pdf](https://www.boligfa.dk/p/Files/Boligdata/Dokumenter/Selskabsdokumenter/Sel.%201/Referat%20af%20repr&#xE6;sentantskabsm&#xF8;der/2021-06-21-Referat-af-repr&#xE6;sentantskabsm&#xF8;de.pdf)

###

                                                Mødeindkaldelser organisationsbestyrelse

[2026-04-29 Dagsorden til bestyrelsesmøde.pdf](https://www.boligfa.dk/p/Files/Boligdata/Dokumenter/Selskabsdokumenter/Sel.%201/M&#xF8;deindkaldelser%20organisationsbestyrelse/2026-04-29-Dagsorden-til-bestyrelsesm&#xF8;de.pdf)
                                            [2026-01-28 Dagsorden til bestyrelsesmøde.pdf](https://www.boligfa.dk/p/Files/Boligdata/Dokumenter/Selskabsdokumenter/Sel.%201/M&#xF8;deindkaldelser%20organisationsbestyrelse/2026-01-28-Dagsorden-til-bestyrelsesm&#xF8;de.pdf)
                                            [2025-12-03-Dagsorden-til-bestyrelsesmøde.pdf](https://www.boligfa.dk/p/Files/Boligdata/Dokumenter/Selskabsdokumenter/Sel.%201/M&#xF8;deindkaldelser%20organisationsbestyrelse/2025-12-03-Dagsorden-til-bestyrelsesm&#xF8;de.pdf)
                                            [2025-10-22 Dagsorden til bestyrelsesmøde.pdf](https://www.boligfa.dk/p/Files/Boligdata/Dokumenter/Selskabsdokumenter/Sel.%201/M&#xF8;deindkaldelser%20organisationsbestyrelse/2025-10-22-Dagsorden-til-bestyrelsesm&#xF8;de.pdf)
                                            [2025-08-27 Dagsorden til bestyrelsesmøde.pdf](https://www.boligfa.dk/p/Files/Boligdata/Dokumenter/Selskabsdokumenter/Sel.%201/M&#xF8;deindkaldelser%20organisationsbestyrelse/2025-08-27-Dagsorden-til-bestyrelsesm&#xF8;de.pdf)
                                            [2025-06-11-Dagsorden-til-bestyrelsesmøde.pdf](https://www.boligfa.dk/p/Files/Boligdata/Dokumenter/Selskabsdokumenter/Sel.%201/M&#xF8;deindkaldelser%20organisationsbestyrelse/2025-06-11-Dagsorden-til-bestyrelsesm&#xF8;de.pdf)
                                            [2025-04-23 Dagsorden til bestyrelsesmøde.pdf](https://www.boligfa.dk/p/Files/Boligdata/Dokumenter/Selskabsdokumenter/Sel.%201/M&#xF8;deindkaldelser%20organisationsbestyrelse/2025-04-23-Dagsorden-til-bestyrelsesm&#xF8;de.pdf)
                                            [2025-01-29 Dagsorden til bestyrelsesmøde.pdf](https://www.boligfa.dk/p/Files/Boligdata/Dokumenter/Selskabsdokumenter/Sel.%201/M&#xF8;deindkaldelser%20organisationsbestyrelse/2025-01-29-Dagsorden-til-bestyrelsesm&#xF8;de.pdf)
                                            [2024-12-04 Dagsorden til bestyrelsesmøde.pdf](https://www.boligfa.dk/p/Files/Boligdata/Dokumenter/Selskabsdokumenter/Sel.%201/M&#xF8;deindkaldelser%20organisationsbestyrelse/2024-12-04-Dagsorden-til-bestyrelsesm&#xF8;de.pdf)
                                            [2024-10-22 Dagsorden til bestyrelsesmøde.pdf](https://www.boligfa.dk/p/Files/Boligdata/Dokumenter/Selskabsdokumenter/Sel.%201/M&#xF8;deindkaldelser%20organisationsbestyrelse/2024-10-22-Dagsorden-til-bestyrelsesm&#xF8;de.pdf)
                                            [2024-06-19 Dagsorden til bestyrelsesmøde.pdf](https://www.boligfa.dk/p/Files/Boligdata/Dokumenter/Selskabsdokumenter/Sel.%201/M&#xF8;deindkaldelser%20organisationsbestyrelse/2024-06-19-Dagsorden-til-bestyrelsesm&#xF8;de.pdf)
                                            [2024-04-24 Dagsorden til bestyrelsesmøde.pdf](https://www.boligfa.dk/p/Files/Boligdata/Dokumenter/Selskabsdokumenter/Sel.%201/M&#xF8;deindkaldelser%20organisationsbestyrelse/2024-04-24-Dagsorden-til-bestyrelsesm&#xF8;de.pdf)
                                            [2024-02-07 Dagsorden til bestyrelsesmøde.pdf](https://www.boligfa.dk/p/Files/Boligdata/Dokumenter/Selskabsdokumenter/Sel.%201/M&#xF8;deindkaldelser%20organisationsbestyrelse/2024-02-07-Dagsorden-til-bestyrelsesm&#xF8;de.pdf)
                                            [2023-10-11 Dagsorden til bestyrelsesmøde.pdf](https://www.boligfa.dk/p/Files/Boligdata/Dokumenter/Selskabsdokumenter/Sel.%201/M&#xF8;deindkaldelser%20organisationsbestyrelse/2023-10-11-Dagsorden-til-bestyrelsesm&#xF8;de.pdf)
                                            [2023-08-23 Dagsorden til bestyrelsesmøde.pdf](https://www.boligfa.dk/p/Files/Boligdata/Dokumenter/Selskabsdokumenter/Sel.%201/M&#xF8;deindkaldelser%20organisationsbestyrelse/2023-08-23-Dagsorden-til-bestyrelsesm&#xF8;de.pdf)
                                            [2023-06-14 Dagsorden til bestyrelsesmøde.pdf](https://www.boligfa.dk/p/Files/Boligdata/Dokumenter/Selskabsdokumenter/Sel.%201/M&#xF8;deindkaldelser%20organisationsbestyrelse/2023-06-14-Dagsorden-til-bestyrelsesm&#xF8;de.pdf)
                                            [2023-04-26 Dagsorden til bestyrelsesmøde.pdf](https://www.boligfa.dk/p/Files/Boligdata/Dokumenter/Selskabsdokumenter/Sel.%201/M&#xF8;deindkaldelser%20organisationsbestyrelse/2023-04-26-Dagsorden-til-bestyrelsesm&#xF8;de.pdf)
                                            [2023-02-01 Dagsorden til bestyrelsesmøde.pdf](https://www.boligfa.dk/p/Files/Boligdata/Dokumenter/Selskabsdokumenter/Sel.%201/M&#xF8;deindkaldelser%20organisationsbestyrelse/2023-02-01-Dagsorden-til-bestyrelsesm&#xF8;de.pdf)
                                            [2022-12-07 Dagsorden til bestyrelsesmøde.pdf](https://www.boligfa.dk/p/Files/Boligdata/Dokumenter/Selskabsdokumenter/Sel.%201/M&#xF8;deindkaldelser%20organisationsbestyrelse/2022-12-07-Dagsorden-til-bestyrelsesm&#xF8;de.pdf)
                                            [2022-10-12 Dagsorden til bestyrelsesmøde.pdf](https://www.boligfa.dk/p/Files/Boligdata/Dokumenter/Selskabsdokumenter/Sel.%201/M&#xF8;deindkaldelser%20organisationsbestyrelse/2022-10-12-Dagsorden-til-bestyrelsesm&#xF8;de.pdf)
                                            [2022-08-31 Dagsorden til bestyrelsesmøde.pdf](https://www.boligfa.dk/p/Files/Boligdata/Dokumenter/Selskabsdokumenter/Sel.%201/M&#xF8;deindkaldelser%20organisationsbestyrelse/2022-08-31-Dagsorden-til-bestyrelsesm&#xF8;de.pdf)
                                            [2022-06-22 Dagsorden til bestyrelsesmøde.pdf](https://www.boligfa.dk/p/Files/Boligdata/Dokumenter/Selskabsdokumenter/Sel.%201/M&#xF8;deindkaldelser%20organisationsbestyrelse/2022-06-22-Dagsorden-til-bestyrelsesm&#xF8;de.pdf)
                                            [2022-04-26 Dagsorden til bestyrelsesmøde.pdf](https://www.boligfa.dk/p/Files/Boligdata/Dokumenter/Selskabsdokumenter/Sel.%201/M&#xF8;deindkaldelser%20organisationsbestyrelse/2022-04-26-Dagsorden-til-bestyrelsesm&#xF8;de.pdf)
                                            [2022-02-02 Dagsorden til bestyrelsesmøde.pdf](https://www.boligfa.dk/p/Files/Boligdata/Dokumenter/Selskabsdokumenter/Sel.%201/M&#xF8;deindkaldelser%20organisationsbestyrelse/2022-02-02-Dagsorden-til-bestyrelsesm&#xF8;de.pdf)
                                            [2021-12-08 Dagsorden til bestyrelsesmøde.pdf](https://www.boligfa.dk/p/Files/Boligdata/Dokumenter/Selskabsdokumenter/Sel.%201/M&#xF8;deindkaldelser%20organisationsbestyrelse/2021-12-08-Dagsorden-til-bestyrelsesm&#xF8;de.pdf)
                                            [2021-10-13 Dagsorden til bestyrelsesmøde.pdf](https://www.boligfa.dk/p/Files/Boligdata/Dokumenter/Selskabsdokumenter/Sel.%201/M&#xF8;deindkaldelser%20organisationsbestyrelse/2021-10-13-Dagsorden-til-bestyrelsesm&#xF8;de.pdf)
                                            [2021-09-01 Dagsorden til bestyrelsesmøde.pdf](https://www.boligfa.dk/p/Files/Boligdata/Dokumenter/Selskabsdokumenter/Sel.%201/M&#xF8;deindkaldelser%20organisationsbestyrelse/2021-09-01-Dagsorden-til-bestyrelsesm&#xF8;de.pdf)
                                            [2021-02-24 Dagsorden til bestyrelsesmøde.pdf](https://www.boligfa.dk/p/Files/Boligdata/Dokumenter/Selskabsdokumenter/Sel.%201/M&#xF8;deindkaldelser%20organisationsbestyrelse/2021-02-24-Dagsorden-til-bestyrelsesm&#xF8;de.pdf)

###

                                                Mødeindkaldelser repræsentantskabsmøder

[2026-05-27 Indkaldelse til repræsentantskabsmøde.pdf](https://www.boligfa.dk/p/Files/Boligdata/Dokumenter/Selskabsdokumenter/Sel.%201/M&#xF8;deindkaldelser%20repr&#xE6;sentantskabsm&#xF8;der/2026-05-27-Indkaldelse-til-repr&#xE6;sentantskabsm&#xF8;de.pdf)
                                            [2025-05-28-Indkaldelse-til-repræsentantskabsmøde.pdf](https://www.boligfa.dk/p/Files/Boligdata/Dokumenter/Selskabsdokumenter/Sel.%201/M&#xF8;deindkaldelser%20repr&#xE6;sentantskabsm&#xF8;der/2025-05-28-Indkaldelse-til-repr&#xE6;sentantskabsm&#xF8;de.pdf)
                                            [2025-05-28 Indkaldelse (ny adresse) til repræsentantskabsmøde.pdf](https://www.boligfa.dk/p/Files/Boligdata/Dokumenter/Selskabsdokumenter/Sel.%201/M&#xF8;deindkaldelser%20repr&#xE6;sentantskabsm&#xF8;der/2025-05-28-Indkaldelse--ny-adresse--til-repr&#xE6;sentantskabsm&#xF8;de.pdf)
                                            [2025-05-28 Dagsorden til repræsentantskabsmødet.pdf](https://www.boligfa.dk/p/Files/Boligdata/Dokumenter/Selskabsdokumenter/Sel.%201/M&#xF8;deindkaldelser%20repr&#xE6;sentantskabsm&#xF8;der/2025-05-28-Dagsorden-til-repr&#xE6;sentantskabsm&#xF8;det.pdf)
                                            [2024-11-27 Indkaldelse til ekstraordinært repræsentantskabsmøde.pdf](https://www.boligfa.dk/p/Files/Boligdata/Dokumenter/Selskabsdokumenter/Sel.%201/M&#xF8;deindkaldelser%20repr&#xE6;sentantskabsm&#xF8;der/2024-11-27-Indkaldelse-til-ekstraordin&#xE6;rt-repr&#xE6;sentantskabsm&#xF8;de.pdf)
                                            [2024-11-27 Dagsorden til ekstraordinært repræsentantskabsmøde.pdf](https://www.boligfa.dk/p/Files/Boligdata/Dokumenter/Selskabsdokumenter/Sel.%201/M&#xF8;deindkaldelser%20repr&#xE6;sentantskabsm&#xF8;der/2024-11-27-Dagsorden-til-ekstraordin&#xE6;rt-repr&#xE6;sentantskabsm&#xF8;de.pdf)
                                            [2024-05-22 Indkaldelse til repræsentantskabsmøde.pdf](https://www.boligfa.dk/p/Files/Boligdata/Dokumenter/Selskabsdokumenter/Sel.%201/M&#xF8;deindkaldelser%20repr&#xE6;sentantskabsm&#xF8;der/2024-05-22-Indkaldelse-til-repr&#xE6;sentantskabsm&#xF8;de.pdf)
                                            [2023-06-13 Indkaldelse til ekstraordinært repræsentantskabsmøde.pdf](https://www.boligfa.dk/p/Files/Boligdata/Dokumenter/Selskabsdokumenter/Sel.%201/M&#xF8;deindkaldelser%20repr&#xE6;sentantskabsm&#xF8;der/2023-06-13-Indkaldelse-til-ekstraordin&#xE6;rt-repr&#xE6;sentantskabsm&#xF8;de.pdf)
                                            [2023-05-24 Indkaldelse til repræsentantskabsmøde.pdf](https://www.boligfa.dk/p/Files/Boligdata/Dokumenter/Selskabsdokumenter/Sel.%201/M&#xF8;deindkaldelser%20repr&#xE6;sentantskabsm&#xF8;der/2023-05-24-Indkaldelse-til-repr&#xE6;sentantskabsm&#xF8;de.pdf)
                                            [2022-06-09 Ny dagsorden til ekstraordinært repræsentantskabsmøde.pdf](https://www.boligfa.dk/p/Files/Boligdata/Dokumenter/Selskabsdokumenter/Sel.%201/M&#xF8;deindkaldelser%20repr&#xE6;sentantskabsm&#xF8;der/2022-06-09-Ny-dagsorden-til-ekstraordin&#xE6;rt-repr&#xE6;sentantskabsm&#xF8;de.pdf)
                                            [2022-06-09 Indkaldelse til ekstraordinært repræsentantskabsmøde.pdf](https://www.boligfa.dk/p/Files/Boligdata/Dokumenter/Selskabsdokumenter/Sel.%201/M&#xF8;deindkaldelser%20repr&#xE6;sentantskabsm&#xF8;der/2022-06-09-Indkaldelse-til-ekstraordin&#xE6;rt-repr&#xE6;sentantskabsm&#xF8;de.pdf)
                                            [2022-05-18 Indkaldelse til repræsentantskabsmøde.pdf.pdf](https://www.boligfa.dk/p/Files/Boligdata/Dokumenter/Selskabsdokumenter/Sel.%201/M&#xF8;deindkaldelser%20repr&#xE6;sentantskabsm&#xF8;der/2022-05-18-Indkaldelse-til-repr&#xE6;sentantskabsm&#xF8;de.pdf.pdf)
                                            [2022-05-18 Indkaldelse til repræsentantskabsmøde.pdf](https://www.boligfa.dk/p/Files/Boligdata/Dokumenter/Selskabsdokumenter/Sel.%201/M&#xF8;deindkaldelser%20repr&#xE6;sentantskabsm&#xF8;der/2022-05-18-Indkaldelse-til-repr&#xE6;sentantskabsm&#xF8;de.pdf)
                                            [2021-10-27 Indkaldelse til ekstraordinært repræsentantskabsmøde.pdf](https://www.boligfa.dk/p/Files/Boligdata/Dokumenter/Selskabsdokumenter/Sel.%201/M&#xF8;deindkaldelser%20repr&#xE6;sentantskabsm&#xF8;der/2021-10-27-Indkaldelse-til-ekstraordin&#xE6;rt-repr&#xE6;sentantskabsm&#xF8;de.pdf)
                                            [2021-06-21 Indkaldelse til repræsentantskabsmøde.pdf](https://www.boligfa.dk/p/Files/Boligdata/Dokumenter/Selskabsdokumenter/Sel.%201/M&#xF8;deindkaldelser%20repr&#xE6;sentantskabsm&#xF8;der/2021-06-21-Indkaldelse-til-repr&#xE6;sentantskabsm&#xF8;de.pdf)

###

                                                Regnskaber

[2025 Regnskab Boligkontoret Fredericia.pdf](https://www.boligfa.dk/p/Files/Boligdata/Dokumenter/Selskabsdokumenter/Sel.%201/Regnskaber/2025-Regnskab-Boligkontoret-Fredericia.pdf)
                                            [2024 Regnskab Boligkontoret Fredericia.pdf](https://www.boligfa.dk/p/Files/Boligdata/Dokumenter/Selskabsdokumenter/Sel.%201/Regnskaber/2024-Regnskab-Boligkontoret-Fredericia.pdf)
                                            [2023 Regnskab Boligkontoret Fredericia.pdf](https://www.boligfa.dk/p/Files/Boligdata/Dokumenter/Selskabsdokumenter/Sel.%201/Regnskaber/2023-Regnskab-Boligkontoret-Fredericia.pdf)
                                            [2022 Regnskab Boligkontoret Fredericia.pdf](https://www.boligfa.dk/p/Files/Boligdata/Dokumenter/Selskabsdokumenter/Sel.%201/Regnskaber/2022-Regnskab-Boligkontoret-Fredericia.pdf)
                                            [2021 Regnskab Boligkontoret Fredercia.pdf](https://www.boligfa.dk/p/Files/Boligdata/Dokumenter/Selskabsdokumenter/Sel.%201/Regnskaber/2021-Regnskab-Boligkontoret-Fredercia.pdf)
                                            [2020 Regnskab Boligkontoret Fredericia.pdf](https://www.boligfa.dk/p/Files/Boligdata/Dokumenter/Selskabsdokumenter/Sel.%201/Regnskaber/2020-Regnskab-Boligkontoret-Fredericia.pdf)
                                            [2019 Regnskab Boligkontoret Fredericia.pdf](https://www.boligfa.dk/p/Files/Boligdata/Dokumenter/Selskabsdokumenter/Sel.%201/Regnskaber/2019-Regnskab-Boligkontoret-Fredericia.pdf)

###

                                                Vedtægter

[Vedtægter for Boligkontoret Fredericia.pdf](https://www.boligfa.dk/p/Files/Boligdata/Dokumenter/Selskabsdokumenter/Sel.%201/Vedt&#xE6;gter/Vedt&#xE6;gter-for-Boligkontoret-Fredericia.pdf)
